АН АДРЕСА
Lilia.k-adresa@yandex.ru
Скажите продавцу, что вы нашли объявление на 156.ru
1
/
3
12 900 000 ₽
13
Южный Урал
АН АДРЕСА
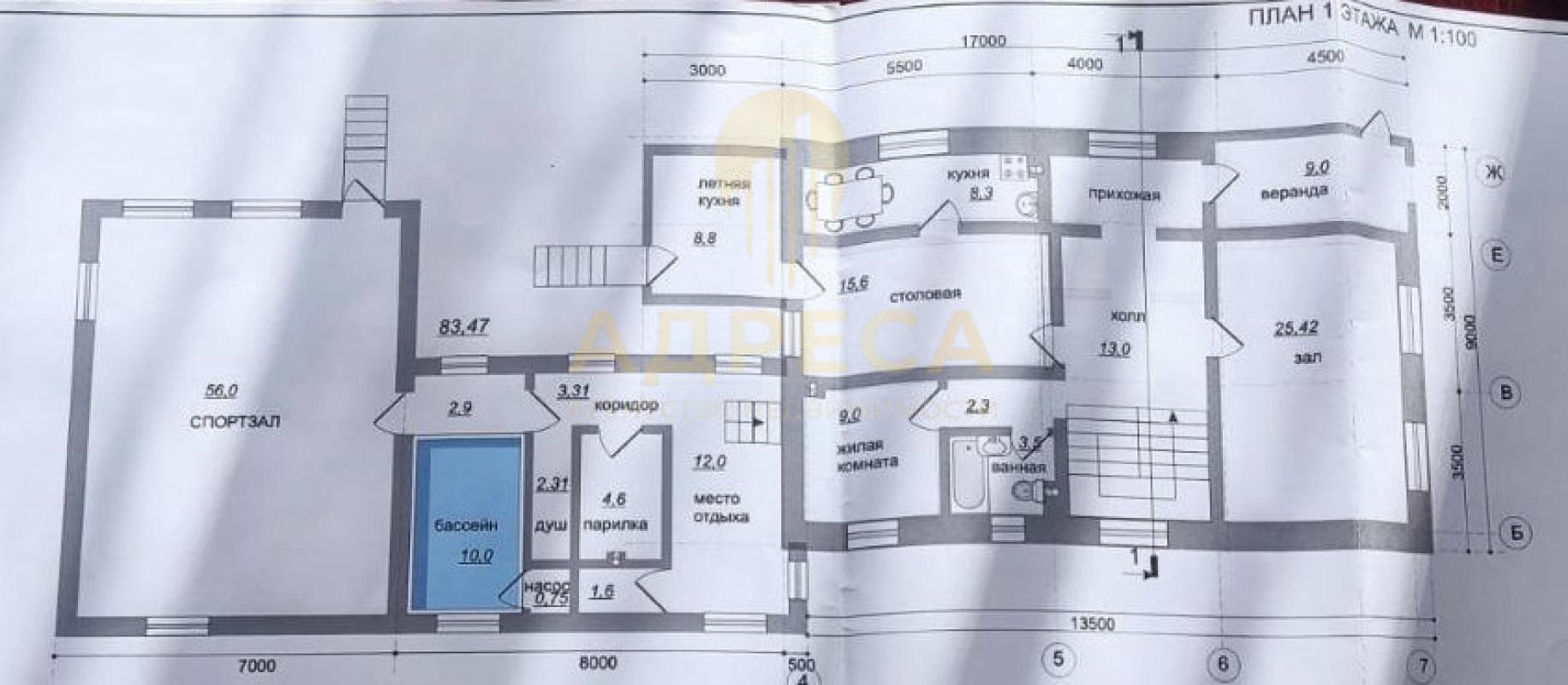
▎Ваш идеальный дом в поселке "Южный Урал"! Мечтаете о тихой и спокойной жизни за городом, но с городским комфортом? Этот просторный двухэтажный дом в поселке "Южный Урал" – идеальный вариант для вас!
▎Описание дома:
Двухэтажный дом с полуподвальным помещением:
Первый этаж:
Гостиная: Просторная и уютная, идеально подходит для теплых семейных вечеров.
Кухня-столовая: Удобное место с большим столом для праздничных обедов и душевных посиделок.
Дополнительная комната или гардеробная: Возможность адаптации под ваши нужды.
Санузел: Удобное размещение на первом и втором этажах.
Коридор: Простой и просторный, создающий атмосферу уюта.
Полуподвальное помещение: Две комнаты для развлечений, кладовая и котельная с выходом в банный комплекс – все для комфортного проживания вашей семьи.
Внутренний двор: Удобный выход из кухни, гостиной и банного комплекса для приятных прогулок и семейных посиделок в уютной беседке.
Второй этаж: Четыре комнаты:
– Детские комнаты: Созданы для счастливого детства ваших детей.
– Взрослая спальня: Место для спокойного и комфортного отдыха.
Банный комплекс: Состоит из комнаты отдыха, парной на дровах, душевой и большого бассейна.
Отдельно стоящий гараж:
На 2 автомобиля, с установленными рольставнями для защиты от непогоды.
Дополнительные преимущества:
Теплый пол по всему периметру первого этажа.
Готовность к проживанию: Дом укомплектован всей необходимой мебелью, техникой и четырьмя сплит-системами.
• Автономная канализация переливного типа: Три септика, позволяющие забыть о проблемах с отводом сточных вод.
Земельный участок: 12.5 соток, предоставляющий простор для реализации ваших идей, включая уютный сад с различными насаждениями.
Удобное расположение: Поселок "Южный Урал" находится всего в 10 км от центра города, обеспечивая легкий доступ ко всей городской инфраструктуре.
Этот шикарный дом — ваш шанс на жизнь в гармонии с природой, не отказываясь от удобств городской жизни. Не упустите возможность стать его владельцем!
ID объекта в нашей базе: 1811
Тип недвижимости
Адрес
Этажность
Площадь
Дом
Россия, Оренбургская обл, Южный Урал, ул. Пушкина, 9
2
235
ID объявления
Обновлено
Создано
Действительно до
829227
2026-02-15 05:48:20
2026-02-15 05:48:20
2026-05-16 05:48:20

8 999 000 ₽
Дом
Россия, Оренбургская обл, Оренбург, Рублева

4 850 000 ₽
3-комн. квартира
Оренбургская обл, г Новотроицк, ул Лысова, д 10

900 000 ₽
3-комн. квартира
Россия, Оренбургская обл, Соль-Илецк, ул. Победы,6

6 200 000 ₽
3-комн. квартира
Россия, Оренбургская обл, Оренбург, ул. Народная,36

13 400 000 ₽
Дом
Россия, Оренбургская обл, имени 9 Января, ул. Артиллерийская,29

7 200 000 ₽
3-комн. квартира
Россия, Оренбургская обл, Оренбург, ул. Мира,3/1

3 550 000 ₽
2-комн. квартира
Россия, Оренбургская обл, Орск, Крайняя 44а

1 500 000 ₽
2-комн. квартира
Оренбургская обл, г Новотроицк, ул Есенкова, д 8

490 ₽
Сад

5 200 000 ₽
3-комн. квартира
1 700 000 ₽
2-комн. квартира
Оренбургская обл, г Новотроицк, ул М.Корецкой 5

1 700 000 ₽
3-комн. квартира
Оренбургская обл, г Новотроицк, ул Орская, д 23

16 900 000 ₽
Дом
Россия, Оренбургская обл, Южный Урал, ул. Сурикова,3

170 000 ₽
Комната
Оренбургская обл, г Новотроицк, ул Мира, д 17

1 850 000 ₽
Дом
Россия, Оренбургская обл, Оренбург, ул. Фрунзе 40

9 000 000 ₽
Дом

1 850 000 ₽
2-комн. квартира
Оренбургская обл, г Новотроицк, ул Гагарина, д 14

договорная

4 500 000 ₽
Дом

6 390 000 ₽
Дом
Россия, Оренбургская обл, Оренбург, ул. Герцена,11

2 300 000 ₽
2-комн. квартира

3 200 000 ₽
2-комн. квартира
Оренбургская обл, г Гай, ул Орская, д 126А

2 190 000 ₽
1-комн. квартира
Оренбургская обл, г Новотроицк, ул Уральская, д 1

2 690 000 ₽
3-комн. квартира