АН АДРЕСА
Lilia.k-adresa@yandex.ru
Скажите продавцу, что вы нашли объявление на 156.ru
1
/
3
3 850 000 ₽
20
Оренбург
АН АДРЕСА
ПРЕДЛАГАЕМ ВАШЕМУ ВНИМАНИЮ ПРОСТОРНУЮ И УЮТНУЮ ДВУХКОМНАТНУЮ КВАРТИРУ!
КВАРТИРА С НОВЫМ ОТЛИЧНЫМ РЕМОНТОМ, ЧТО ПОЗВОЛЯЕТ ЗАЕХАТЬ и ЖИТЬ!
О КВАРТИРЕ:
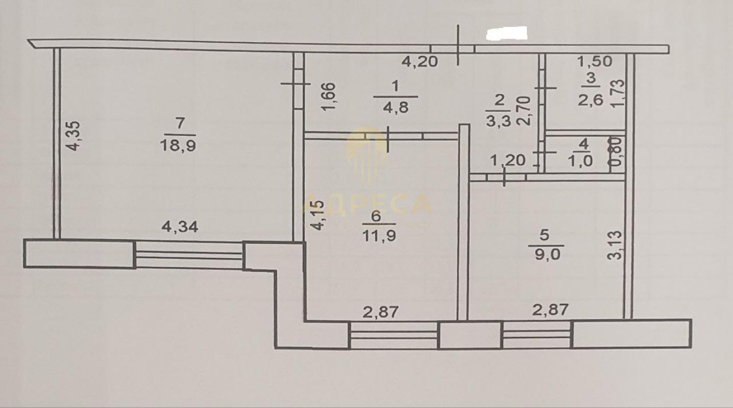
Общая площадь квартиры – 51.5 кв.м Очень хорошая планировка – квадратный просторный зал площадью 18.9 кв.м,, светлая спальня 11,9 кв.м., и уютная кухня 9 кв.м. В квартире выполнен качественный ремонт. Во всех комнатах пластиковые окна. С/У раздельный в кафеле. Качественные деревянные двери. Полы с подогревом! Из мебели остается вместительный угловой кухонный гарнитур. Сплит система. Коммуникации все центральные. Квартира очень теплая. Соседи очень хорошие и дружные.
ИНФРАСТРУКТУРА:
—д/с 106.
—СОШ №11
—Магазины Пятерочка, Магнит, Красное/белое, аптеки и др.;
Остановка общественного транспорта в шаговой доступности: маршруты: 78Н (62), 23.Рассмотрим все формы расчета: ипотека, сертификаты, наличный и безналичный расчет.
- Поможем купить в ипотеку! Узнавайте по телефону подробные условия.
Юридическое сопровождение сделки.
Если вам понравился этот вариант, но у вас ещё не продана своя недвижимость, предложите нам, возможно у нас прямо сейчас есть на неё покупатель.
ID объекта в нашей базе: 1394
Тип недвижимости
Адрес
Этажность
Этаж
Площадь
2-комн. квартира
Россия, Оренбургская обл, Оренбург, ул. Авиационная,20
5
1
51.5
ID объявления
Обновлено
Создано
Действительно до
828044
2026-02-13 05:28:38
2026-02-13 05:28:38
2026-05-14 05:28:38
2 400 000 ₽
2-комн. квартира

6 000 000 ₽
Помещение
Оренбургская обл, г Орск, пер Синчука, д 25

2 450 000 ₽
2-комн. квартира
Россия, Оренбургская обл, Орск, ул. Омская,58

1 590 000 ₽
2-комн. квартира
Оренбургская обл, г Новотроицк, ул Железнодорожная, д 87

1 800 000 ₽
2-комн. квартира
Оренбургская обл, г Новотроицк, ул Уметбаева, д 3А

2 700 000 ₽
3-комн. квартира
Оренбургская обл., г. Новотроицк, ул. Винокурова, д. 12

850 000 ₽
Земельный участок
Россия, Оренбургская обл, Орск, ул. Водная,59

2 000 000 ₽
2-комн. квартира
Новотроицк переулок Студенческий, 6

2 810 000 ₽
2-комн. квартира
Оренбургская обл, г Новотроицк, ул Советская, д 111

950 000 ₽
1-комн. квартира
Оренбургская обл, г Новотроицк, ул Губина, д 6

2 200 000 ₽
3-комн. квартира
Оренбургская обл, г Новотроицк, ул Винокурова, д 12

5 400 000 ₽
Дом
Россия, Оренбургская обл, Орск, В.Буканова 29

2 990 000 ₽
4-комн. квартира

350 000 ₽
Комната
Россия, Оренбургская обл, Орск, ул. Виноградная,3
850 000 ₽
3-комн. квартира
Оренбургская обл, г Новотроицк, поселок Новорудный
2 600 000 ₽
1-комн. квартира
г Оренбург, пр-кт Дзержинского, д 13, кв 1

9 300 000 ₽
Дом
1 650 000 ₽
1-комн. квартира
Оренбургская обл, г Новотроицк, ул Железнодорожная, д 65А

2 250 000 ₽
1-комн. квартира
Россия, Оренбургская обл, Орск, ул. Крайняя,42

1 700 000 ₽
2-комн. квартира

5 150 000 ₽
3-комн. квартира

8 300 000 ₽
Дом
Россия, Оренбургская обл, Ивановка, ул. Новороссийская,54

1 500 000 ₽
Дом

3 000 000 ₽
2-комн. квартира
Оренбургская обл, г Новотроицк, ул Гагарина, д 6