АН АДРЕСА
Kotikova-adresa@yandex.ru
Скажите продавцу, что вы нашли объявление на 156.ru
1
/
3
6 799 000 ₽
13
Оренбург
АН АДРЕСА
!!! ДОМА ОТ ЗАСТРОЙЩИКА!!!ИПОТЕЧНАЯ СТАВКА 3-6%ЛЮБАЯ ФОРМА РАСЧЕТА( любой сертификат,материнский капитал,обычная ипотека, семейная ипотека, наличный расчет).В ПРОДАЖЕ ДОМА 130 М 6 СотЗАБОР по всему периметру участка!
поселок МАРЬИНО-НЕЗАТОПЛЯЕМАЯ ЗОНА!
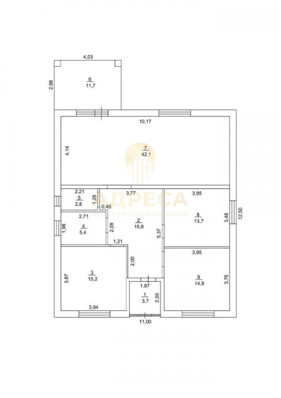
Общая площадь дома 130 мКухня-гостинная 42м с выходом на террасуСпальни-3Открытый большой холС/У+котельнаяТамбур закрытыйКачественная входная дверь с термо-разрывомСтены оштукатурены под обои,кeрaмзитo-блок , утеплитель 10, кирпич.Потолок подшит плитами ОSВ.Откосы, подоконники подготовлены.Радиаторы отопления во всех комнатах, теплый пол по всему периметру дома.Двухконтурный газовый котел.Скважина, септик -3 кольца.Фундaмeнт свaйнo лентoчный,глубина свай 2 м,шаг 1,5м, завoдской бeтoн!Крыша-Металлoчерепица с утеплением,отмостка.
Наша компания провела профессиональную юридическую проверку объекта недвижимости, гарантируя вам защиту от потенциальных рисков.
Сделка будет осуществлена с полной юридической прозрачностью, обеспечивая вас надежным и безопасным приобретением жилья.Офис продаж ул.Восточная 42/3Ваш персональный специалист Котикова Юлия
ID объекта в нашей базе: 1716
Тип недвижимости
Адрес
Этажность
Площадь
Дом
Россия, Оренбургская обл, Оренбург, ул. Северная
1
130
ID объявления
Обновлено
Создано
Действительно до
826974
2026-02-11 05:41:17
2026-02-11 05:41:17
2026-05-12 05:41:17

2 650 000 ₽
2-комн. квартира

3 200 000 ₽
2-комн. квартира
г Оренбург, пер Киселева, д 36

1 100 000 ₽
2-комн. квартира
Оренбургская обл, г Новотроицк, ул Губина, д 18

2 900 000 ₽
3-комн. квартира
Россия, Оренбургская обл, Оренбург, ул. Розы Люксембург,188

9 400 000 ₽
Дом
Россия, Оренбургская обл, Оренбург, ул. Спортивная,21

2 400 000 ₽
2-комн. квартира
Россия, Оренбургская обл, Орск, пер. 1-й Домбаровский,29
11 000 000 ₽
Земельный участок
Оренбургская обл, г Новотроицк, ул Советская

9 000 000 ₽
Дом
Россия, Оренбургская обл, Ленина, ул. Сосновая,13

1 ₽
Помещение

2 280 000 ₽
2-комн. квартира
Оренбургская обл, г Новотроицк, ул Винокурова, д 10

9 800 000 ₽
Дом
Россия, Оренбургская обл, Соловьевка, ул. Степная

2 200 000 ₽
2-комн. квартира
Оренбургская обл, г Новотроицк, ул Есенкова, д 12

5 300 000 ₽
2-комн. квартира
Россия, Оренбургская обл, Оренбург, пр-кт. Победы,155А

1 400 000 ₽
Гараж
Россия, Оренбургская обл, Орск, Крайняя 2А

3 200 000 ₽
3-комн. квартира
Россия, Оренбургская обл, Орск, ул. Котовского,12

2 900 000 ₽
Дом
Оренбургская обл, г Новотроицк, ул Докучаева

9 000 000 ₽
Дом
Россия, Оренбургская обл, Ивановка, Оренбургский р-он, Ивановский сельсовет, ул. Рублева, д. 44

2 300 000 ₽
3-комн. квартира
Оренбургская обл, г Новотроицк, ул Зеленая, д 71
1 400 000 ₽
2-комн. квартира
Оренбургская обл, г Новотроицк, ул Губина, д 14А

договорная

999 999 ₽
3-комн. квартира
Россия, Оренбургская обл, Сакмара, ул. Речная,1

3 100 000 ₽
Дом
Ул Железнодорожная

2 790 000 ₽
2-комн. квартира

1 750 000 ₽
2-комн. квартира
Оренбургская обл, г Новотроицк, пр-кт Металлургов, д 27