АН АДРЕСА
a.borisova-adresa@yandex.ru
Скажите продавцу, что вы нашли объявление на 156.ru
1
/
3
9 161 690 ₽
14
Оренбург
АН АДРЕСА
Документы готовы, быстрый выход на сделку!!!!ДоступностьСемейная ипотека 6 %, сельская ипотека 3 %
Наши дома подходят под субсидированные ипотечные программы, военной ипотекой, различными жилищными сертификатами и материнским капиталом. Все это делает покупку максимально удобной и комфортной для наших клиентов, а самое главное выгодной!
Материал стен: газоблоки
Терраса или веранда: покрыты керамогранитом
Лестница: металлический каркас
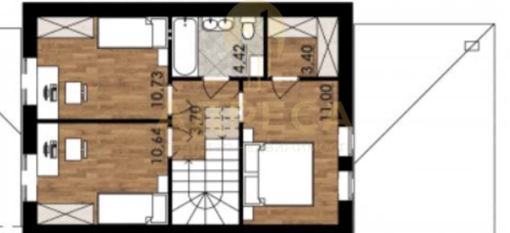
Санузел: на 1 и 2 этажах
Коммуникации: электричество, газ, отопление, канализация
Ремонт: улучшенная предчистовая отделка
Интернет и ТВ: Wi-Fi, телевидение
Парковка: парковочное место
Транспортная доступность: асфальтированная дорога, остановка общественного транспорта
Инфраструктура: магазин, аптека, детский сад, школа
Расстояние до центра города: 12 км
В подарок: территория участка огорожена забором, смонтированы въездные ворота под автомобиль и калитка с электромеханическим замком, уличное освещение, установлен почтовый ящик. Вокруг дома залита бетонная отмостка, бетонная дорожка и площадка под автомобиль, выполнено уличное освещение.
Внутренная отделка
стены оштукатурены по маякам, отшпатлеваны под обои
полы – утепленная армированная бетонная стяжка с последующим устройством наливного пола
установлена пластиковая подоконная доска, дверные и оконные откосы облагорожены
Качество
Наши дома построены из заводского газобетонного блока КОТТЕДЖ, а фасад облицован керамическим кирпичом. Установлены качественные ПВХ окна с двойным мультифункциональным стеклопакетом и надежная металлическая дверь с терморазрывом. В качестве кровельного покрытия выбрана двухслойная гибкая черепица Shinglas от компании ТЕХНОНИКОЛЬ, карниз подшит металлическими софитами, смонтирована водосточная система производства ТЕХНОНИКОЛЬ.
Инфраструктура
Поселок имеет развитую инфраструктуру, в шаговой доступности школа, детский сад, сетевые магазины, аптеки и ФАП. Поселок имеет хорошую транспортную доступность, ходит общественный транспорт. Сельская прописка и тарифы гарантируют вам экономию бюджета на обслуживание дома.
ОТ НАС: помощь в одобрении ипотеки ,полное юридическое сопровождение, помощь в продаже вашей недвижимости, работа с сертификатами.ПРОСМОТР В УДОБНОЕ ДЛЯ ВАС ВРЕМЯ, ПО ПРЕДВАРИТЕЛЬНОЙ ДОГОВОРЕННОСТИ!
ID объекта в нашей базе: 1537
Адрес
Этажность
Площадь
Россия, Оренбургская обл, Оренбург, 41 а
2
102
ID объявления
Обновлено
Создано
Действительно до
826386
2026-02-10 05:34:43
2026-02-10 05:34:43
2026-05-11 05:34:43

1 200 000 ₽
2-комн. квартира
Оренбургская обл, г Новотроицк, ул Уметбаева, д 15

2 800 000 ₽
3-комн. квартира

17 100 000 ₽
Помещение
Россия, Оренбургская обл, Сакмара, ул. Советская,44

17 000 000 ₽
Дом

6 000 000 ₽
Земельный участок
Россия, Оренбургская обл, Оренбург, с/т "Солнечный", Линия 9, участок №6

7 599 000 ₽
2-комн. квартира
Россия, Оренбургская обл, Оренбург, ул. Салмышская,67

130 000 ₽
Гараж
Оренбургская обл, г Новотроицк, ул Советская, д 5

1 770 000 ₽
1-комн. квартира
Оренбургская обл, г Новотроицк, ул Советская, д 7

1 900 000 ₽
2-комн. квартира
Оренбургская обл, г Новотроицк, ул Советская, д 124

370 000 ₽
Земельный участок
Россия, Оренбургская обл, Орск, п. Джанаталап
11 500 000 ₽
Помещение
Оренбургская обл, г Ясный, ул Ленина, д 6Б

2 000 000 ₽
2-комн. квартира
Оренбургская обл, г Новотроицк, ул Железнодорожная, д 59

3 600 000 ₽
3-комн. квартира
Оренбургская обл, г Новотроицк, ул Уральская, д 26

1 750 000 ₽
2-комн. квартира
Россия, Оренбургская обл, Орск, ул. Орская,8

6 000 000 ₽
Дом
Россия, Оренбургская обл, Нежинка, ул.8-я линия

2 900 000 ₽
3-комн. квартира
Оренбургская обл, г Новотроицк, ул Уральская, д 3

2 700 000 ₽
3-комн. квартира
Оренбургская обл., г. Новотроицк, ул. Винокурова, д. 12

5 750 000 ₽
3-комн. квартира
Россия, Оренбургская обл, Оренбург, ул. Дружбы,11/2

1 600 000 ₽
1-комн. квартира
Оренбургская обл, г Новотроицк, ул Советская, д 104

6 500 000 ₽
Дом
Россия, Оренбургская обл, Оренбург, Array

1 700 000 ₽
3-комн. квартира
Оренбургская обл, г Новотроицк, ул Гагарина, д 13

1 760 000 ₽
2-комн. квартира
Оренбургская обл, г Новотроицк, ул Уральская, д 8А

1 550 000 ₽
2-комн. квартира
Оренбургская обл, г Новотроицк, ул Уральская, д 3

5 500 000 ₽
3-комн. квартира
Оренбургская обл, г Орск