Юлия
juliya-056@mail.ru
Скажите продавцу, что вы нашли объявление на 156.ru
1
/
3
4 000 000 ₽
17
Оренбург
Юлия
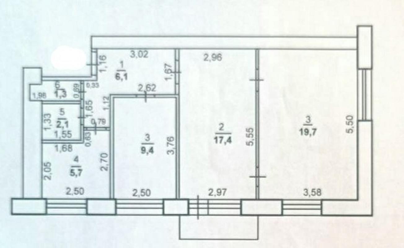
Продам трехкомнатную квартиру в центре города. Кирпичный дом, второй этаж.Комнаты смежно-изолированные. Совмещённый санузел.Погреб во дворе дома будет приятным бонусом новому собственнику. Один взрослый собственник. Долгов и обременений нет.Остановка в трёх минутах ходьбы;Детский сад №109;Школы №39 и 46;Спортивная школа олимпийского резерва №1 им. Н.С. Гейтца;Стрелково-спортивный клуб;Медицинский университет;Корпус № 5 педагогического университета;Оренбургский институт путей и сообщения;Магнит, аптека, оптика, Альфа-страхование - расположены в этом доме;Три парка - Тополя, Перовского, Ленина;Рынок "Локомотив".Квартира свободна от проживающих.Если Вам понравился этот объект, но Ваша недвижимость не продана, окажем помощь в реализации.
Юридическое сопровождение и помощь в одобрение ипотеки при покупке данного объекта бесплатно.
Просмотр по предварительной договоренности.
ID объекта в нашей базе: 132
Тип недвижимости
Адрес
Этажность
Этаж
Площадь
3-комн. квартира
Россия, Оренбургская обл, Оренбург, проезд. Коммунаров,24
5
2
60.7
ID объявления
Обновлено
Создано
Действительно до
825958
2026-02-09 06:00:20
2026-02-09 06:00:20
2026-05-10 06:00:20

1 800 000 ₽
2-комн. квартира
Оренбургская обл, г Новотроицк, ул Гагарина, д 5А

1 870 000 ₽
2-комн. квартира
Оренбургская обл, г Новотроицк, ул Орская, д 23

1 500 000 ₽
Дом
Россия, Оренбургская обл, Оренбург, Оренбургская обл., г. Оренбург, г. Оренбург СНТ "Гидропресс-Госматрезервы-станция" 1-сиреневая 46

800 000 ₽
Дача
Россия, Оренбургская обл, Оренбург, СНТ Энергоноситель, улица Майская 46

4 000 000 ₽
Помещение

3 000 000 ₽
1-комн. квартира

2 430 000 ₽
2-комн. квартира
Россия, Оренбургская обл, Орск, ул. Шалина,3А

17 000 000 ₽
Земельный участок
Россия, Оренбургская обл, Орск, ул. Ферганская

15 000 000 ₽
Дом
Россия, Оренбургская обл, Оренбург, Земская 15

3 650 000 ₽
3-комн. квартира

4 500 000 ₽
3-комн. квартира
Россия, Оренбургская обл, Орск, пр-кт. Ленина,131

5 200 000 ₽
3-комн. квартира

1 750 000 ₽
Комната
Оренбургская обл, г Гай, ул Ленина, д 56

7 500 000 ₽
Дом
Россия, Оренбургская обл, Оренбург, Array

7 500 000 ₽
Дом
Россия, Оренбургская обл, Подгородне-Покровский, Сосновая 94

2 000 000 ₽
2-комн. квартира

1 ₽
Сад

3 450 000 ₽
3-комн. квартира

6 180 000 ₽
2-комн. квартира
Россия, Оренбургская обл, Оренбург, ул. Юркина,6

6 900 000 ₽
3-комн. квартира
Россия, Оренбургская обл, Оренбург, ул. Рокоссовского,3

20 000 000 ₽
Дом

7 799 000 ₽
5-комн. квартира
Россия, Оренбургская обл, Оренбург, мкр. 70 лет ВЛКСМ,3

1 600 000 ₽
2-комн. квартира
Оренбургская обл, г Новотроицк, ул Библиотечная, д 4А

1 700 000 ₽
2-комн. квартира
Оренбургская обл, г Новотроицк, ул Библиотечная, д 2А