АН АДРЕСА
strel.921-adresa56@yandex.ru
Скажите продавцу, что вы нашли объявление на 156.ru
1
/
3
7 200 000 ₽
16
Оренбург
АН АДРЕСА
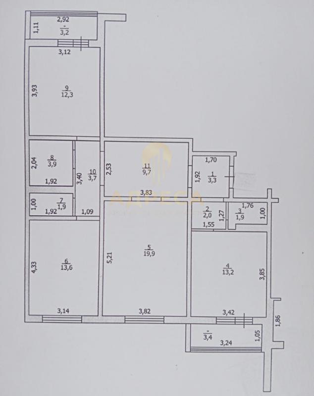
Продаётся просторная трёхкомнатная квартира на комфортном 9 этаже.Район с развитой инфраструктурой: магазины, рынок "Петровский", школа №8, №32, Пушкинский лицей, детский сад №4, №140. В пешей доступности культурный комплекс «Национальная деревня» и парк им. Ю.А. Гагарина.Идеальное предложение для семьи, которая ценит комфортное проживание.Ключевые параметры:· Общая площадь: 85,4 м².· Этаж: 9/16.· Комнаты: изолированные.Описание и преимущества:· Современный ремонт: Полы залиты и выровнены, стены идеально ровные, полностью заменена вся электрическая проводка.· Отделка: Ванная, санузел отделаны современным кафелем.· Комфорт и технологии: В ванной установлен «тёплый пол», в гостиной мощная сплит-система. Высокие потолки 2,9 метра.· Функциональность: Удобная кухня 14 м² с встроенной мебелью "Мария". Есть гардеробная комната со стиральной машинойИнфраструктура и двор:· Во дворе — зона для барбекю, современная детская и спортивная площадки, хоккейная коробка.· В шаговой доступности всё необходимое: аптека, почта, продуктовые магазины.· Круглосуточное видеонаблюдение (Уфанет) в подъездах и лифтах для вашей безопасности.Транспортная развязка:· Остановка общественного транспорта в 3х минутах ходьбы. Автобусы № 7, 20, 79Н, 53Н позволят добраться в любую точку города без проблем.· Рядом расположены улицы: Алтайская, Карагандинская, Пр. Гагарина, Лесозащитная.✅Если у Вас не продан объект недвижимости, но Вы хотите приобрести наш, мы готовы помочь Вам реализовать эту мечту! Наша компания всегда готова предложить Вам лучшие варианты решения, которые соответствуют Вашим потребностям!Звоните и записывайтесь на просмотр!!!
ID объекта в нашей базе: 1726
Тип недвижимости
Адрес
Этажность
Этаж
Площадь
3-комн. квартира
Россия, Оренбургская обл, Оренбург, ул. Мира,3/1
16
9
85.4
ID объявления
Обновлено
Создано
Действительно до
824320
2026-02-06 05:43:23
2026-02-06 05:43:23
2026-05-07 05:43:23

4 390 000 ₽
Дом
Россия, Оренбургская обл, Оренбург, мкр. Солнечный, ул. Ивановская, 3А

230 000 ₽
Комната
Оренбургская обл, г Новотроицк, ул Губина, д 16

3 600 000 ₽
Дом

1 875 000 ₽
2-комн. квартира
Оренбургская обл, г Новотроицк, ул Библиотечная, д 2А

2 990 000 ₽
Земельный участок
Россия, Оренбургская обл, имени 9 Января, ул. Журавлиная,34

4 000 000 ₽
Дом

3 500 000 ₽
2-комн. квартира
Оренбургская обл, г Новотроицк, ул Библиотечная, д 11
2 600 000 ₽
1-комн. квартира
г Оренбург, пр-кт Дзержинского, д 13, кв 1

3 200 000 ₽
3-комн. квартира

5 200 000 ₽
3-комн. квартира

3 450 000 ₽
3-комн. квартира

договорная
Дом
Оренбургская обл, г Гай

4 355 000 ₽
1-комн. квартира
Россия, Оренбургская обл, Оренбург, ул. Рокоссовского,25
2 800 000 ₽
2-комн. квартира

3 100 000 ₽
2-комн. квартира
Оренбургская обл, г Новотроицк, пл Ленина, д 6

договорная

1 650 000 ₽
1-комн. квартира
Оренбургская обл, г Новотроицк, ул Зеленая, д 75А

195 000 ₽
Гараж

1 750 000 ₽
Комната
Оренбургская обл, г Гай, ул Ленина, д 56
2 500 000 ₽
Дом

9 000 000 ₽
Дом
Россия, Оренбургская обл, Ивановка, Оренбургский р-он, Ивановский сельсовет, ул. Рублева, д. 44

2 100 000 ₽
Дом
Оренбургская обл, Гайский р-н, село Камейкино, ул Степная

5 750 000 ₽
3-комн. квартира
Россия, Оренбургская обл, Оренбург, ул. Дружбы,11/2

3 300 000 ₽
2-комн. квартира