АН АДРЕСА
a.cherniyazov-adresa@yandex.ru
Скажите продавцу, что вы нашли объявление на 156.ru
1
/
3
6 800 000 ₽
13
Оренбург
АН АДРЕСА
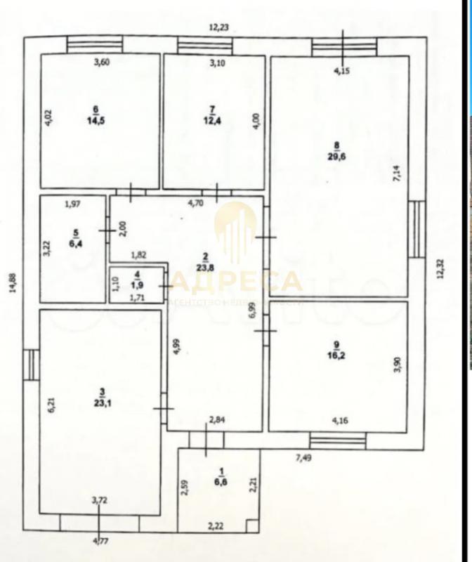
Продается кирпичный дом в развитом районе города на большом участке, где Вы можете построить все нужные Вам постройки и выдержать все необходимые расстояния!Площадь дома позволит разместиться ОЧЕНЬ большой семье без каких-либо проблем! Площадь в 167,4 кв. м. вмещает в себя 5 жилых комнат (3 с отделкой), большую кухню с погребом, ванную комнату, санузел, гараж на 2 авто с погребом и смотровой ямой и даже балкон!Материал стен: кирпич, все коммуникации подключены.Прекрасно развитая инфраструктура позволит получать все возможные блага, придуманные человеком на данный момент:кружки и секции для детей - Спорткомплекс Олимпийский, Центр Дзюдо, СК "Оренбург" рядом с Вами!покупки для дома и семьи - ТЦ Гулливер и все известные марки сетевых магазинов к Вашим услугам!нужен присмотр врачей - детская поликлиника №9, взрослая поликлиника №5, Железнодорожная больница (РЖД-Медицина), аптеки сохранят Ваше здоровье и время, так как добираться до них можно пешком и это займёт не более 5-10 минут!образование для детей - детские сады №157, №171 и № 169, школа №68 и гимназия №3, спортивные и культурно-развивающие дошкольные учреждения прекрасно с этим справятся!ждете пополнения? - коллектив перинатального центра ОКБ №2 готов Вам помочь в присмотре за правильным развитием малыша!следите за своим здоровьем? - пробежки по утрам по 5 стадионам, а также по зеленым паркам Вам гарантированно доступны!Рассмотрим все варианты, поможем с ипотекой, готовы к выходу на сделку в кратчайшие сроки!Звоните и мы с радостью покажем Вам квартиру в любое удобное время!
ID объекта в нашей базе: 730
Тип недвижимости
Адрес
Этажность
Площадь
Дом
Россия, Оренбургская обл, Оренбург, ул. Хабаровская,63
2
167.2
ID объявления
Обновлено
Создано
Действительно до
823666
2026-02-05 05:17:13
2026-02-05 05:17:13
2026-05-06 05:17:13

3 099 000 ₽
Дом
Россия, Оренбургская обл, Кувандык, ул. Кубекова,28

6 900 000 ₽
3-комн. квартира
Россия, Оренбургская обл, Оренбург, ул. Рокоссовского,3

6 300 000 ₽
3-комн. квартира
Россия, Оренбургская обл, Орск, ул. Докучаева,17

2 150 000 ₽
3-комн. квартира
Оренбургская обл, г Новотроицк, ул Зеленая, д 55
1 500 000 ₽
2-комн. квартира
Оренбургская обл, г Новотроицк, ул Пушкина, д 42

1 620 000 ₽
2-комн. квартира
Оренбургская обл, г Новотроицк, ул Зеленая, д 67

3 800 000 ₽
4-комн. квартира

7 500 000 ₽
Дом
Россия, Оренбургская обл, Оренбург, Array

1 699 999 ₽
2-комн. квартира
Оренбургская обл, г Новотроицк, пр-кт Металлургов, д 19

1 400 000 ₽
Гараж
Россия, Оренбургская обл, Орск, Крайняя 2А

25 000 000 ₽
Дом
Россия, Оренбургская обл, Орск, проезд. Тарский,1001

3 750 000 ₽
1-комн. квартира
Россия, Оренбургская обл, Оренбург, ул. Мира,3/1

3 700 000 ₽
3-комн. квартира
4 200 000 ₽
2-комн. квартира
Оренбургская обл, г Новотроицк, ул Советская, д 66

13 500 000 ₽
Дом

2 250 000 ₽
1-комн. квартира
Россия, Оренбургская обл, Орск, ул. Крайняя,42

1 500 000 ₽
1-комн. квартира
Оренбургская обл, г Новотроицк

7 699 000 ₽
2-комн. квартира
Россия, Оренбургская обл, Оренбург, ул. Салмышская,34к6

6 400 000 ₽
Дом
Россия, Оренбургская обл, Орск, ул. Образцова

1 800 000 ₽
2-комн. квартира
Оренбургская обл, г Новотроицк, ул Зеленая, д 20

3 465 000 ₽
1-комн. квартира
Россия, Оренбургская обл, Орск, ул. Краматорская,48
1 400 000 ₽
2-комн. квартира
Оренбургская обл, г Новотроицк, ул Губина, д 14А

3 850 000 ₽
2-комн. квартира
Оренбургская обл, г Новотроицк, ул Советская, д 66

4 100 000 ₽
3-комн. квартира
Россия, Оренбургская обл, Орск, ул. Просвещения,56А