Юлия
juliya-056@mail.ru
Скажите продавцу, что вы нашли объявление на 156.ru
1
/
3
4 000 000 ₽
31
Оренбург
Юлия
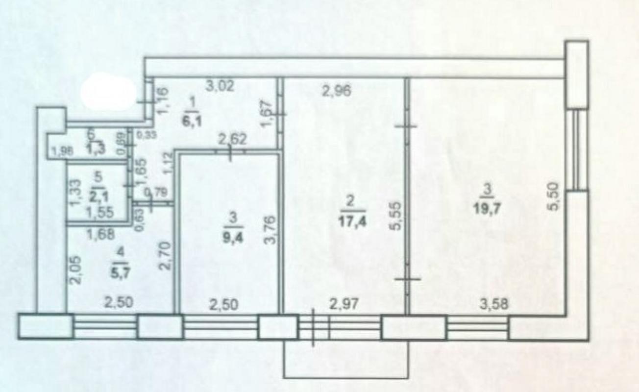
Продам трехкомнатную квартиру в центре города. Кирпичный дом, второй этаж.Комнаты смежно-изолированные. Совмещённый санузел.Погреб во дворе дома будет приятным бонусом новому собственнику. Один взрослый собственник. Долгов и обременений нет.Остановка в трёх минутах ходьбы;Детский сад №109;Школы №39 и 46;Спортивная школа олимпийского резерва №1 им. Н.С. Гейтца;Стрелково-спортивный клуб;Медицинский университет;Корпус № 5 педагогического университета;Оренбургский институт путей и сообщения;Магнит, аптека, оптика, Альфа-страхование - расположены в этом доме;Три парка - Тополя, Перовского, Ленина;Рынок "Локомотив".Квартира свободна от проживающих.Если Вам понравился этот объект, но Ваша недвижимость не продана, окажем помощь в реализации.
Юридическое сопровождение и помощь в одобрение ипотеки при покупке данного объекта бесплатно.
Просмотр по предварительной договоренности.
ID объекта в нашей базе: 132
Тип недвижимости
Адрес
Этажность
Этаж
Площадь
3-комн. квартира
Россия, Оренбургская обл, Оренбург, проезд. Коммунаров,24
5
2
60.7
ID объявления
Обновлено
Создано
Действительно до
822858
2026-02-03 05:56:59
2026-02-03 05:56:59
2026-05-04 05:56:59

1 800 000 ₽
1-комн. квартира
Россия, Оренбургская обл, Оренбург, ул. Карагандинская,52

3 300 000 ₽
3-комн. квартира

3 120 000 ₽
2-комн. квартира
Оренбургская обл, г Новотроицк, ул Зеленая, д 5

3 500 000 ₽
3-комн. квартира

2 000 000 ₽
3-комн. квартира
Оренбургская обл, г Новотроицк, ул Советская, д 34

6 000 000 ₽
Помещение
Оренбургская обл, г Новотроицк, ул Советская, д 5

2 200 000 ₽
1-комн. квартира

4 200 000 ₽
3-комн. квартира
Оренбургская обл, г Новотроицк, Комсомольский пр-кт, д 48

9 161 690 ₽
Россия, Оренбургская обл, Оренбург, 41 а

7 000 000 ₽
Дом
Россия, Оренбургская обл, Соловьевка, ул. Степная

договорная

договорная

договорная
450 000 ₽
Сад

1 580 000 ₽
2-комн. квартира
Оренбургская обл, г Новотроицк, ул Марии Корецкой, д 9

1 570 000 ₽
2-комн. квартира
Оренбургская обл, г Новотроицк, ул Мичурина, д 18А

6 390 000 ₽
Дом
Россия, Оренбургская обл, Оренбург, ул. Герцена,11

1 280 000 ₽
1-комн. квартира
Оренбургская обл, г Новотроицк, ул Зеленая

5 150 000 ₽
Дом
Россия, Оренбургская обл, Оренбург, ул. Степана Разина,65

1 500 000 ₽
2-комн. квартира
Оренбургская обл, г Новотроицк, ул Уральская, д 13

2 300 000 ₽
2-комн. квартира
Оренбургская обл, г Новотроицк, ул Советская, д 158

3 300 000 ₽
3-комн. квартира

4 500 000 ₽
Дом

2 100 000 ₽
2-комн. квартира
Россия, Оренбургская обл, Орск, пер. Нежинский,3а