АН АДРЕСА
Kotikova-adresa@yandex.ru
Скажите продавцу, что вы нашли объявление на 156.ru
1
/
3
6 799 000 ₽
12
Оренбург
АН АДРЕСА
!!! ДОМА ОТ ЗАСТРОЙЩИКА!!!ИПОТЕЧНАЯ СТАВКА 3-6%ЛЮБАЯ ФОРМА РАСЧЕТА( любой сертификат,материнский капитал,обычная ипотека, семейная ипотека, наличный расчет).В ПРОДАЖЕ ДОМА 130 М 6 СотЗАБОР по всему периметру участка!
поселок МАРЬИНО-НЕЗАТОПЛЯЕМАЯ ЗОНА!
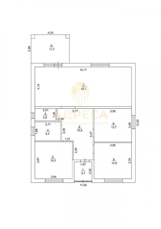
Общая площадь дома 130 мКухня-гостинная 42м с выходом на террасуСпальни-3Открытый большой холС/У+котельнаяТамбур закрытыйКачественная входная дверь с термо-разрывомСтены оштукатурены под обои,кeрaмзитo-блок , утеплитель 10, кирпич.Потолок подшит плитами ОSВ.Откосы, подоконники подготовлены.Радиаторы отопления во всех комнатах, теплый пол по всему периметру дома.Двухконтурный газовый котел.Скважина, септик -3 кольца.Фундaмeнт свaйнo лентoчный,глубина свай 2 м,шаг 1,5м, завoдской бeтoн!Крыша-Металлoчерепица с утеплением,отмостка.
Наша компания провела профессиональную юридическую проверку объекта недвижимости, гарантируя вам защиту от потенциальных рисков.
Сделка будет осуществлена с полной юридической прозрачностью, обеспечивая вас надежным и безопасным приобретением жилья.Офис продаж ул.Восточная 42/3Ваш персональный специалист Котикова Юлия
ID объекта в нашей базе: 1716
Тип недвижимости
Адрес
Этажность
Площадь
Дом
Россия, Оренбургская обл, Оренбург, ул. Северная
1
130
ID объявления
Обновлено
Создано
Действительно до
822236
2026-02-02 05:42:28
2026-02-02 05:42:28
2026-05-03 05:42:28

1 300 000 ₽
1-комн. квартира
Оренбургская обл, г Новотроицк, ул Железнодорожная, д 59
2 350 000 ₽
2-комн. квартира
Оренбургская обл, г Новотроицк, ул Уральская, д 2А
450 000 ₽
Земельный участок
Оренбургская обл, г Новотроицк, поселок Аккермановка

2 500 000 ₽
3-комн. квартира
Оренбургская обл, г Новотроицк, Комсомольский пр-кт, д 26

2 900 000 ₽
Комната
Оренбургская обл, г Новотроицк, ул Зеленая, д 37

1 750 000 ₽
2-комн. квартира
Россия, Оренбургская обл, Орск, ул. Орская,8

3 950 000 ₽
Дом
Россия, Оренбургская обл, Южный Урал, ул. Дорожная,19

3 350 000 ₽
2-комн. квартира
Россия, Оренбургская обл, Оренбург, ул. Березка,2

2 000 000 ₽
2-комн. квартира
Оренбургская обл, г Новотроицк, ул Советская, д 132

6 299 000 ₽
Дом
Россия, Оренбургская обл, Оренбург, р-н Сакмарский, СНТ "Сокол", ул. 4А, д.885
4 400 000 ₽
3-комн. квартира
Оренбургская обл, г Новотроицк, ул Родимцева, д 2

договорная
2 000 000 ₽
2-комн. квартира
Оренбургская обл, г Новотроицк, Комсомольский пр-кт, д 26

150 000 ₽
Земельный участок
Оренбургская одласть.Кувандыкский р-н.п.Сара

1 500 000 ₽
2-комн. квартира
Оренбургская обл, г Новотроицк, ул Есенкова, д 8

7 000 000 ₽
Дом
Россия, Оренбургская обл, Соловьевка, ул. Степная
570 000 ₽
Земельный участок
Оренбургская обл, г Новотроицк, село Хабарное

4 500 000 ₽
3-комн. квартира

2 350 000 ₽
2-комн. квартира
Оренбургская обл, г Новотроицк, ул Комарова, д 9

2 200 000 ₽
Дом
Россия, Оренбургская обл, Орск, пер. 1-й Узкий

2 800 000 ₽
2-комн. квартира
Оренбургская обл, г Новотроицк, ул Гагарина, д 6

2 100 000 ₽
2-комн. квартира
Оренбургская обл, г Новотроицк, ул Винокурова, д 8

1 550 000 ₽
Дом
Россия, Оренбургская обл, Оренбург, 197

5 950 000 ₽
Дом
Россия, Оренбургская обл, Оренбург, 12