АН АДРЕСА
strel.921-adresa56@yandex.ru
Скажите продавцу, что вы нашли объявление на 156.ru
1
/
3
7 200 000 ₽
16
Оренбург
АН АДРЕСА
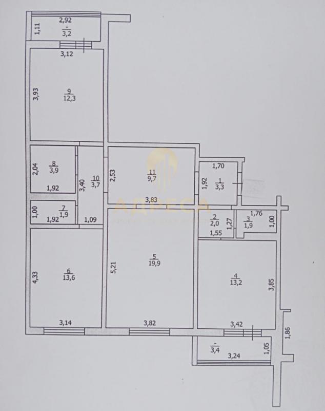
Продаётся просторная трёхкомнатная квартира на комфортном 9 этаже.Район с развитой инфраструктурой: магазины, рынок "Петровский", школа №8, №32, Пушкинский лицей, детский сад №4, №140. В пешей доступности культурный комплекс «Национальная деревня» и парк им. Ю.А. Гагарина.Идеальное предложение для семьи, которая ценит комфортное проживание.Ключевые параметры:· Общая площадь: 85,4 м².· Этаж: 9/16.· Комнаты: изолированные.Описание и преимущества:· Современный ремонт: Полы залиты и выровнены, стены идеально ровные, полностью заменена вся электрическая проводка.· Отделка: Ванная, санузел отделаны современным кафелем.· Комфорт и технологии: В ванной установлен «тёплый пол», в гостиной мощная сплит-система. Высокие потолки 2,9 метра.· Функциональность: Удобная кухня 14 м² с встроенной мебелью "Мария". Есть гардеробная комната со стиральной машинойИнфраструктура и двор:· Во дворе — зона для барбекю, современная детская и спортивная площадки, хоккейная коробка.· В шаговой доступности всё необходимое: аптека, почта, продуктовые магазины.· Круглосуточное видеонаблюдение (Уфанет) в подъездах и лифтах для вашей безопасности.Транспортная развязка:· Остановка общественного транспорта в 3х минутах ходьбы. Автобусы № 7, 20, 79Н, 53Н позволят добраться в любую точку города без проблем.· Рядом расположены улицы: Алтайская, Карагандинская, Пр. Гагарина, Лесозащитная.✅Если у Вас не продан объект недвижимости, но Вы хотите приобрести наш, мы готовы помочь Вам реализовать эту мечту! Наша компания всегда готова предложить Вам лучшие варианты решения, которые соответствуют Вашим потребностям!Звоните и записывайтесь на просмотр!!!
ID объекта в нашей базе: 1726
Тип недвижимости
Адрес
Этажность
Этаж
Площадь
3-комн. квартира
Россия, Оренбургская обл, Оренбург, ул. Мира,3/1
16
9
85.4
ID объявления
Обновлено
Создано
Действительно до
821102
2026-01-31 05:42:29
2026-01-31 05:42:29
2026-05-01 05:42:29

7 055 000 ₽
Дом
Россия, Оренбургская обл, Оренбург, 8

4 990 000 ₽
1-комн. квартира
Россия, Оренбургская обл, Оренбург, ул. Фронтовиков,8/2

1 350 000 ₽
1-комн. квартира
Оренбургская обл, г Новотроицк, ул Зеленая, д 77

17 100 000 ₽
Помещение
Россия, Оренбургская обл, Сакмара, ул. Советская,44

1 700 000 ₽
1-комн. квартира

2 790 000 ₽
2-комн. квартира

2 900 000 ₽
2-комн. квартира
Россия, Оренбургская обл, Орск, ул. Машиностроителей,16А

1 800 000 ₽
3-комн. квартира
Оренбургская обл, г Новотроицк, ул Ломоносова, д 48

2 200 000 ₽
2-комн. квартира
Россия, Оренбургская обл, Орск, ул. Ялтинская,93

6 500 000 ₽
3-комн. квартира
Оренбургская обл, г Новотроицк, ул Советская, д 97

8 700 000 ₽
Дом
Россия, Оренбургская обл, Оренбург, ул. Цвиллинга,88/2

1 700 000 ₽
2-комн. квартира

2 800 000 ₽
2-комн. квартира
Оренбургская обл, г Новотроицк, ул Советская, д 85

3 250 000 ₽
3-комн. квартира
Оренбургская обл, г Новотроицк, ул Библиотечная, д 2

250 000 ₽
Гараж

7 150 000 ₽
2-комн. квартира
Россия, Оренбургская обл, Оренбург, ул. Поляничко,7/1

1 280 000 ₽
1-комн. квартира
Оренбургская обл, г Новотроицк, ул Зеленая

5 000 000 ₽
3-комн. квартира
Оренбургская обл, г Новотроицк, ул Советская, д 65

3 450 000 ₽
2-комн. квартира

1 750 000 ₽
2-комн. квартира
Россия, Оренбургская обл, Орск, ул. Орская,8

2 500 000 ₽
2-комн. квартира
Оренбургская обл, г Гай, ул Молодёжная, д 8

350 ₽
Гараж
Оренбургская обл, г Новотроицк, ул Советская, д 81

2 250 000 ₽
1-комн. квартира
Россия, Оренбургская обл, Орск, ул. Домбаровская,30

3 900 000 ₽
2-комн. квартира