АН АДРЕСА
a.borisova-adresa@yandex.ru
Скажите продавцу, что вы нашли объявление на 156.ru
1
/
3
9 161 690 ₽
8
Оренбург
АН АДРЕСА
Документы готовы, быстрый выход на сделку!!!!ДоступностьСемейная ипотека 6 %, сельская ипотека 3 %
Наши дома подходят под субсидированные ипотечные программы, военной ипотекой, различными жилищными сертификатами и материнским капиталом. Все это делает покупку максимально удобной и комфортной для наших клиентов, а самое главное выгодной!
Материал стен: газоблоки
Терраса или веранда: покрыты керамогранитом
Лестница: металлический каркас
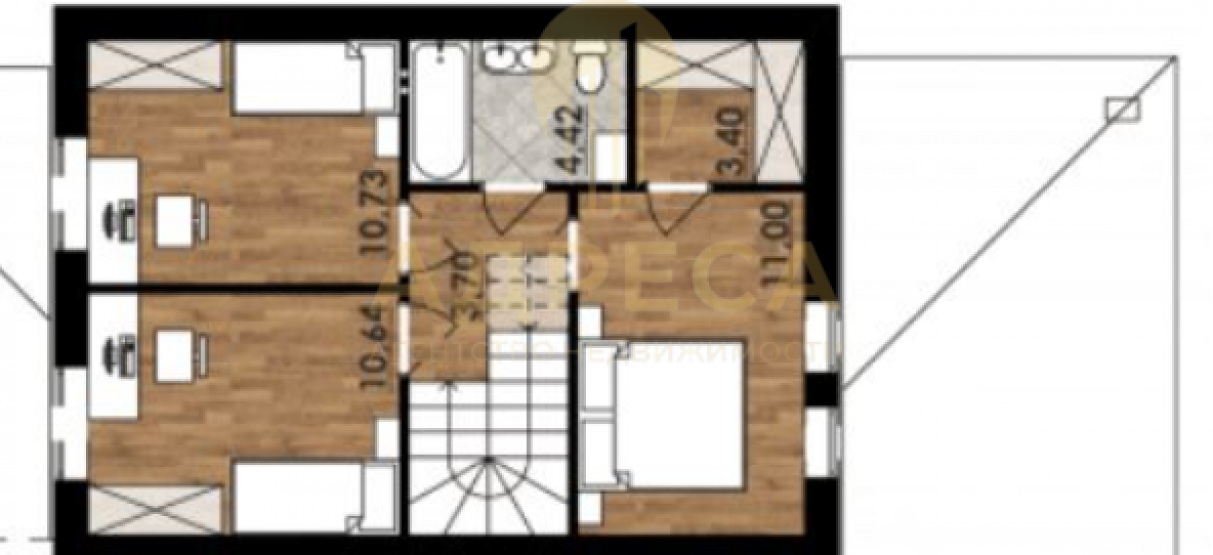
Санузел: на 1 и 2 этажах
Коммуникации: электричество, газ, отопление, канализация
Ремонт: улучшенная предчистовая отделка
Интернет и ТВ: Wi-Fi, телевидение
Парковка: парковочное место
Транспортная доступность: асфальтированная дорога, остановка общественного транспорта
Инфраструктура: магазин, аптека, детский сад, школа
Расстояние до центра города: 12 км
В подарок: территория участка огорожена забором, смонтированы въездные ворота под автомобиль и калитка с электромеханическим замком, уличное освещение, установлен почтовый ящик. Вокруг дома залита бетонная отмостка, бетонная дорожка и площадка под автомобиль, выполнено уличное освещение.
Внутренная отделка
стены оштукатурены по маякам, отшпатлеваны под обои
полы – утепленная армированная бетонная стяжка с последующим устройством наливного пола
установлена пластиковая подоконная доска, дверные и оконные откосы облагорожены
Качество
Наши дома построены из заводского газобетонного блока КОТТЕДЖ, а фасад облицован керамическим кирпичом. Установлены качественные ПВХ окна с двойным мультифункциональным стеклопакетом и надежная металлическая дверь с терморазрывом. В качестве кровельного покрытия выбрана двухслойная гибкая черепица Shinglas от компании ТЕХНОНИКОЛЬ, карниз подшит металлическими софитами, смонтирована водосточная система производства ТЕХНОНИКОЛЬ.
Инфраструктура
Поселок имеет развитую инфраструктуру, в шаговой доступности школа, детский сад, сетевые магазины, аптеки и ФАП. Поселок имеет хорошую транспортную доступность, ходит общественный транспорт. Сельская прописка и тарифы гарантируют вам экономию бюджета на обслуживание дома.
ОТ НАС: помощь в одобрении ипотеки ,полное юридическое сопровождение, помощь в продаже вашей недвижимости, работа с сертификатами.ПРОСМОТР В УДОБНОЕ ДЛЯ ВАС ВРЕМЯ, ПО ПРЕДВАРИТЕЛЬНОЙ ДОГОВОРЕННОСТИ!
ID объекта в нашей базе: 1537
Адрес
Этажность
Площадь
Россия, Оренбургская обл, Оренбург, 41 а
2
102
ID объявления
Обновлено
Создано
Действительно до
821057
2026-01-31 05:35:04
2026-01-31 05:35:04
2026-05-01 05:35:04

2 800 000 ₽
3-комн. квартира
Оренбургская обл, г Гай, ул Молодёжная, д 63

10 700 000 ₽
Россия, Оренбургская обл, Орск, ул. Черногорская

1 850 000 ₽
2-комн. квартира
Оренбургская обл, г Новотроицк, ул Советская, д 115

1 900 000 ₽
2-комн. квартира
Оренбургская обл, г Новотроицк, ул Зеленая, д 22

2 000 000 ₽
2-комн. квартира
Оренбургская обл, г Новотроицк, ул Советская, д 55А

230 000 ₽
Комната
Оренбургская обл, г Новотроицк, ул Губина, д 16

7 870 000 ₽
Дом
Россия, Оренбургская обл, Оренбург, Земская 19

3 850 000 ₽
2-комн. квартира
Оренбургская обл, г Новотроицк, ул Советская, д 66

2 200 000 ₽
2-комн. квартира
Декабристов 7

2 100 000 ₽
2-комн. квартира
Оренбургская обл, г Новотроицк, ул Советская, д 125

680 000 ₽
Сад
договорная
3-комн. квартира
Оренбургская обл, г Новотроицк, ул Уметбаева, д 7

2 990 000 ₽
2-комн. квартира
Оренбургская обл, г Гай, ул Ленина, д 56

1 750 000 ₽
2-комн. квартира
Оренбургская обл, г Новотроицк, ул Пушкина, д 66А
2 399 000 ₽
1-комн. квартира
Россия, Оренбургская обл, Оренбург, с.нежинка ул.фестивальная 29
4 900 000 ₽
Помещение
Новотроицк Советская 38
2 500 000 ₽
3-комн. квартира
Оренбургская обл, г Новотроицк, ул Винокурова, д 12

1 750 000 ₽
1-комн. квартира

1 950 000 ₽
2-комн. квартира
г Гай, ул Ленина, 42А
2 600 000 ₽
2-комн. квартира
Оренбургская обл, г Новотроицк, ул Советская, д 117

3 250 000 ₽
2-комн. квартира
Оренбургская обл, г Новотроицк, ул Советская, д 9

850 000 ₽
Дом
Россия, Оренбургская обл, Татищево, ул. Советская,28

1 100 000 ₽
2-комн. квартира
Оренбургская обл, г Новотроицк, ул Свистунова, д 10А

1 350 000 ₽
1-комн. квартира
Оренбургская обл, г Новотроицк, ул Зеленая, д 59