АН АДРЕСА
Hohlova-adresa@yandex.ru
Скажите продавцу, что вы нашли объявление на 156.ru
1
/
3
8 700 000 ₽
7
Подгородняя Покровка
АН АДРЕСА
Семейная ипотека 6%
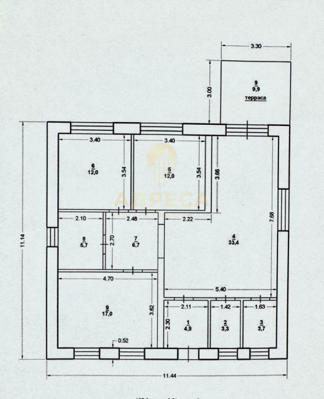
Ипотека под строительство Жилой дом 129 кв.м. Подгородняя Покровка Планировка продумана до мелочей.
-Кухня гостиная 33,4 кв.м. с выходом на террасу; -Два санузла, отдельная котельная; - Три изолированные комнаты 12 кв.м, 12 кв. м., 17 кв. м; О доме: - фундамент свайно-ростверковый; -крыша: металлочерепица; -материал стен: керамзитоблок; -терасса залита;- входная дверь с терморазрывом.Инфраструктура: - в шаговой доступности школа и детский сад; -магазины;-автошкола;-Оренбургский аграрный колледж; -Асфальтированные дороги; -Удобный выезд из поселка.Альтернативные направления: Ленина, Заречье, Соловьи, Марьино, Нежинка, Ростоши, Пригородный, Ивановка, Приуралье
ID объекта в нашей базе: 1579
Тип недвижимости
Адрес
Этажность
Площадь
Дом
Россия, Оренбургская обл, Подгородняя Покровка, ул. Российская,44
1
129
ID объявления
Обновлено
Создано
Действительно до
819954
2026-01-29 05:37:29
2026-01-29 05:37:29
2026-04-29 05:37:29

2 800 000 ₽
1-комн. квартира

7 500 000 ₽
Дом
Россия, Оренбургская обл, Соловьевка, ул. Трудовая

1 100 000 ₽
1-комн. квартира
Оренбургская обл, г Новотроицк, ул Зинина, д 1

2 080 000 ₽
3-комн. квартира
Оренбургская обл, г Новотроицк, ул Пушкина, д 46

2 700 000 ₽
Дача
Орск, Садовая 2

1 ₽
Помещение

2 660 000 ₽
2-комн. квартира
Оренбургская обл, г Новотроицк, ул Уральская, д 8

1 300 000 ₽
2-комн. квартира
Оренбургская обл, г Новотроицк, ул Уральская, д 35

6 500 000 ₽
Дом
Россия, Оренбургская обл, Оренбург, Array

4 610 000 ₽
1-комн. квартира
Россия, Оренбургская обл, Оренбург, пер. Слесарный,7

1 600 000 ₽
2-комн. квартира
Оренбургская обл, г Новотроицк, ул Суворова, д 7

2 500 000 ₽
3-комн. квартира
Оренбургская обл, г Новотроицк, Комсомольский пр-кт, д 26

3 850 000 ₽
3-комн. квартира

2 100 000 ₽
2-комн. квартира
Оренбургская обл, г Гай, Парковый пер, д 1

1 450 000 ₽
2-комн. квартира
Оренбургская обл, г Новотроицк, пр-кт Металлургов, д 30

7 200 000 ₽
2-комн. квартира
Россия, Оренбургская обл, Оренбург, пр-кт. Победы,149/1

4 500 000 ₽
3-комн. квартира

4 550 000 ₽
3-комн. квартира
2 000 000 ₽
2-комн. квартира
Оренбургская обл, г Новотроицк, ул Советская, д 96

1 500 000 ₽
Дом

2 100 000 ₽
2-комн. квартира
Россия, Оренбургская обл, Орск, пер. Нежинский,3а
1 000 000 ₽
Дом
Оренбургская обл, Кувандыкский р-н, село Сара

2 100 000 ₽
1-комн. квартира

3 690 000 ₽
3-комн. квартира
Оренбургская обл, г Новотроицк, Комсомольский пр-кт, д 48