АН АДРЕСА
Lilia.k-adresa@yandex.ru
Скажите продавцу, что вы нашли объявление на 156.ru
1
/
3
3 850 000 ₽
11
Оренбург
АН АДРЕСА
ПРЕДЛАГАЕМ ВАШЕМУ ВНИМАНИЮ ПРОСТОРНУЮ И УЮТНУЮ ДВУХКОМНАТНУЮ КВАРТИРУ!
КВАРТИРА С НОВЫМ ОТЛИЧНЫМ РЕМОНТОМ, ЧТО ПОЗВОЛЯЕТ ЗАЕХАТЬ и ЖИТЬ!
О КВАРТИРЕ:
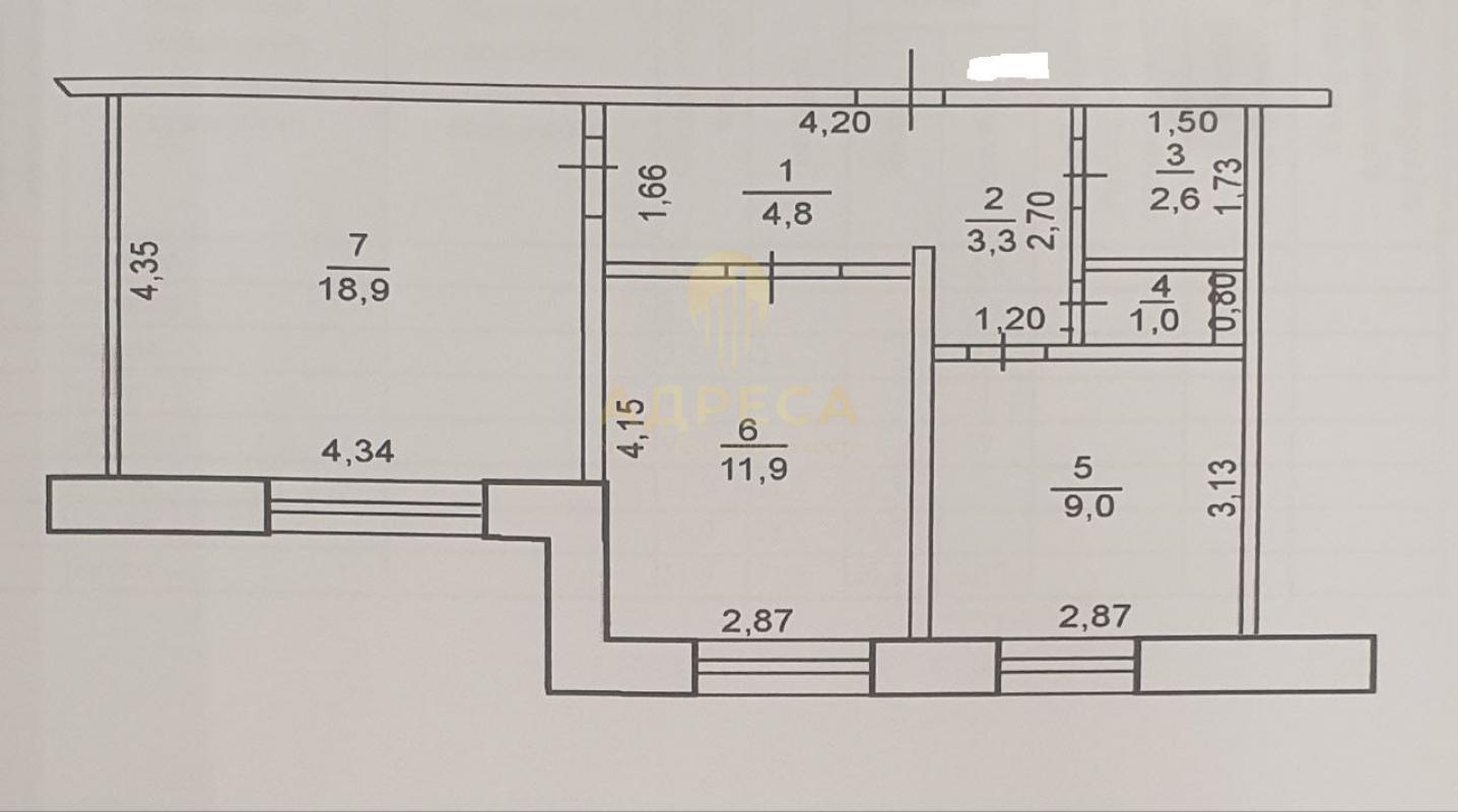
Общая площадь квартиры – 51.5 кв.м Очень хорошая планировка – квадратный просторный зал площадью 18.9 кв.м,, светлая спальня 11,9 кв.м., и уютная кухня 9 кв.м. В квартире выполнен качественный ремонт. Во всех комнатах пластиковые окна. С/У раздельный в кафеле. Качественные деревянные двери. Полы с подогревом! Из мебели остается вместительный угловой кухонный гарнитур. Сплит система. Коммуникации все центральные. Квартира очень теплая. Соседи очень хорошие и дружные.
ИНФРАСТРУКТУРА:
—д/с 106.
—СОШ №11
—Магазины Пятерочка, Магнит, Красное/белое, аптеки и др.;
Остановка общественного транспорта в шаговой доступности: маршруты: 78Н (62), 23.Рассмотрим все формы расчета: ипотека, сертификаты, наличный и безналичный расчет.
- Поможем купить в ипотеку! Узнавайте по телефону подробные условия.
Юридическое сопровождение сделки.
Если вам понравился этот вариант, но у вас ещё не продана своя недвижимость, предложите нам, возможно у нас прямо сейчас есть на неё покупатель.
ID объекта в нашей базе: 1394
Тип недвижимости
Адрес
Этажность
Этаж
Площадь
2-комн. квартира
Россия, Оренбургская обл, Оренбург, ул. Авиационная,20
5
1
51.5
ID объявления
Обновлено
Создано
Действительно до
819901
2026-01-29 05:28:06
2026-01-29 05:28:06
2026-04-29 05:28:06

2 700 000 ₽
Дача
Орск, Садовая 2

2 080 000 ₽
3-комн. квартира
Оренбургская обл, г Новотроицк, ул Пушкина, д 46

7 000 000 ₽
Россия, Оренбургская обл, Южный Урал, 1

2 200 000 ₽
1-комн. квартира

3 200 000 ₽
Земельный участок
Россия, Оренбургская обл, Орск, Национальная 57

1 990 000 ₽
2-комн. квартира
Оренбургская обл, г Новотроицк, ул Мира, д 12

2 850 000 ₽
Дом
Россия, Оренбургская обл, Оренбург, ул. Макаровой-Мутновой,195

4 300 000 ₽
Дом
Россия, Оренбургская обл, Орск, ул. Красногвардейская

1 830 000 ₽
3-комн. квартира
Оренбургская обл, г Новотроицк, ул Советская, д 65

1 ₽
Помещение

1 870 000 ₽
2-комн. квартира
Оренбургская обл, г Новотроицк, ул Орская, д 23

1 850 000 ₽
1-комн. квартира

договорная
4-комн. квартира
Оренбургская обл, г Новотроицк, ул Зеленая, д 65

4 480 000 ₽
3-комн. квартира
Оренбургская обл, г Новотроицк, ул Марии Корецкой, д 33А

2 850 000 ₽
3-комн. квартира
Оренбургская обл, г Гай, мкр 8-й, д 13

1 600 000 ₽
2-комн. квартира
Оренбургская обл, г Новотроицк, ул Библиотечная, д 4А

3 000 000 ₽
2-комн. квартира
Россия, Оренбургская обл, Орск, ул. Московская,17

2 000 000 ₽
1-комн. квартира
Оренбургская обл, г Новотроицк, ул Библиотечная, д 6

999 999 ₽
Россия, Оренбургская обл, Орловка, ул. Школьная,10

1 200 000 ₽
1-комн. квартира
Оренбургская обл, г Новотроицк, ул Комарова, д 4

2 100 000 ₽
2-комн. квартира
Оренбургская обл, г Новотроицк, ул Марии Корецкой, д 19

3 150 000 ₽
2-комн. квартира
Россия, Оренбургская обл, Орск, ул. Огородная,27А

1 100 000 ₽
1-комн. квартира
Оренбургская обл, г Новотроицк, ул Советская, д 57

5 000 000 ₽
Дом