АН АДРЕСА
a.borisova-adresa@yandex.ru
Скажите продавцу, что вы нашли объявление на 156.ru
1
/
3
9 161 690 ₽
6
Оренбург
АН АДРЕСА
Документы готовы, быстрый выход на сделку!!!!ДоступностьСемейная ипотека 6 %, сельская ипотека 3 %
Наши дома подходят под субсидированные ипотечные программы, военной ипотекой, различными жилищными сертификатами и материнским капиталом. Все это делает покупку максимально удобной и комфортной для наших клиентов, а самое главное выгодной!
Материал стен: газоблоки
Терраса или веранда: покрыты керамогранитом
Лестница: металлический каркас
Санузел: на 1 и 2 этажах
Коммуникации: электричество, газ, отопление, канализация
Ремонт: улучшенная предчистовая отделка
Интернет и ТВ: Wi-Fi, телевидение
Парковка: парковочное место
Транспортная доступность: асфальтированная дорога, остановка общественного транспорта
Инфраструктура: магазин, аптека, детский сад, школа
Расстояние до центра города: 12 км
В подарок: территория участка огорожена забором, смонтированы въездные ворота под автомобиль и калитка с электромеханическим замком, уличное освещение, установлен почтовый ящик. Вокруг дома залита бетонная отмостка, бетонная дорожка и площадка под автомобиль, выполнено уличное освещение.
Внутренная отделка
стены оштукатурены по маякам, отшпатлеваны под обои
полы – утепленная армированная бетонная стяжка с последующим устройством наливного пола
установлена пластиковая подоконная доска, дверные и оконные откосы облагорожены
Качество
Наши дома построены из заводского газобетонного блока КОТТЕДЖ, а фасад облицован керамическим кирпичом. Установлены качественные ПВХ окна с двойным мультифункциональным стеклопакетом и надежная металлическая дверь с терморазрывом. В качестве кровельного покрытия выбрана двухслойная гибкая черепица Shinglas от компании ТЕХНОНИКОЛЬ, карниз подшит металлическими софитами, смонтирована водосточная система производства ТЕХНОНИКОЛЬ.
Инфраструктура
Поселок имеет развитую инфраструктуру, в шаговой доступности школа, детский сад, сетевые магазины, аптеки и ФАП. Поселок имеет хорошую транспортную доступность, ходит общественный транспорт. Сельская прописка и тарифы гарантируют вам экономию бюджета на обслуживание дома.
ОТ НАС: помощь в одобрении ипотеки ,полное юридическое сопровождение, помощь в продаже вашей недвижимости, работа с сертификатами.ПРОСМОТР В УДОБНОЕ ДЛЯ ВАС ВРЕМЯ, ПО ПРЕДВАРИТЕЛЬНОЙ ДОГОВОРЕННОСТИ!
ID объекта в нашей базе: 1537
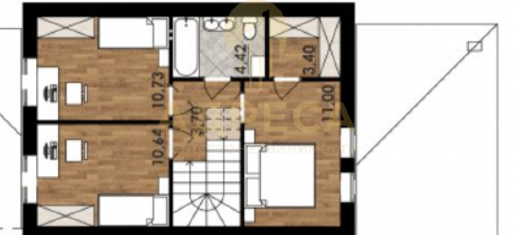
Адрес
Этажность
Площадь
Россия, Оренбургская обл, Оренбург, 41 а
2
102
ID объявления
Обновлено
Создано
Действительно до
818785
2026-01-27 05:35:24
2026-01-27 05:35:24
2026-04-27 05:35:24

6 999 000 ₽
Дом
Россия, Оренбургская обл, Оренбург, переулок Аптекарьский

1 100 000 ₽
2-комн. квартира
Оренбургская обл, г Новотроицк, ул Ломоносова, д 46

2 300 000 ₽
2-комн. квартира
Оренбургская обл, г Гай, ул Ленина, д 52

3 300 000 ₽
3-комн. квартира
Россия, Оренбургская обл, Оренбург, ул. Желябова,17

4 610 000 ₽
1-комн. квартира
Россия, Оренбургская обл, Оренбург, пер. Слесарный

5 700 000 ₽
3-комн. квартира
Россия, Оренбургская обл, Орск, ул. Машиностроителей,9

1 000 000 ₽
2-комн. квартира
Оренбургская обл, г Новотроицк, село Хабарное, мкр 1-й, д 8

1 700 000 ₽
2-комн. квартира

2 050 000 ₽
3-комн. квартира
Оренбургская обл, г Новотроицк, ул Советская, д 64А

4 200 000 ₽
2-комн. квартира
Оренбургская обл, г Новотроицк, ул Советская, д 66

1 450 000 ₽
1-комн. квартира
Оренбургская обл, г Гай, ул Молодёжная, д 6

3 150 000 ₽
3-комн. квартира
Россия, Оренбургская обл, Оренбург, ул. Восстания,77

350 ₽
Гараж
Оренбургская обл, г Новотроицк, ул Советская, д 81
1 150 000 ₽
1-комн. квартира
Оренбургская обл, г Новотроицк, ул Уметбаева, д 3

6 799 000 ₽
Дом
Россия, Оренбургская обл, Оренбург, ул. Северная

2 300 000 ₽
1-комн. квартира
Россия, Оренбургская обл, Оренбург, ул. Беляевская,23

3 350 000 ₽
2-комн. квартира
Россия, Оренбургская обл, Оренбург, ул. Березка,2

6 150 000 ₽
Дом
Россия, Оренбургская обл, Благословенка, 34/1

6 500 000 ₽
Дом

8 500 000 ₽
Дом
Оренбургская обл, г Гай, ул Степная, д 7

195 000 ₽
Гараж

4 200 000 ₽
3-комн. квартира
Оренбургская обл, г Новотроицк, ул Советская, д 121

5 500 000 ₽
2-комн. квартира

1 350 000 ₽
2-комн. квартира
Оренбургская обл, г Новотроицк, ул Железнодорожная, д 81