АН АДРЕСА
Hohlova-adresa@yandex.ru
Скажите продавцу, что вы нашли объявление на 156.ru
1
/
3
8 700 000 ₽
6
Подгородняя Покровка
АН АДРЕСА
Семейная ипотека 6%
Ипотека под строительство Жилой дом 129 кв.м. Подгородняя Покровка Планировка продумана до мелочей.
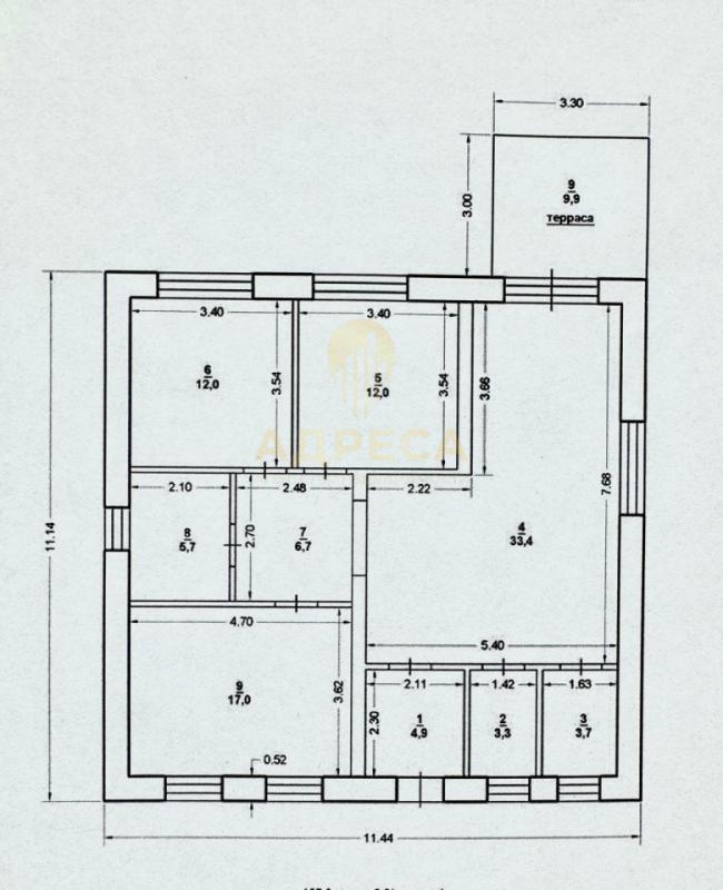
-Кухня гостиная 33,4 кв.м. с выходом на террасу; -Два санузла, отдельная котельная; - Три изолированные комнаты 12 кв.м, 12 кв. м., 17 кв. м; О доме: - фундамент свайно-ростверковый; -крыша: металлочерепица; -материал стен: керамзитоблок; -терасса залита;- входная дверь с терморазрывом.Инфраструктура: - в шаговой доступности школа и детский сад; -магазины;-автошкола;-Оренбургский аграрный колледж; -Асфальтированные дороги; -Удобный выезд из поселка.Альтернативные направления: Ленина, Заречье, Соловьи, Марьино, Нежинка, Ростоши, Пригородный, Ивановка, Приуралье
ID объекта в нашей базе: 1579
Тип недвижимости
Адрес
Этажность
Площадь
Дом
Россия, Оренбургская обл, Подгородняя Покровка, ул. Российская,44
1
129
ID объявления
Обновлено
Создано
Действительно до
818217
2026-01-26 05:37:39
2026-01-26 05:37:39
2026-04-26 05:37:39

договорная

1 750 000 ₽
2-комн. квартира
Оренбургская обл, г Новотроицк, ул Пушкина, д 66А

2 990 000 ₽
Земельный участок
Россия, Оренбургская обл, имени 9 Января, ул. Журавлиная,34

4 500 000 ₽
1-комн. квартира
Россия, Оренбургская обл, Оренбург, ул. Уральская,2/8

10 700 000 ₽
Россия, Оренбургская обл, Орск, ул. Черногорская

1 500 000 ₽
Дом

3 300 000 ₽
2-комн. квартира
4 620 240 ₽
2-комн. квартира
, , ,

8 000 000 ₽
Дом
Россия, Оренбургская обл, Ивановка, Оренбургский р-он, Ивановский сельсовет, ул. Ломоносова, д. 20

1 500 000 ₽
1-комн. квартира
Оренбургская обл, г Новотроицк, ул Гагарина, д 14

договорная

3 500 000 ₽
Дом
Россия, Оренбургская обл, Струково, ул. Молодежная,

3 000 000 ₽
Дом

4 355 000 ₽
1-комн. квартира
Россия, Оренбургская обл, Оренбург, ул. Рокоссовского,25

2 800 000 ₽
3-комн. квартира

1 590 000 ₽
1-комн. квартира
советская 121

13 860 000 ₽
3-комн. квартира
Россия, Оренбургская обл, Оренбург, ул. Цвиллинга,68

2 500 000 ₽
Дом
Россия, Оренбургская обл, Орск, ул. Рахманинова,22

20 000 000 ₽
Дом

договорная

1 900 000 ₽
2-комн. квартира
Оренбургская обл, г Новотроицк, ул Библиотечная, д 4А

3 200 000 ₽
3-комн. квартира
Оренбургская обл, г Новотроицк, ул Советская, д 115

1 860 000 ₽
1-комн. квартира

10 000 000 ₽
Дом
Оренбургская обл, г Новотроицк, поселок Аккермановка, ул Березовая