АН АДРЕСА
Lilia.k-adresa@yandex.ru
Скажите продавцу, что вы нашли объявление на 156.ru
1
/
3
3 850 000 ₽
14
Оренбург
АН АДРЕСА
ПРЕДЛАГАЕМ ВАШЕМУ ВНИМАНИЮ ПРОСТОРНУЮ И УЮТНУЮ ДВУХКОМНАТНУЮ КВАРТИРУ!
КВАРТИРА С НОВЫМ ОТЛИЧНЫМ РЕМОНТОМ, ЧТО ПОЗВОЛЯЕТ ЗАЕХАТЬ и ЖИТЬ!
О КВАРТИРЕ:
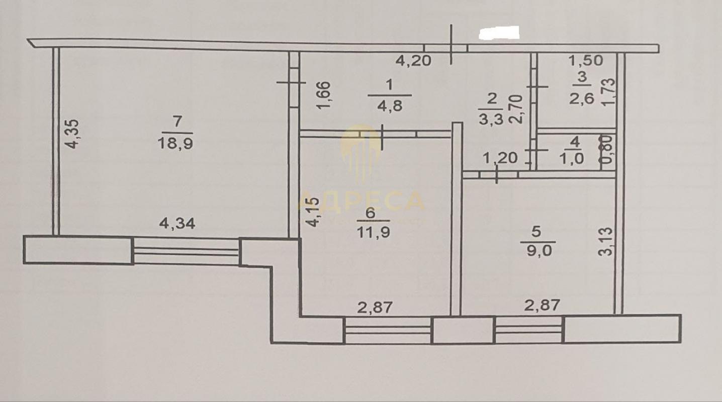
Общая площадь квартиры – 51.5 кв.м Очень хорошая планировка – квадратный просторный зал площадью 18.9 кв.м,, светлая спальня 11,9 кв.м., и уютная кухня 9 кв.м. В квартире выполнен качественный ремонт. Во всех комнатах пластиковые окна. С/У раздельный в кафеле. Качественные деревянные двери. Полы с подогревом! Из мебели остается вместительный угловой кухонный гарнитур. Сплит система. Коммуникации все центральные. Квартира очень теплая. Соседи очень хорошие и дружные.
ИНФРАСТРУКТУРА:
—д/с 106.
—СОШ №11
—Магазины Пятерочка, Магнит, Красное/белое, аптеки и др.;
Остановка общественного транспорта в шаговой доступности: маршруты: 78Н (62), 23.Рассмотрим все формы расчета: ипотека, сертификаты, наличный и безналичный расчет.
- Поможем купить в ипотеку! Узнавайте по телефону подробные условия.
Юридическое сопровождение сделки.
Если вам понравился этот вариант, но у вас ещё не продана своя недвижимость, предложите нам, возможно у нас прямо сейчас есть на неё покупатель.
ID объекта в нашей базе: 1394
Тип недвижимости
Адрес
Этажность
Этаж
Площадь
2-комн. квартира
Россия, Оренбургская обл, Оренбург, ул. Авиационная,20
5
1
51.5
ID объявления
Обновлено
Создано
Действительно до
818170
2026-01-26 05:28:19
2026-01-26 05:28:19
2026-04-26 05:28:19

2 100 000 ₽
2-комн. квартира
Оренбургская обл, г Новотроицк, ул Зеленая, д 37

1 450 000 ₽
2-комн. квартира
Оренбургская обл, г Новотроицк, ул Гагарина, д 10

2 150 000 ₽
2-комн. квартира

3 000 000 ₽
2-комн. квартира
Оренбургская обл, г Новотроицк, ул Пушкина, д 46А

1 700 000 ₽
2-комн. квартира
Оренбургская обл, г Новотроицк, ул Зеленая, д 55а

4 000 000 ₽
3-комн. квартира
Оренбургская обл, г Гай, Октябрьский пер, д 4
3 700 000 ₽
Дача
Оренбургская обл, г Новотроицк, тер. СНТ Утес № 31

3 400 000 ₽
Дом
Оренбургская обл, г Новотроицк, ул Грибоедова

2 800 000 ₽
2-комн. квартира
Оренбургская обл, г Новотроицк, ул Советская, д 121

6 999 965 ₽
Дом
Россия, Оренбургская обл, Благословенка, пер. Аптекарский, null

2 100 000 ₽
Земельный участок
Россия, Оренбургская обл, Орск, ул. Осиновская,10
900 000 ₽
Сад

7 799 000 ₽
5-комн. квартира
Россия, Оренбургская обл, Оренбург, мкр. 70 лет ВЛКСМ,3

3 200 000 ₽
2-комн. квартира

1 560 000 ₽
2-комн. квартира
Оренбургская обл, г Новотроицк, ул Железнодорожная, д 59А

1 699 000 ₽
1-комн. квартира
Россия, Оренбургская обл, Оренбург, ул. 1 Мая,148

7 870 000 ₽
Дом
Россия, Оренбургская обл, Оренбург, Земская 19

1 980 000 ₽
2-комн. квартира
Оренбургская обл, г Новотроицк, ул Советская, д 136

1 550 000 ₽
2-комн. квартира
Ул Железнодорожная
1 ₽
Помещение

2 000 000 ₽
2-комн. квартира
Оренбургская обл, г Новотроицк, ул Мира, д 5

900 000 ₽
3-комн. квартира
Россия, Оренбургская обл, Соль-Илецк, ул. Победы,6

договорная

8 500 000 ₽
Дом
Россия, Оренбургская обл, Ивановка, ул. Новороссийская, 19