АН АДРЕСА
a.borisova-adresa@yandex.ru
Скажите продавцу, что вы нашли объявление на 156.ru
1
/
3
9 161 690 ₽
20
Оренбург
АН АДРЕСА
Документы готовы, быстрый выход на сделку!!!!ДоступностьСемейная ипотека 6 %, сельская ипотека 3 %
Наши дома подходят под субсидированные ипотечные программы, военной ипотекой, различными жилищными сертификатами и материнским капиталом. Все это делает покупку максимально удобной и комфортной для наших клиентов, а самое главное выгодной!
Материал стен: газоблоки
Терраса или веранда: покрыты керамогранитом
Лестница: металлический каркас
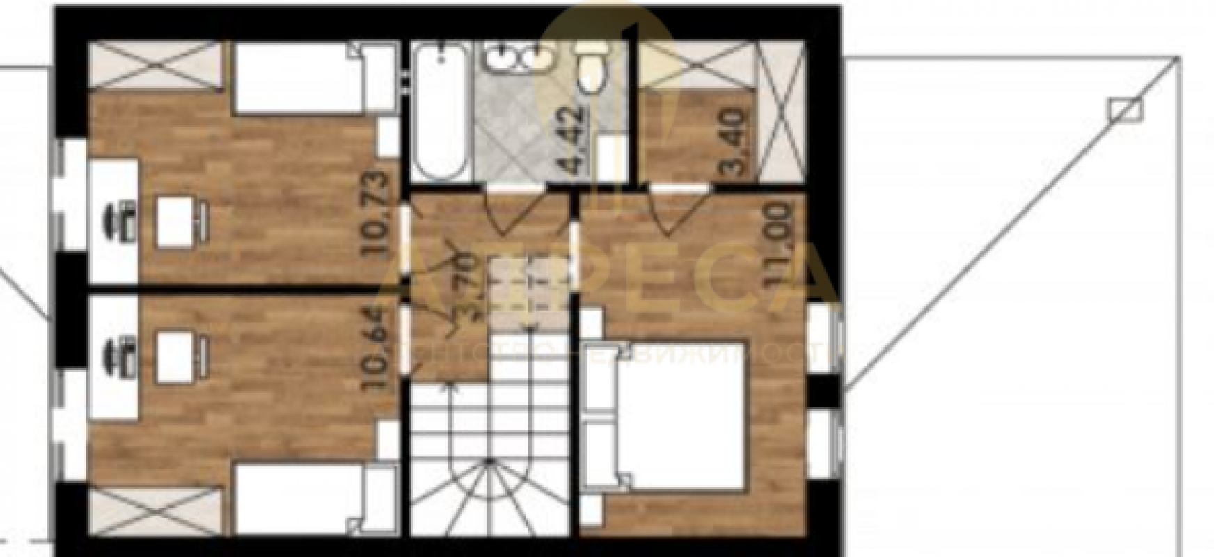
Санузел: на 1 и 2 этажах
Коммуникации: электричество, газ, отопление, канализация
Ремонт: улучшенная предчистовая отделка
Интернет и ТВ: Wi-Fi, телевидение
Парковка: парковочное место
Транспортная доступность: асфальтированная дорога, остановка общественного транспорта
Инфраструктура: магазин, аптека, детский сад, школа
Расстояние до центра города: 12 км
В подарок: территория участка огорожена забором, смонтированы въездные ворота под автомобиль и калитка с электромеханическим замком, уличное освещение, установлен почтовый ящик. Вокруг дома залита бетонная отмостка, бетонная дорожка и площадка под автомобиль, выполнено уличное освещение.
Внутренная отделка
стены оштукатурены по маякам, отшпатлеваны под обои
полы – утепленная армированная бетонная стяжка с последующим устройством наливного пола
установлена пластиковая подоконная доска, дверные и оконные откосы облагорожены
Качество
Наши дома построены из заводского газобетонного блока КОТТЕДЖ, а фасад облицован керамическим кирпичом. Установлены качественные ПВХ окна с двойным мультифункциональным стеклопакетом и надежная металлическая дверь с терморазрывом. В качестве кровельного покрытия выбрана двухслойная гибкая черепица Shinglas от компании ТЕХНОНИКОЛЬ, карниз подшит металлическими софитами, смонтирована водосточная система производства ТЕХНОНИКОЛЬ.
Инфраструктура
Поселок имеет развитую инфраструктуру, в шаговой доступности школа, детский сад, сетевые магазины, аптеки и ФАП. Поселок имеет хорошую транспортную доступность, ходит общественный транспорт. Сельская прописка и тарифы гарантируют вам экономию бюджета на обслуживание дома.
ОТ НАС: помощь в одобрении ипотеки ,полное юридическое сопровождение, помощь в продаже вашей недвижимости, работа с сертификатами.ПРОСМОТР В УДОБНОЕ ДЛЯ ВАС ВРЕМЯ, ПО ПРЕДВАРИТЕЛЬНОЙ ДОГОВОРЕННОСТИ!
ID объекта в нашей базе: 1537
Адрес
Этажность
Площадь
Россия, Оренбургская обл, Оренбург, 41 а
2
102
ID объявления
Обновлено
Создано
Действительно до
817022
2026-01-24 05:35:32
2026-01-24 05:35:32
2026-04-24 05:35:32
3 700 000 ₽
4-комн. квартира
Оренбургская обл, г Новотроицк, ул Советская, д 57

3 560 000 ₽
1-комн. квартира
Россия, Оренбургская обл, Оренбург, ул. Беляевская,15

2 500 000 ₽
2-комн. квартира
Россия, Оренбургская обл, Орск, ул. Щорса,11А

2 200 000 ₽
1-комн. квартира

3 100 000 ₽
3-комн. квартира
Оренбургская обл, г Гай, ул Войченко, д 7А
950 ₽
1-комн. квартира
Декабристов

2 180 000 ₽
2-комн. квартира
Оренбургская обл, г Новотроицк, ул Советская, д 98

8 700 000 ₽
Дом
Россия, Оренбургская обл, Подгородняя Покровка, ул. Российская,44

1 500 000 ₽
Земельный участок
1 900 000 ₽
1-комн. квартира
Оренбургская обл, г Новотроицк, ул Советская, д 150

1 099 000 ₽
Дом
Россия, Оренбургская обл, Родничный Дол, ул. Набережная,1

3 000 000 ₽
2-комн. квартира
Россия, Оренбургская обл, Орск, ул. Братская,56 А
1 800 000 ₽
Дом
Оренбургская обл, Гайский р-н, село Камейкино, ул Целинная, д 21/2

5 200 000 ₽
Дом
Оренбургская обл, г Новотроицк, ул Луговая

2 280 000 ₽
2-комн. квартира
Оренбургская обл, г Новотроицк, ул Винокурова, д 10

2 300 000 ₽
4-комн. квартира
Оренбургская обл, г Новотроицк, ул Зеленая, д 61

6 499 000 ₽
Дом
Россия, Оренбургская обл, Оренбург, г.Оренбург,СНТ Фонтан,Виноградная 443

4 700 000 ₽
1-комн. квартира
Россия, Оренбургская обл, Оренбург, пр-кт. Победы,149/3

1 100 000 ₽
Дом
Россия, Оренбургская обл, Беловка, ул. Центральная,26

750 000 ₽
Дом
Россия, Оренбургская обл, Сырт, ул. Железнодорожная
1 800 000 ₽
1-комн. квартира
Оренбургская обл, г Новотроицк, ул Советская, д 142

3 200 000 ₽
2-комн. квартира
Оренбургская обл, г Новотроицк, ул Советская, д 126

6 500 000 ₽
Дом
Россия, Краснодарский край, Сочи, ул. Бакинская,14/1

4 650 000 ₽
1-комн. квартира
Россия, Оренбургская обл, Оренбург, ул. Пролетарская,288/3