АН АДРЕСА
Hohlova-adresa@yandex.ru
Скажите продавцу, что вы нашли объявление на 156.ru
1
/
3
8 700 000 ₽
11
Подгородняя Покровка
АН АДРЕСА
Семейная ипотека 6%
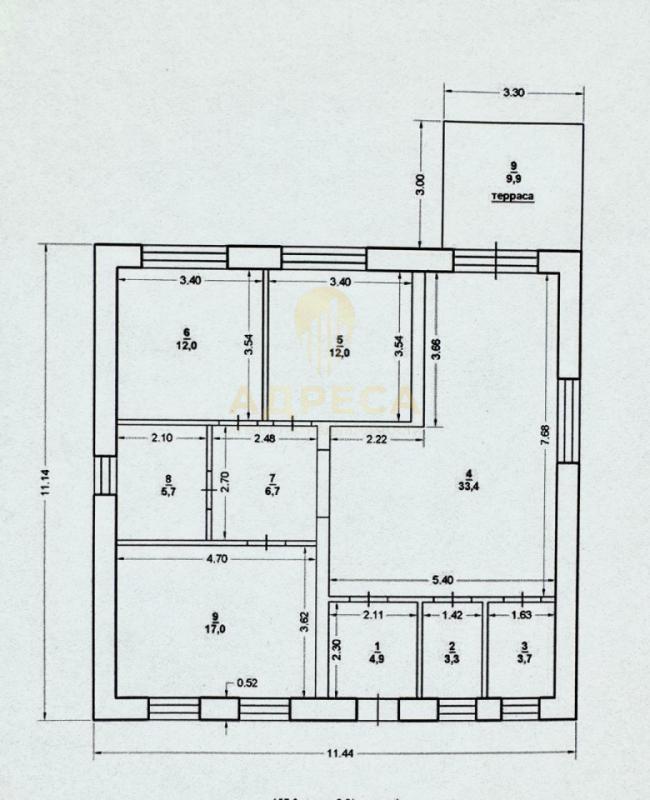
Ипотека под строительство Жилой дом 129 кв.м. Подгородняя Покровка Планировка продумана до мелочей.
-Кухня гостиная 33,4 кв.м. с выходом на террасу; -Два санузла, отдельная котельная; - Три изолированные комнаты 12 кв.м, 12 кв. м., 17 кв. м; О доме: - фундамент свайно-ростверковый; -крыша: металлочерепица; -материал стен: керамзитоблок; -терасса залита;- входная дверь с терморазрывом.Инфраструктура: - в шаговой доступности школа и детский сад; -магазины;-автошкола;-Оренбургский аграрный колледж; -Асфальтированные дороги; -Удобный выезд из поселка.Альтернативные направления: Ленина, Заречье, Соловьи, Марьино, Нежинка, Ростоши, Пригородный, Ивановка, Приуралье
ID объекта в нашей базе: 1579
Тип недвижимости
Адрес
Этажность
Площадь
Дом
Россия, Оренбургская обл, Подгородняя Покровка, ул. Российская,44
1
129
ID объявления
Обновлено
Создано
Действительно до
814615
2026-01-20 05:46:56
2026-01-20 05:46:56
2026-04-20 05:46:56

6 000 000 ₽
Дом
Россия, Оренбургская обл, Красный Коммунар, ул. Березка,3

800 000 ₽
Сад

2 150 000 ₽
2-комн. квартира
Оренбургская обл, г Новотроицк, ул Советская, д 25

12 360 000 ₽
Дом
Оренбургская обл, г Новотроицк, село Хабарное, ул Садовая, влд 34

1 550 000 ₽
2-комн. квартира
Оренбургская обл, г Новотроицк, ул Библиотечная, д 6А

600 000 ₽
Земельный участок
Россия, Оренбургская обл, Ора, проезд. Сиреневый,1

1 800 000 ₽
2-комн. квартира
Оренбургская обл, г Новотроицк, ул Гагарина, д 13

4 200 000 ₽
3-комн. квартира
Оренбургская обл, г Новотроицк, Комсомольский пр-кт, д 48
4 900 000 ₽
3-комн. квартира
Оренбургская обл, г Новотроицк, ул Лысова, д 10

9 300 000 ₽
Дом
Россия, Оренбургская обл, Подгородняя Покровка, Российская Федерация, Оренбургская область, муниципальный район Оренбургский, сельское поселение Подгородне-Покровский сельсовет, село Подгородняя Покровка, улица Базовая, дом 6

4 610 000 ₽
1-комн. квартира
Россия, Оренбургская обл, Оренбург, пер. Слесарный,7

5 000 000 ₽
Дом
Россия, Оренбургская обл, Оренбург, ул. Ярославская

1 150 000 ₽
1-комн. квартира
Россия, Оренбургская обл, Орск, ул. Юлина,10

2 700 000 ₽
1-комн. квартира

8 100 000 ₽
Дом
Россия, Оренбургская обл, Оренбург, Ростоши-2, ул. 4 Линия

1 100 000 ₽
1-комн. квартира
Оренбургская обл, г Новотроицк, ул Комарова, д 4

1 100 000 ₽
1-комн. квартира
Оренбургская обл, г Новотроицк, ул Советская, д 57

3 100 000 ₽
Комната
Оренбургская обл, г Новотроицк, ул Ломоносова, д 44

4 610 000 ₽
1-комн. квартира
Россия, Оренбургская обл, Оренбург, пер. Слесарный,7

2 350 000 ₽
3-комн. квартира
Оренбургская обл, г Новотроицк, ул Советская, д 142

4 600 000 ₽
3-комн. квартира
Оренбургская обл, г Орск, ул Андреева, д 7

5 200 000 ₽
Дом
Оренбургская обл, г Новотроицк, ул Луговая

1 600 000 ₽
3-комн. квартира
Россия, Оренбургская обл, Орск, ул. Новая Биофабрика,84

2 200 000 ₽
2-комн. квартира
Оренбургская обл, г Новотроицк, ул Советская, д 65Б