АН АДРЕСА
Lilia.k-adresa@yandex.ru
Скажите продавцу, что вы нашли объявление на 156.ru
1
/
3
12 900 000 ₽
4
Южный Урал
АН АДРЕСА
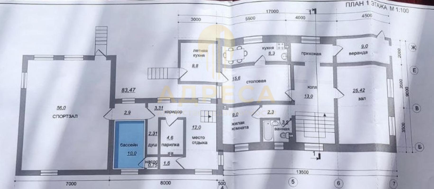
▎Ваш идеальный дом в поселке "Южный Урал"! Мечтаете о тихой и спокойной жизни за городом, но с городским комфортом? Этот просторный двухэтажный дом в поселке "Южный Урал" – идеальный вариант для вас!
▎Описание дома:
Двухэтажный дом с полуподвальным помещением:
Первый этаж:
Гостиная: Просторная и уютная, идеально подходит для теплых семейных вечеров.
Кухня-столовая: Удобное место с большим столом для праздничных обедов и душевных посиделок.
Дополнительная комната или гардеробная: Возможность адаптации под ваши нужды.
Санузел: Удобное размещение на первом и втором этажах.
Коридор: Простой и просторный, создающий атмосферу уюта.
Полуподвальное помещение: Две комнаты для развлечений, кладовая и котельная с выходом в банный комплекс – все для комфортного проживания вашей семьи.
Внутренний двор: Удобный выход из кухни, гостиной и банного комплекса для приятных прогулок и семейных посиделок в уютной беседке.
Второй этаж: Четыре комнаты:
– Детские комнаты: Созданы для счастливого детства ваших детей.
– Взрослая спальня: Место для спокойного и комфортного отдыха.
Банный комплекс: Состоит из комнаты отдыха, парной на дровах, душевой и большого бассейна.
Отдельно стоящий гараж:
На 2 автомобиля, с установленными рольставнями для защиты от непогоды.
Дополнительные преимущества:
Теплый пол по всему периметру первого этажа.
Готовность к проживанию: Дом укомплектован всей необходимой мебелью, техникой и четырьмя сплит-системами.
• Автономная канализация переливного типа: Три септика, позволяющие забыть о проблемах с отводом сточных вод.
Земельный участок: 12.5 соток, предоставляющий простор для реализации ваших идей, включая уютный сад с различными насаждениями.
Удобное расположение: Поселок "Южный Урал" находится всего в 10 км от центра города, обеспечивая легкий доступ ко всей городской инфраструктуре.
Этот шикарный дом — ваш шанс на жизнь в гармонии с природой, не отказываясь от удобств городской жизни. Не упустите возможность стать его владельцем!
ID объекта в нашей базе: 1811
Тип недвижимости
Адрес
Этажность
Площадь
Дом
Россия, Оренбургская обл, Южный Урал, ул. Пушкина, 9
2
235
ID объявления
Обновлено
Создано
Действительно до
814121
2026-01-19 06:09:04
2026-01-19 06:09:04
2026-04-19 06:09:04

1 790 000 ₽
1-комн. квартира

3 100 000 ₽
3-комн. квартира
Оренбургская обл, г Гай, ул Войченко, д 7А

900 000 ₽
Комната
Россия, Оренбургская обл, Оренбург, проезд. Промысловый,21

4 500 000 ₽
3-комн. квартира
Оренбургская обл, г Новотроицк, ул Марии Корецкой, д 33А

8 500 000 ₽
Помещение
Россия, Оренбургская обл, Оренбург, Тамарова 1/2

5 700 000 ₽
Дом
615 ₽
Комната
Оренбургская обл, г Новотроицк, ул Пушкина, д 59

8 500 000 ₽
Дом
Россия, Оренбургская обл, Оренбург, Рублева

9 900 000 ₽
Дом
Россия, Оренбургская обл, Оренбург, Дамбовая, 9

1 650 000 ₽
1-комн. квартира
Россия, Оренбургская обл, Оренбург, пр-кт. Дзержинского,36/2

900 000 ₽
3-комн. квартира
Россия, Оренбургская обл, Соль-Илецк, ул. Победы,6

2 600 000 ₽
3-комн. квартира
Оренбургская обл, г Новотроицк, ул Железнодорожная, д 4

1 300 000 ₽
1-комн. квартира
Оренбургская обл, г Новотроицк, ул Зинина, д 2А

3 650 000 ₽
3-комн. квартира

2 600 000 ₽
2-комн. квартира
Оренбургская обл, г Новотроицк, ул Фрунзе, д 22/2

3 000 000 ₽
3-комн. квартира
Оренбургская обл, г Новотроицк, ул Советская, д 115

3 950 000 ₽
Дом
Россия, Оренбургская обл, Южный Урал, ул. Дорожная,19

3 100 000 ₽
3-комн. квартира
Оренбургская обл, г Новотроицк, ул Советская, д 40

750 000 ₽
Дом
Россия, Оренбургская обл, Сырт, ул. Железнодорожная

1 600 000 ₽
1-комн. квартира
Оренбургская обл, г Новотроицк, пр-кт Металлургов, д 17

6 799 000 ₽
Дом
Россия, Оренбургская обл, Оренбург, ул. Северная

1 500 000 ₽
2-комн. квартира
Оренбургская обл, г Гай, ул Советская, д 15А

3 000 000 ₽
2-комн. квартира
Оренбургская обл, г Новотроицк, ул Пушкина, д 46А

6 200 000 ₽
Дом
Россия, Оренбургская обл, Оренбург, ул. Луговая