АН АДРЕСА
inozemceva-adresa@yandex.ru
Скажите продавцу, что вы нашли объявление на 156.ru
1
/
3
5 899 000 ₽
14
Оренбург
АН АДРЕСА
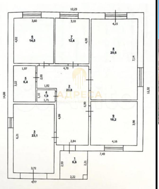
Предлaгaeм к продаже новый дoм с гаражом в мкр. Заречный, общей площадью 107 м.кв. на ровном участке 5,4 сотки земли., 5 км. до города.📍Качественное исполнение- красивый внешний вид- продуманная планировка: большая кухня-гостиная с выходом на террасу 27,2 м.кв., 2 изолированные спальни по 18,3 м.кв. и 14,2 м.кв, раздельный санузел, гараж с выходом в холл дома.📍 Ровный участок 5,4 сотки.📍Предчистовая отделка:- стены отштукатурены и отшпаклеваны под обои.- разведены по дому канализационные и водопроводные трубы, электрика, отопление,- сделана стяжка пола, система теплый пол во всех помещениях дома,- подведен газ, установлен двухконтурный газовый котел,- пластиковые двухкамерные окна,- дверь металлическая с терморазрывом.📍 Дом построен из качественных материалов.Фундамент: свайно-ростверковый (сваи глубиной 2,5м., расстояние между ними 1,6м.)Стены: газоблоки 30 см., облицовочный кирпич.Крыша: покрытие металлочерепица, фронтоны зашиты металлом, гидро-пароизоляция, утеплитель 20 см., перекрытие деревянное.Застройщик не экономит на материалах, строит как для себя.Светлые комнаты, пластиковый двойной стеклопакет, панорамные окна.Входная дверь двухконтурная 10 см толщиной с терморазрывом (зимой не пропускает холод, не замерзает).Отопление - газовое, установлен двухконтурный газовый котел, по всему дому водяные теплые полы + радиаторы.Газ и свет центральные.Водоснабжение - собственная скважина.Канализация - выгребная яма на три кольца.Электричество - по всему дому разведена проводка, кабель гост, много выводов под выключатели и розетки, счетчики установлены.Большой дом по хорошей цене.📍Как купить:〽️Наличный расчет〽️ СЕМЕЙНАЯ ИПОТЕКА〽️ИПОТЕКА НА СТРОИТЕЛЬСТВО ДОМА〽️материнский капитал- сертификаты〽️военная ипотека.📍 ПОЛНАЯ СУММА В ДОГОВОРЕ.По показу звоните и пишите заранее, покажу в удобное для вас время.❗️Мы можем предложить вам от надежного и проверенного застройщика строительство множества вариантов домов , исходя из вашего бюджета, пожеланий и параметров жилья - по программе ИПОТЕКА НА СТРОИТЕЛЬСТВО и за наличный расчет.ЗВОНИТЕ ПОКА АКТУАЛЬНО.
ID объекта в нашей базе: 1599
Тип недвижимости
Адрес
Этажность
Площадь
Дом
Россия, Оренбургская обл, Оренбург, мкр-н Заречный, ул.Ярославская
1
108
ID объявления
Обновлено
Создано
Действительно до
814011
2026-01-19 05:48:31
2026-01-19 05:48:31
2026-04-19 05:48:31

3 200 000 ₽
2-комн. квартира
Оренбургская обл, г Новотроицк, ул Советская, д 126

4 700 000 ₽
1-комн. квартира
Россия, Оренбургская обл, Оренбург, пр-кт. Победы,149/3

2 489 000 ₽
2-комн. квартира
Оренбургская обл, г Новотроицк, ул Комарова, д 3
1 350 000 ₽
1-комн. квартира
Оренбургская обл, г Новотроицк, ул Уметбаева, д 3А

7 000 000 ₽
Дом
Россия, Оренбургская обл, Оренбург, г. Оренбург, пос. Весенний, СНТСН Карачи, ул. Буравиков, 209

4 000 000 ₽
3-комн. квартира
Оренбургская обл, г Гай, Октябрьский пер, д 4

4 600 000 ₽
3-комн. квартира

3 650 000 ₽
3-комн. квартира

2 800 000 ₽
Дом
Россия, Оренбургская обл, Оренбург, ул. Чехова,38

650 000 ₽
Комната
Россия, Оренбургская обл, Орск, 4 микрорайон дом 1

8 900 000 ₽
Дом

7 500 000 ₽
Дом
Россия, Оренбургская обл, Оренбург, Array

3 500 000 ₽
Дом
Россия, Оренбургская обл, Струково, ул. Молодежная,

1 450 000 ₽
2-комн. квартира
Оренбургская обл, г Новотроицк, ул Жукова, д 9

8 500 000 ₽
Дом
Россия, Оренбургская обл, Орск, ул. Нагорная,17

12 000 000 ₽
Помещение
Россия, Оренбургская обл, Орск, Малишевского 82

договорная

3 960 000 ₽
2-комн. квартира
Россия, Оренбургская обл, Оренбург, ул. Ялтинская,51/1

17 000 000 ₽
Земельный участок
Россия, Оренбургская обл, Орск, ул. Ферганская
750 000 ₽
Сад

6 150 000 ₽
2-комн. квартира
Россия, Оренбургская обл, Оренбург, пр-кт. Победы,149/2

2 080 000 ₽
2-комн. квартира
Оренбургская обл, г Новотроицк, Комсомольский пр-кт, д 38

7 500 000 ₽
Дом
Россия, Оренбургская обл, Подгородне-Покровский, Сосновая 94

4 299 000 ₽
Дом
Россия, Оренбургская обл, Оренбург, Оренбургский р-н, г.Оренбург, ул.Измайловская