АН АДРЕСА
Hohlova-adresa@yandex.ru
Скажите продавцу, что вы нашли объявление на 156.ru
1
/
3
8 700 000 ₽
4
Подгородняя Покровка
АН АДРЕСА
Семейная ипотека 6%
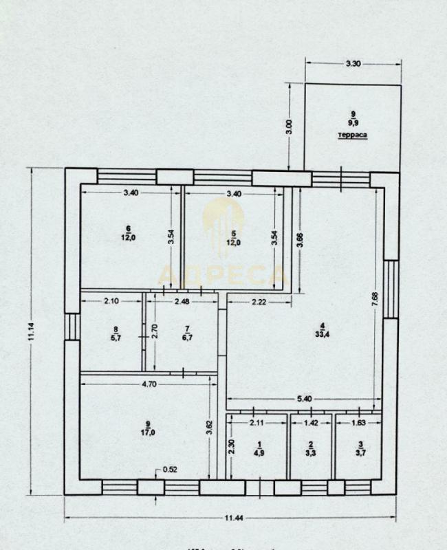
Ипотека под строительство Жилой дом 129 кв.м. Подгородняя Покровка Планировка продумана до мелочей.
-Кухня гостиная 33,4 кв.м. с выходом на террасу; -Два санузла, отдельная котельная; - Три изолированные комнаты 12 кв.м, 12 кв. м., 17 кв. м; О доме: - фундамент свайно-ростверковый; -крыша: металлочерепица; -материал стен: керамзитоблок; -терасса залита;- входная дверь с терморазрывом.Инфраструктура: - в шаговой доступности школа и детский сад; -магазины;-автошкола;-Оренбургский аграрный колледж; -Асфальтированные дороги; -Удобный выезд из поселка.Альтернативные направления: Ленина, Заречье, Соловьи, Марьино, Нежинка, Ростоши, Пригородный, Ивановка, Приуралье
ID объекта в нашей базе: 1579
Тип недвижимости
Адрес
Этажность
Площадь
Дом
Россия, Оренбургская обл, Подгородняя Покровка, ул. Российская,44
1
129
ID объявления
Обновлено
Создано
Действительно до
814002
2026-01-19 05:47:17
2026-01-19 05:47:17
2026-04-19 05:47:17

3 950 000 ₽
3-комн. квартира
2 500 000 ₽
3-комн. квартира
Оренбургская обл, г Новотроицк, ул Винокурова, д 12

10 000 000 ₽
Дом
Оренбургская обл, г Новотроицк, поселок Аккермановка, ул Березовая

6 500 000 ₽
Россия, Оренбургская обл, Оренбург, Российская Федерация, Оренбургская область, муниципальный район Оренбургский, сельское поселение Подгородне-Покровский сельсовет, село Подгородняя Покровка, улица Переволоцкая, земельный участок 21/4

8 000 000 ₽
Земельный участок
Россия, Оренбургская обл, Оренбург, оренбургская обл., р-н Оренбургский, с/с Весенний, с/т "Солнечный", Линия 9, Участок №6

1 700 000 ₽
2-комн. квартира
Оренбургская обл, г Новотроицк, ул Зеленая, д 55а

1 280 000 ₽
1-комн. квартира
Оренбургская обл, г Новотроицк, ул Зеленая

1 ₽
Помещение

3 600 000 ₽
3-комн. квартира
Оренбургская обл, г Новотроицк, ул Мира, д 4
4 500 000 ₽
Помещение

3 500 000 ₽
3-комн. квартира
Россия, Оренбургская обл, Орск, ул. Добровольского,33
11 500 000 ₽
Помещение
Оренбургская обл, г Ясный, ул Ленина, д 6Б

6 500 000 ₽
Дом

6 950 000 ₽
2-комн. квартира
Россия, Оренбургская обл, Оренбург, ул. Березка,19/2

1 700 000 ₽
Дом
Россия, Оренбургская обл, Новопокровка, ул. Зеленая,8

3 300 000 ₽
3-комн. квартира
Россия, Оренбургская обл, Орск, ул. Краматорская,16

7 500 000 ₽
Дом
Россия, Оренбургская обл, Оренбург, Оренбургская обл., г.Оренбург, мкр. поселок Кушкуль, ул.Цветочная , дом 11А

6 900 000 ₽
Дом
Россия, Оренбургская обл, Соловьевка, ул. Степная,19

7 000 000 ₽
Дом
Россия, Оренбургская обл, Соловьевка, ул. Степная

3 250 000 ₽
2-комн. квартира
Россия, Оренбургская обл, Орск, ул. Стасова,8

6 500 000 ₽
Дом
Россия, Оренбургская обл, Оренбург, Array

4 500 000 ₽
3-комн. квартира
Россия, Оренбургская обл, Орск, пр-кт. Ленина,131

2 080 000 ₽
2-комн. квартира
Оренбургская обл, г Новотроицк, ул Зеленая, д 55А

1 700 000 ₽
2-комн. квартира
Оренбургская обл, г Новотроицк, ул Мичурина, д 8