АН АДРЕСА
Hohlova-adresa@yandex.ru
Скажите продавцу, что вы нашли объявление на 156.ru
1
/
3
8 700 000 ₽
13
Подгородняя Покровка
АН АДРЕСА
Семейная ипотека 6%
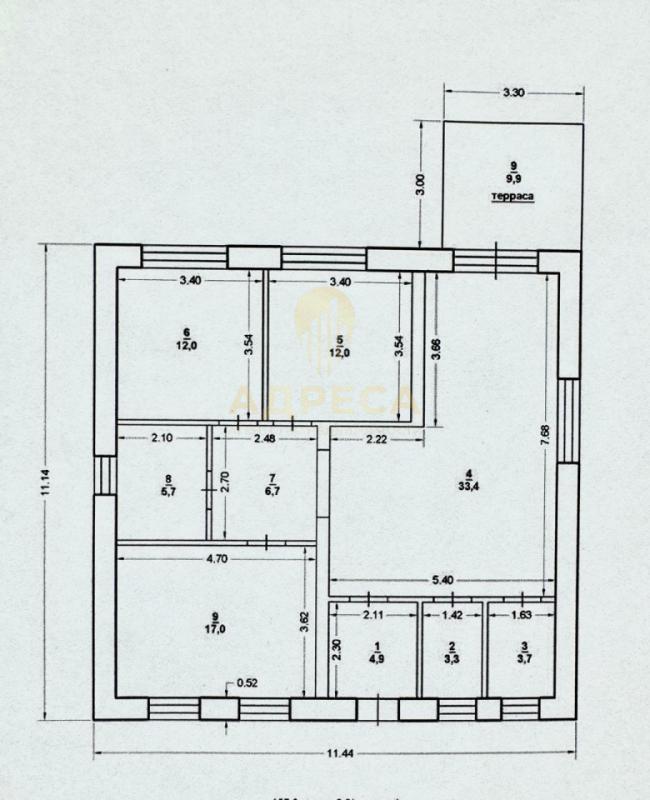
Ипотека под строительство Жилой дом 129 кв.м. Подгородняя Покровка Планировка продумана до мелочей.
-Кухня гостиная 33,4 кв.м. с выходом на террасу; -Два санузла, отдельная котельная; - Три изолированные комнаты 12 кв.м, 12 кв. м., 17 кв. м; О доме: - фундамент свайно-ростверковый; -крыша: металлочерепица; -материал стен: керамзитоблок; -терасса залита;- входная дверь с терморазрывом.Инфраструктура: - в шаговой доступности школа и детский сад; -магазины;-автошкола;-Оренбургский аграрный колледж; -Асфальтированные дороги; -Удобный выезд из поселка.Альтернативные направления: Ленина, Заречье, Соловьи, Марьино, Нежинка, Ростоши, Пригородный, Ивановка, Приуралье
ID объекта в нашей базе: 1579
Тип недвижимости
Адрес
Этажность
Площадь
Дом
Россия, Оренбургская обл, Подгородняя Покровка, ул. Российская,44
1
129
ID объявления
Обновлено
Создано
Действительно до
813321
2026-01-18 05:46:55
2026-01-18 05:46:55
2026-04-18 05:46:55

300 000 ₽
Земельный участок
Оренбургская обл, г Гай, ул Руденко, д 53

10 499 000 ₽
Дом
Россия, Оренбургская обл, Оренбург, Оренбургский р-н, с.Подгородняя Покровка, пер.Лунный

9 600 000 ₽
Дом
Россия, Оренбургская обл, Южный Урал, ул. Большая Кольцевая,20А

3 500 000 ₽
3-комн. квартира
Россия, Оренбургская обл, Орск, пер. Российский,3

1 560 000 ₽
1-комн. квартира
Оренбургская обл, г Новотроицк, ул Орская, д 15

7 500 000 ₽
Дом
Россия, Оренбургская обл, Ивановка, Ивановский сельсовет,п.Приуралье,ул.Ломоносова д.8

2 150 000 ₽
3-комн. квартира
Оренбургская обл, г Новотроицк, ул Зеленая, д 55

1 800 000 ₽
2-комн. квартира
Оренбургская обл, г Новотроицк, ул Зеленая, д 20

6 499 000 ₽
Дом
Россия, Оренбургская обл, Оренбург, СНТ Авиатор-3, ул.Пограничная

750 000 ₽
Дом
Россия, Оренбургская обл, Сырт, ул. Железнодорожная

1 099 000 ₽
Дом
Россия, Оренбургская обл, Украинка, ул. Пролетарская,43

4 580 000 ₽
1-комн. квартира
Россия, Оренбургская обл, Оренбург, пер.Слесарный 7

2 600 000 ₽
3-комн. квартира
Оренбургская обл, г Новотроицк, Студенческий пер, д 8

5 300 000 ₽
Дом
Россия, Оренбургская обл, Ивановка, Мирная улица, 1047, ТСН Ивановское

3 100 000 ₽
Комната
Оренбургская обл, г Новотроицк, ул Ломоносова, д 44

договорная
договорная
1-комн. квартира
Оренбургская обл, г Новотроицк, ул Зеленая, д 53

650 000 ₽
Комната
Россия, Оренбургская обл, Орск, 4 микрорайон дом 1

2 150 000 ₽
3-комн. квартира
Оренбургская обл, г Новотроицк, ул Советская, д 76А

7 500 000 ₽
Дом
Россия, Оренбургская обл, Оренбург, Array

1 450 000 ₽
2-комн. квартира
Оренбургская обл, г Новотроицк, ул Жукова, д 9

2 800 000 ₽
2-комн. квартира
Оренбургская обл, г Новотроицк, ул Библиотечная, д 7

5 200 000 ₽
Дом
Россия, Оренбургская обл, Оренбург, г.Оренбург, СНТ Авиатор-2, ул. 1-я Линия, уч.430

4 399 000 ₽
Россия, Оренбургская обл, Оренбург, г.Оренбург, мк-р Солнечный, ул.Ивановская, 3А