АН АДРЕСА
Lilia.k-adresa@yandex.ru
Скажите продавцу, что вы нашли объявление на 156.ru
1
/
3
3 850 000 ₽
21
Оренбург
АН АДРЕСА
ПРЕДЛАГАЕМ ВАШЕМУ ВНИМАНИЮ ПРОСТОРНУЮ И УЮТНУЮ ДВУХКОМНАТНУЮ КВАРТИРУ!
КВАРТИРА С НОВЫМ ОТЛИЧНЫМ РЕМОНТОМ, ЧТО ПОЗВОЛЯЕТ ЗАЕХАТЬ и ЖИТЬ!
О КВАРТИРЕ:
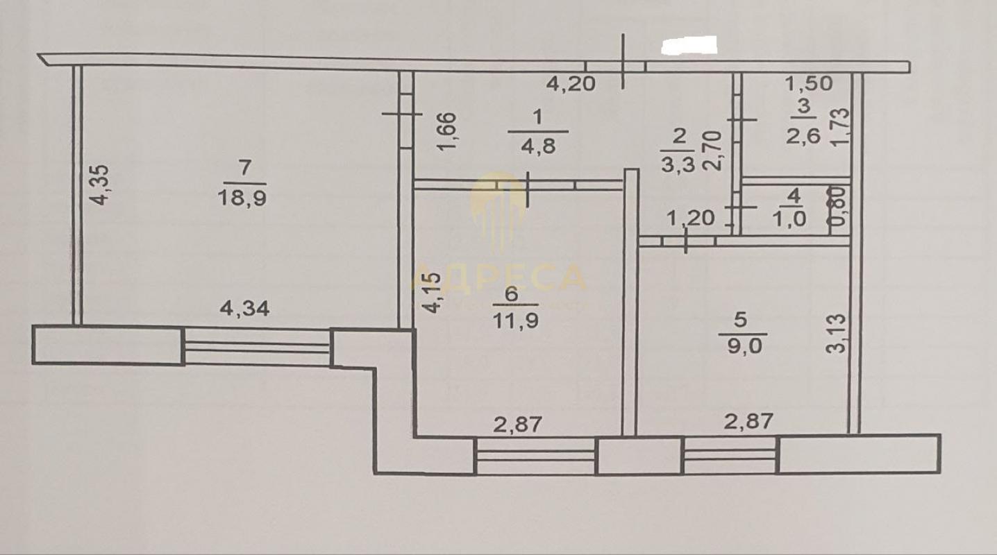
Общая площадь квартиры – 51.5 кв.м Очень хорошая планировка – квадратный просторный зал площадью 18.9 кв.м,, светлая спальня 11,9 кв.м., и уютная кухня 9 кв.м. В квартире выполнен качественный ремонт. Во всех комнатах пластиковые окна. С/У раздельный в кафеле. Качественные деревянные двери. Полы с подогревом! Из мебели остается вместительный угловой кухонный гарнитур. Сплит система. Коммуникации все центральные. Квартира очень теплая. Соседи очень хорошие и дружные.
ИНФРАСТРУКТУРА:
—д/с 106.
—СОШ №11
—Магазины Пятерочка, Магнит, Красное/белое, аптеки и др.;
Остановка общественного транспорта в шаговой доступности: маршруты: 78Н (62), 23.Рассмотрим все формы расчета: ипотека, сертификаты, наличный и безналичный расчет.
- Поможем купить в ипотеку! Узнавайте по телефону подробные условия.
Юридическое сопровождение сделки.
Если вам понравился этот вариант, но у вас ещё не продана своя недвижимость, предложите нам, возможно у нас прямо сейчас есть на неё покупатель.
ID объекта в нашей базе: 1394
Тип недвижимости
Адрес
Этажность
Этаж
Площадь
2-комн. квартира
Россия, Оренбургская обл, Оренбург, ул. Авиационная,20
5
1
51.5
ID объявления
Обновлено
Создано
Действительно до
813269
2026-01-18 05:32:44
2026-01-18 05:32:44
2026-04-18 05:32:44
6 400 000 ₽
Помещение

2 280 000 ₽
2-комн. квартира
Оренбургская обл, г Новотроицк, ул Винокурова, д 10

2 990 000 ₽
2-комн. квартира
Оренбургская обл, г Гай, ул Ленина, д 56

4 800 000 ₽
2-комн. квартира
Россия, Оренбургская обл, Оренбург, ул. Чкалова,3/2

1 900 000 ₽
2-комн. квартира
Оренбургская обл, г Новотроицк

1 400 000 ₽
1-комн. квартира

7 480 000 ₽
2-комн. квартира
Россия, Оренбургская обл, Оренбург, ул. Березка,21

8 680 000 ₽
Дом
Россия, Оренбургская обл, Оренбург, ул. Кишиневская, null

990 000 ₽
Дом
Россия, Оренбургская обл, Оренбург, Переволоцкий р-н, с.Родничный Дол, ул.Центральная

3 450 000 ₽
3-комн. квартира
1 280 000 ₽
1-комн. квартира
Оренбургская обл, г Новотроицк, ул Советская, д 74

договорная

3 250 000 ₽
4-комн. квартира
Россия, Оренбургская обл, Орск, пер. Сарматский,5А

1 800 000 ₽
2-комн. квартира
Оренбургская обл, г Новотроицк, ул Орская, д 8А

3 150 000 ₽
2-комн. квартира
Россия, Оренбургская обл, Орск, ул. Огородная,27А
2 350 000 ₽
2-комн. квартира
Оренбургская обл, г Новотроицк, ул Уральская, д 2А

7 699 000 ₽
2-комн. квартира
Россия, Оренбургская обл, Оренбург, ул. Салмышская,34к6

1 590 000 ₽
1-комн. квартира
советская 121

150 000 ₽
Земельный участок
Оренбургская одласть.Кувандыкский р-н.п.Сара

3 300 000 ₽
3-комн. квартира
Россия, Оренбургская обл, Орск, ул. Краматорская,16

580 000 ₽
Дача
Россия, Оренбургская обл, Орск, ул. Крайняя,42

2 100 000 ₽
2-комн. квартира
Оренбургская обл, г Новотроицк, ул Советская, д 125

4 610 000 ₽
1-комн. квартира
Россия, Оренбургская обл, Оренбург, пер. Слесарный,7

1 650 000 ₽
1-комн. квартира
Россия, Оренбургская обл, Оренбург, пр-кт. Дзержинского,36/2