АН АДРЕСА
inozemceva-adresa@yandex.ru
Скажите продавцу, что вы нашли объявление на 156.ru
1
/
3
4 399 000 ₽
25
Оренбург
АН АДРЕСА
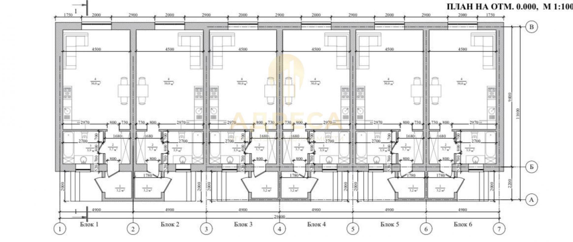
Пpедлaгаем НОBЫЙ ТАУНХАУС ОТ ЗАСТРОЙЩИКА 🏡 в п.Солнечный.С РЕМОНТОМ !!! 📍2 км., 5 минут до городa Дом 50 м.кв, 2,2 сотки земли.Современная планировка - большая просторная кухня-гостиная 31 м.кв., холл 5 м.кв., СУС 6 м.кв.📍В доме сделан качественный ремонт:Стены отштукатурены, отшпаклеваны, оклеены обоями.По всему тауну натяжной матовый потолок с точечными светильниками и выводом на центральную люстру.Пластиковые окна, двойной стеклопакет.По всему дому теплые водяные полы, установлены радиаторы, гребенка с возможностью регулировать температуру.В кухне-гостиной выложен ламинат, в санузле и холле кафель.В санузле установлена ванна, раковина, унитаз.Входная дверь двухконтурная, с терморазрывом. Фундамент: глубокий 2 метра свайно-заливной.Стены: газоблок, облицовочный керамический кирпич.Крыша: утеплитель 20 см, гидро-паро-изоляция, покрытие металлопрофиль. Фронты зашиты металло-профилем.Отмостка по всему периметру дома.Коммуникации: Электричество центральное, электропроводка разведена по всему дому, кабель ГОСТ, оплата по счетчикам.Вода центральная.Отопление автономное, установлен двухконтурный газовый котёл.Канализация центральная.Участок ровный, правильной формы. Широкие подъездные пути.Расположение и инфраструктура:📍 Остановка общественного транспорта в 3 мин. ходьбы. - маршрут №57н (22)📍 Детский сад №195, №200, №66, №125, Школа №3, Лицей №7, МОЛЛ Армада 2, Городская клиническая больница №1.Не упустите шанс стать счастливым обладателем этого таунхауса.Свяжитесь с нами сейчас, чтобы узнать больше и сделать свою мечту реальностью!Дом и земля в собственности. Документы проверены! Один собственник! Быстрый выход на сделку! Форму оплаты обсуждаю по телефону._________________________________________________________________________При покупке данного объекта для Вас бесплатные юридические услуги по сопровождению сделки. Предоставление консультации по вопросам, связанным с покупкой и продажей недвижимости, в том числе с использованием кредитных средств, всех видов сертификатов. Поможем собрать все необходимые документы для подготовки к сделки.Агентство недвижимости "АДРЕСА "Адрес: г.Оренбург, ул.Восточная 42/3
ID объекта в нашей базе: 1155
Адрес
Этажность
Площадь
Россия, Оренбургская обл, Оренбург, г.Оренбург, мк-р Солнечный, ул.Ивановская, 3А
1
50
ID объявления
Обновлено
Создано
Действительно до
813227
2026-01-18 05:23:58
2026-01-18 05:23:58
2026-04-18 05:23:58

3 600 000 ₽
3-комн. квартира
Оренбургская обл, г Новотроицк, ул Мира, д 4

2 150 000 ₽
3-комн. квартира
Оренбургская обл, г Новотроицк, ул Зеленая, д 55

8 680 000 ₽
Дом
Россия, Оренбургская обл, Оренбург, ул. Кишиневская, null

3 200 000 ₽
2-комн. квартира

5 999 000 ₽
Дом
Россия, Оренбургская обл, Оренбург, 40

2 600 000 ₽
3-комн. квартира
Оренбургская обл, г Новотроицк, Студенческий пер, д 8

2 750 000 ₽
1-комн. квартира

7 500 000 ₽
Дом
Россия, Оренбургская обл, Оренбург, Array

19 500 000 ₽
Дом
Россия, Оренбургская обл, Оренбург, ул. Бугурусланская,60

7 999 000 ₽
Дом
Россия, Оренбургская обл, Оренбург, Рублева 43

1 400 000 ₽
Гараж
Россия, Оренбургская обл, Орск, Крайняя 2А

8 999 000 ₽
Дом
Россия, Оренбургская обл, Оренбург, Рублева 46

3 300 000 ₽
2-комн. квартира
Оренбургская обл, г Новотроицк, пл Ленина, д 6

3 150 000 ₽
2-комн. квартира
Россия, Оренбургская обл, Орск, пр-кт. Ленина,22

1 900 000 ₽
2-комн. квартира
Оренбургская обл, г Гай, ул Войченко, д 1

3 400 000 ₽
1-комн. квартира

2 500 000 ₽
2-комн. квартира
Оренбургская обл, г Гай, ул Спортивная, д 5

7 500 000 ₽
Дом
Россия, Оренбургская обл, Оренбург, ул. Ломоносова

5 950 000 ₽
Дом
Россия, Оренбургская обл, Оренбург, 12
1 ₽
Дом

3 770 000 ₽
2-комн. квартира

6 900 000 ₽
Дом
Россия, Оренбургская обл, Соловьевка, ул. Степная,19

1 350 000 ₽
1-комн. квартира
Оренбургская обл, г Новотроицк, ул Губина, д 14А

1 450 000 ₽
2-комн. квартира
Оренбургская обл, г Новотроицк, ул Железнодорожная, д 57