АН АДРЕСА
Hohlova-adresa@yandex.ru
Скажите продавцу, что вы нашли объявление на 156.ru
1
/
3
8 700 000 ₽
11
Подгородняя Покровка
АН АДРЕСА
Семейная ипотека 6%
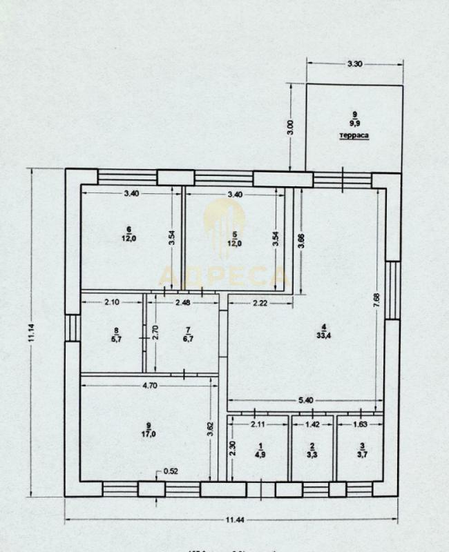
Ипотека под строительство Жилой дом 129 кв.м. Подгородняя Покровка Планировка продумана до мелочей.
-Кухня гостиная 33,4 кв.м. с выходом на террасу; -Два санузла, отдельная котельная; - Три изолированные комнаты 12 кв.м, 12 кв. м., 17 кв. м; О доме: - фундамент свайно-ростверковый; -крыша: металлочерепица; -материал стен: керамзитоблок; -терасса залита;- входная дверь с терморазрывом.Инфраструктура: - в шаговой доступности школа и детский сад; -магазины;-автошкола;-Оренбургский аграрный колледж; -Асфальтированные дороги; -Удобный выезд из поселка.Альтернативные направления: Ленина, Заречье, Соловьи, Марьино, Нежинка, Ростоши, Пригородный, Ивановка, Приуралье
ID объекта в нашей базе: 1579
Тип недвижимости
Адрес
Этажность
Площадь
Дом
Россия, Оренбургская обл, Подгородняя Покровка, ул. Российская,44
1
129
ID объявления
Обновлено
Создано
Действительно до
812702
2026-01-17 05:47:51
2026-01-17 05:47:51
2026-04-17 05:47:51

850 000 ₽
Земельный участок
Россия, Оренбургская обл, Оренбург, Оренбургская область, г. Оренбург, С/Т Калина Красная, 380

6 900 000 ₽
Дом
Оренбургская обл, г Новотроицк, село Хабарное, ул Молодежная
10 000 ₽
Гараж
Оренбургская область, г.Новотроицк, гаражный массив в районе ПУ-22

1 500 000 ₽
1-комн. квартира
Оренбургская обл, г Новотроицк, ул Черемных, д 7

6 330 000 ₽
3-комн. квартира
Россия, Оренбургская обл, Оренбург, пер. Неплюева,4
2 600 000 ₽
1-комн. квартира
г Оренбург, пр-кт Дзержинского, д 13, кв 1

7 200 000 ₽
2-комн. квартира
Россия, Оренбургская обл, Оренбург, пр-кт. Победы,149/1

3 400 000 ₽
Дом
Оренбургская обл, г Новотроицк, ул Грибоедова

договорная

1 680 000 ₽
2-комн. квартира
Оренбургская обл, г Новотроицк, ул Орская, д 8

1 550 000 ₽
Дом
Оренбургская обл, поселок Адамовка, ул 8 Марта

5 300 000 ₽
Россия, Оренбургская обл, Оренбург, Оренбургский р-н, с.Нежинка, ул.Заречная

2 600 000 ₽
3-комн. квартира

1 450 000 ₽
2-комн. квартира
Оренбургская обл, г Новотроицк, ул Гагарина, д 10

5 200 000 ₽
Дом
Оренбургская обл, г Новотроицк, ул Луговая

2 000 000 ₽
2-комн. квартира

350 000 ₽
Комната
Россия, Оренбургская обл, Орск, ул. Виноградная,3

4 000 000 ₽
Дом
Оренбургская обл, г Новотроицк, ул Мира, д 32

5 899 000 ₽
Дом
Россия, Оренбургская обл, Оренбург, мкр-н Заречный, ул.Ярославская

1 300 000 ₽
2-комн. квартира
Оренбургская обл, г Новотроицк, ул Зеленая

10 000 000 ₽
Дом
Россия, Оренбургская обл, Орск, Переулок Нагорный дом 4

6 900 000 ₽
3-комн. квартира
Россия, Оренбургская обл, Оренбург, ул. Рокоссовского,3

250 000 ₽
Гараж

2 700 000 ₽
3-комн. квартира
Оренбургская обл, г Новотроицк, ул Зеленая, д 69