АН АДРЕСА
Hohlova-adresa@yandex.ru
Скажите продавцу, что вы нашли объявление на 156.ru
1
/
3
8 700 000 ₽
8
Подгородняя Покровка
АН АДРЕСА
Семейная ипотека 6%
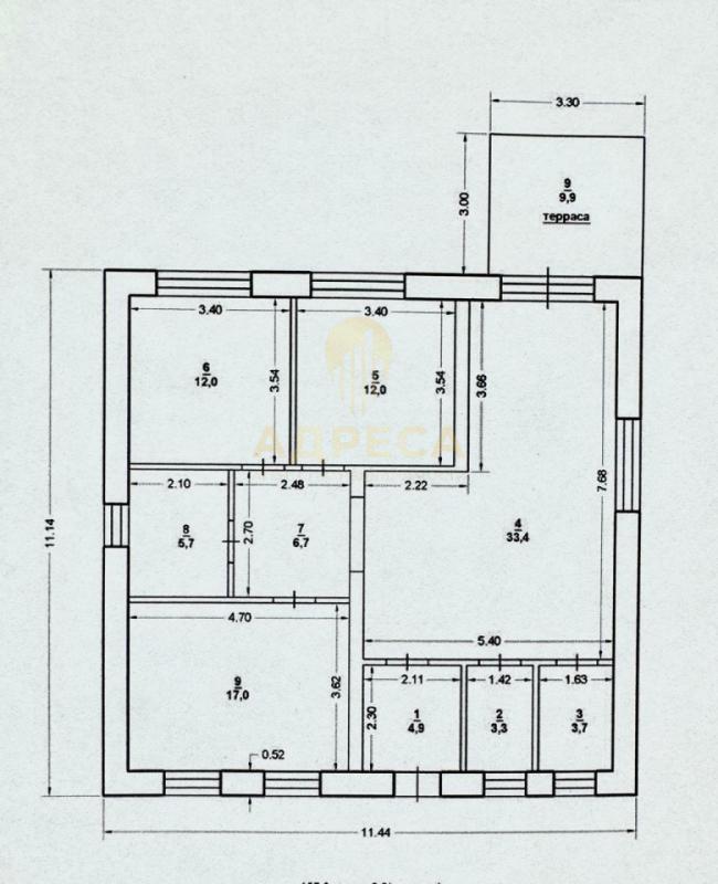
Ипотека под строительство Жилой дом 129 кв.м. Подгородняя Покровка Планировка продумана до мелочей.
-Кухня гостиная 33,4 кв.м. с выходом на террасу; -Два санузла, отдельная котельная; - Три изолированные комнаты 12 кв.м, 12 кв. м., 17 кв. м; О доме: - фундамент свайно-ростверковый; -крыша: металлочерепица; -материал стен: керамзитоблок; -терасса залита;- входная дверь с терморазрывом.Инфраструктура: - в шаговой доступности школа и детский сад; -магазины;-автошкола;-Оренбургский аграрный колледж; -Асфальтированные дороги; -Удобный выезд из поселка.Альтернативные направления: Ленина, Заречье, Соловьи, Марьино, Нежинка, Ростоши, Пригородный, Ивановка, Приуралье
ID объекта в нашей базе: 1579
Тип недвижимости
Адрес
Этажность
Площадь
Дом
Россия, Оренбургская обл, Подгородняя Покровка, ул. Российская,44
1
129
ID объявления
Обновлено
Создано
Действительно до
812067
2026-01-16 05:47:21
2026-01-16 05:47:21
2026-04-16 05:47:21
950 ₽
1-комн. квартира
Декабристов

7 500 000 ₽
4-комн. квартира
Россия, Оренбургская обл, Орск, ул. Ялтинская,91

2 600 000 ₽
2-комн. квартира
Оренбургская обл, г Новотроицк, ул Фрунзе, д 22/2

7 500 000 ₽
Дом
Россия, Оренбургская обл, Оренбург, Оренбургская обл., г.Оренбург, мкр. поселок Кушкуль, ул.Цветочная , дом 11А

14 000 000 ₽
Дом
Россия, Оренбургская обл, Подгородняя Покровка, ул. Переволоцкая,106

1 450 000 ₽
3-комн. квартира
Оренбургская обл, г Новотроицк, ул Пушкина, д 15

договорная

3 650 000 ₽
4-комн. квартира
Россия, Оренбургская обл, Орск, ул. Уральская,9

1 100 000 ₽
Дом
Россия, Оренбургская обл, Сакмара, ул. Фельдшерская,52

6 146 000 ₽
Дом
Россия, Оренбургская обл, Оренбург, Array

3 500 000 ₽
3-комн. квартира
Россия, Оренбургская обл, Орск, ул. Добровольского,33

2 390 000 ₽
1-комн. квартира
Россия, Оренбургская обл, Оренбург, ул. Конституции СССР,24/1 к 1

1 800 000 ₽
2-комн. квартира
Оренбургская обл, г Новотроицк, ул Гагарина, д 13

5 400 000 ₽
Дом
Россия, Оренбургская обл, Оренбург, СНТ Карачи, ул. Центральная линия, д. 43

3 200 000 ₽
Земельный участок
Россия, Оренбургская обл, Орск, Национальная 57

6 200 000 ₽
Дом
Россия, Оренбургская обл, Приуральский, Новоросийская

3 400 000 ₽
3-комн. квартира
Оренбургская обл, г Новотроицк, ул Зеленая, д 61

6 920 000 ₽
Дом
Россия, Оренбургская обл, Ивановка, ул. Татищева,52

8 500 000 ₽
Помещение
Россия, Оренбургская обл, Оренбург, Тамарова 1/2

1 650 000 ₽
2-комн. квартира
Оренбургская обл, г Новотроицк, ул Марии Корецкой, д 25

договорная

8 700 000 ₽
Дом
Россия, Оренбургская обл, Ивановка, ул. Новороссийская, 23

4 520 000 ₽
3-комн. квартира
Россия, Оренбургская обл, Оренбург, ул. Салмышская,3

7 500 000 ₽
Дом
Россия, Оренбургская обл, Ивановка, Оренбургский р-он, Ивановский сельсовет, ул. Ломоносова, д. 20