АН АДРЕСА
Hohlova-adresa@yandex.ru
Скажите продавцу, что вы нашли объявление на 156.ru
1
/
3
8 700 000 ₽
11
Подгородняя Покровка
АН АДРЕСА
Семейная ипотека 6%
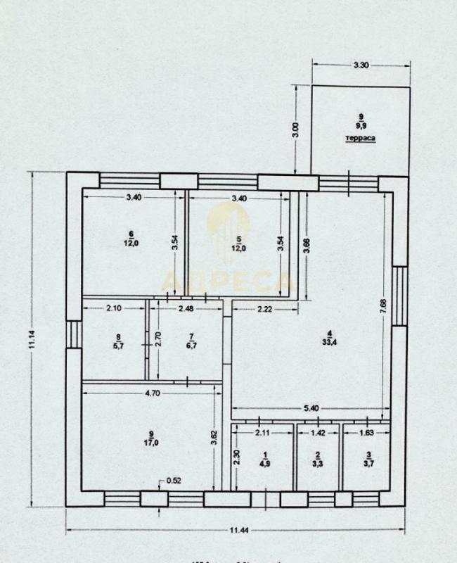
Ипотека под строительство Жилой дом 129 кв.м. Подгородняя Покровка Планировка продумана до мелочей.
-Кухня гостиная 33,4 кв.м. с выходом на террасу; -Два санузла, отдельная котельная; - Три изолированные комнаты 12 кв.м, 12 кв. м., 17 кв. м; О доме: - фундамент свайно-ростверковый; -крыша: металлочерепица; -материал стен: керамзитоблок; -терасса залита;- входная дверь с терморазрывом.Инфраструктура: - в шаговой доступности школа и детский сад; -магазины;-автошкола;-Оренбургский аграрный колледж; -Асфальтированные дороги; -Удобный выезд из поселка.Альтернативные направления: Ленина, Заречье, Соловьи, Марьино, Нежинка, Ростоши, Пригородный, Ивановка, Приуралье
ID объекта в нашей базе: 1579
Тип недвижимости
Адрес
Этажность
Площадь
Дом
Россия, Оренбургская обл, Подгородняя Покровка, ул. Российская,44
1
129
ID объявления
Обновлено
Создано
Действительно до
810841
2026-01-14 05:47:35
2026-01-14 05:47:35
2026-04-14 05:47:35

7 900 000 ₽
Дом
Россия, Оренбургская обл, Ивановка, ул. Дальнереченская, 47

2 950 000 ₽
2-комн. квартира
Россия, Оренбургская обл, Оренбург, ул. Братьев Башиловых,3

договорная
Дом
Оренбургская обл, г Гай

10 000 000 ₽
Дом
Оренбургская обл, г Гай, ул Садовая

1 550 000 ₽
1-комн. квартира

6 749 000 ₽
Дом
Россия, Оренбургская обл, Оренбург, г.Оренбург, СНТ "Авиатор-2", ул. 3-я линия

2 100 000 ₽
2-комн. квартира
Оренбургская обл, г Новотроицк, ул Советская, д 47А

4 610 000 ₽
1-комн. квартира
Россия, Оренбургская обл, Оренбург, пер. Слесарный

500 000 ₽
Сад

7 899 000 ₽
5-комн. квартира
Россия, Оренбургская обл, Оренбург, мкр. 70 лет ВЛКСМ,3

8 900 000 ₽
5-комн. квартира
Россия, Оренбургская обл, Оренбург, ул. Бугурусланская,60
1 600 000 ₽
2-комн. квартира
Оренбургская обл, г Новотроицк, Химиков пер, д 4
2 000 000 ₽
2-комн. квартира
Оренбургская обл, г Новотроицк, ул Советская, д 96

1 500 000 ₽
1-комн. квартира
Оренбургская обл, г Новотроицк, ул Гагарина, д 14

2 050 000 ₽
1-комн. квартира
Оренбургская обл, г Орск, ул Ю.Фучика, д 9

1 690 000 ₽
1-комн. квартира
Россия, Оренбургская обл, Орск, ул. Комарова,2

5 450 000 ₽
Дом
Россия, Оренбургская обл, Оренбург, с.Пруды ул.Центральная 25А
660 000 ₽
Комната
за цекровью

1 850 000 ₽
1-комн. квартира

3 200 000 ₽
2-комн. квартира
г Оренбург, пер Киселева, д 36

6 250 000 ₽
Помещение
Россия, Оренбургская обл, Адамовка, ул. Советская, 97

9 000 000 ₽
Дом

900 000 ₽
Дом
Россия, Оренбургская обл, Никольское, ул. Дорожная,4

8 000 000 ₽
Земельный участок
Россия, Оренбургская обл, Оренбург, оренбургская обл., р-н Оренбургский, с/с Весенний, с/т "Солнечный", Линия 9, Участок №6