АН АДРЕСА
Lilia.k-adresa@yandex.ru
Скажите продавцу, что вы нашли объявление на 156.ru
1
/
3
3 850 000 ₽
23
Оренбург
АН АДРЕСА
ПРЕДЛАГАЕМ ВАШЕМУ ВНИМАНИЮ ПРОСТОРНУЮ И УЮТНУЮ ДВУХКОМНАТНУЮ КВАРТИРУ!
КВАРТИРА С НОВЫМ ОТЛИЧНЫМ РЕМОНТОМ, ЧТО ПОЗВОЛЯЕТ ЗАЕХАТЬ и ЖИТЬ!
О КВАРТИРЕ:
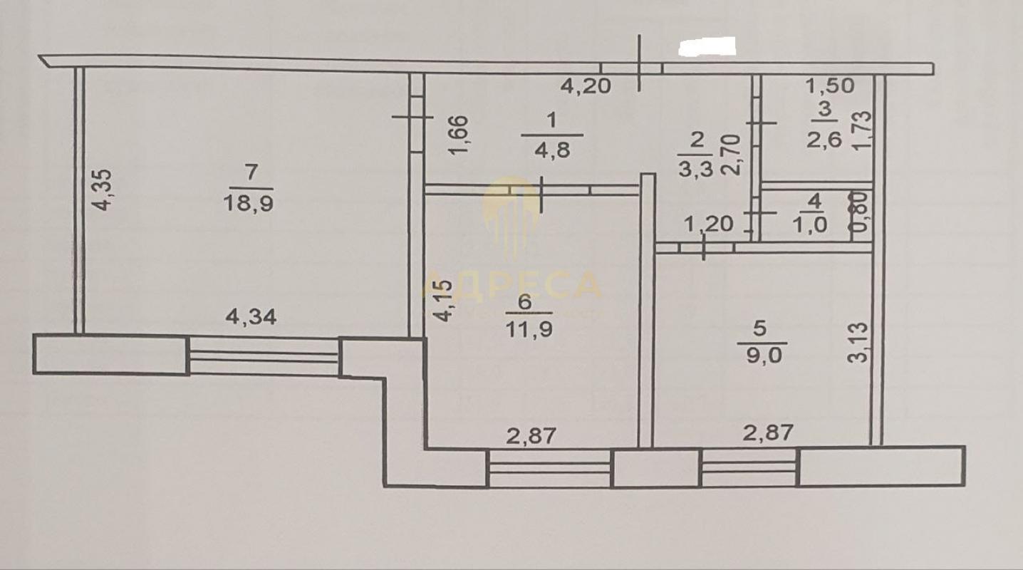
Общая площадь квартиры – 51.5 кв.м Очень хорошая планировка – квадратный просторный зал площадью 18.9 кв.м,, светлая спальня 11,9 кв.м., и уютная кухня 9 кв.м. В квартире выполнен качественный ремонт. Во всех комнатах пластиковые окна. С/У раздельный в кафеле. Качественные деревянные двери. Полы с подогревом! Из мебели остается вместительный угловой кухонный гарнитур. Сплит система. Коммуникации все центральные. Квартира очень теплая. Соседи очень хорошие и дружные.
ИНФРАСТРУКТУРА:
—д/с 106.
—СОШ №11
—Магазины Пятерочка, Магнит, Красное/белое, аптеки и др.;
Остановка общественного транспорта в шаговой доступности: маршруты: 78Н (62), 23.Рассмотрим все формы расчета: ипотека, сертификаты, наличный и безналичный расчет.
- Поможем купить в ипотеку! Узнавайте по телефону подробные условия.
Юридическое сопровождение сделки.
Если вам понравился этот вариант, но у вас ещё не продана своя недвижимость, предложите нам, возможно у нас прямо сейчас есть на неё покупатель.
ID объекта в нашей базе: 1394
Тип недвижимости
Адрес
Этажность
Этаж
Площадь
2-комн. квартира
Россия, Оренбургская обл, Оренбург, ул. Авиационная,20
5
1
51.5
ID объявления
Обновлено
Создано
Действительно до
810788
2026-01-14 05:32:33
2026-01-14 05:32:33
2026-04-14 05:32:33

8 500 000 ₽
Дом
Россия, Оренбургская обл, Орск, ул. Нагорная,17

13 500 000 ₽
Дом

4 000 000 ₽
3-комн. квартира
Оренбургская обл, г Новотроицк, Студенческий пер, д 6

2 150 000 ₽
3-комн. квартира
Оренбургская обл, г Новотроицк, ул Зеленая, д 55

2 150 000 ₽
2-комн. квартира
Оренбургская обл, г Новотроицк, ул Зеленая, д 14

4 399 000 ₽
Россия, Оренбургская обл, Оренбург, г.Оренбург, мк-р Солнечный, ул.Ивановская, 3А

1 900 000 ₽
2-комн. квартира
Оренбургская обл, г Новотроицк, ул Советская, д 124

2 800 000 ₽
2-комн. квартира

700 000 ₽
Земельный участок
Крым

6 999 965 ₽
Дом
Россия, Оренбургская обл, Благословенка, пер. Аптекарский, null

2 500 000 ₽
3-комн. квартира
Россия, Курганская обл, Курган, ул. Дзержинского,18а

1 700 000 ₽
2-комн. квартира
Оренбургская обл, г Новотроицк, ул Мичурина, д 8

1 500 000 ₽
2-комн. квартира
Оренбургская обл, г Новотроицк, ул Уральская, д 13

2 000 000 ₽
1-комн. квартира
Оренбургская обл, г Гай

13 400 000 ₽
Дом
Россия, Оренбургская обл, имени 9 Января, ул. Артиллерийская,29

370 000 ₽
Земельный участок
Россия, Оренбургская обл, Орск, п. Джанаталап

2 790 000 ₽
2-комн. квартира

4 355 000 ₽
1-комн. квартира
Россия, Оренбургская обл, Оренбург, ул. Рокоссовского,25

1 900 000 ₽
2-комн. квартира
Юных Ленинцев, 10

1 870 000 ₽
1-комн. квартира

5 500 000 ₽
2-комн. квартира
Оренбургская обл, г Новотроицк, пр-кт Металлургов, д 6

1 350 000 ₽
Дом
Россия, Оренбургская обл, Оренбург, 197

800 000 ₽
Дача
Россия, Оренбургская обл, Оренбург, СНТ Энергоноситель, улица Майская 46

2 700 000 ₽
Дом
Россия, Оренбургская обл, Ударник, Орская д 5