АН АДРЕСА
anufriev-adresa@yandex.ru
Скажите продавцу, что вы нашли объявление на 156.ru
1
/
3
15 000 000 ₽
22
Оренбург
АН АДРЕСА
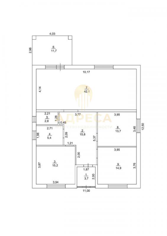
Продается дом в ЭЛИТНОЙ части поселка Кушкуль, по адресу: улица Земская 15.Площадь дома 272.2 м.кв.Площадь участка 10сот.Дом мансардного типа.По документам три этажа с учетом подвала.Газоснабжение центральное.Водоснабжение: скважина 14м, гидроаккумулятор, (есть возможность подключения к центральному)Водоотведение: локальное 4кольца по 1,5м (есть возможность подключения к центральному)Материалы постройки: Газобетон, базальтовая плита, короед.Фундамент: монолит, бетонные подушки залиты лентой, блоки.Электрика вся по госту, доступ ко всем коробкам.Также максимально доступ ко всем коммуникациям водоотвода.Отопление газ, двухконтурный котел.Имеется подвальное помещение, смотрите фото.Имеется Гараж, смотрите фото.Состояние ремонта на фото (все что видите остается) но лучше посмотреть в живую.Инфраструктура: Школа № 21,так-же имеются сетевые магазины.Возникли вопросы звоните, отвечу.Обременений нет.Просмотр по договоренности в удобное время.
✅ Предоставление консультаций по вопросам, связанным с покупкой недвижимости, в том числе с использованием кредитных средств, жилищных сертификатов, материнского (семейного) капитала.
✅ Помощь в формировании пакета документов (для каждого объекта индивидуально), необходимых для оформления сделки купли-продажи.
✅ Подбор индивидуальной программы кредитования, согласование в банках ипотечной заявки и объекта, на наиболее выгодных для заемщика условиях.
✅ ЭКСКЛЮЗИВНО: ипотека без справок и подтверждения дохода; одобрение ипотеки при отсутствии первоначального взноса (трейд-ин); доступна опция понижения ставки по ипотеке, применение скидки от нашего агентства; проведение сделки дистанционно.
✅ Наш офис ул. Восточная 42/3 АН АДРЕСА
ID объекта в нашей базе: 1112
Тип недвижимости
Адрес
Этажность
Площадь
Дом
Россия, Оренбургская обл, Оренбург, Земская 15
2
272.2
ID объявления
Обновлено
Создано
Действительно до
810729
2026-01-14 05:21:43
2026-01-14 05:21:43
2026-04-14 05:21:43

2 950 000 ₽
Помещение
Оренбургская обл, г Новотроицк, ул Советская, д 71

6 799 000 ₽
Дом
Россия, Оренбургская обл, Оренбург, ул. Северная

7 000 000 ₽
Россия, Оренбургская обл, Южный Урал, 1

2 350 000 ₽
2-комн. квартира
Оренбургская обл, г Новотроицк, ул Марии Корецкой, д 24

1 950 000 ₽
Дом

6 150 000 ₽
2-комн. квартира
Россия, Оренбургская обл, Оренбург, пр-кт. Победы,149/2

1 700 000 ₽
2-комн. квартира

4 610 000 ₽
1-комн. квартира
Россия, Оренбургская обл, Оренбург, пер. Слесарный,7

10 150 000 ₽
Дом
Россия, Оренбургская обл, Оренбург, п. Весенний, ул. Агатовая, д. 10

6 999 000 ₽
Дом
Россия, Оренбургская обл, Оренбург, переулок Аптекарьский

100 ₽
2-комн. квартира
Оренбургская обл, г Гай, ул Войченко, д 7

2 000 000 ₽
1-комн. квартира
Оренбургская обл, г Гай
1 200 000 ₽
3-комн. квартира
Россия, Оренбургская обл, Орск, ул. Пугачева,57

5 500 000 ₽
Помещение

5 850 000 ₽
3-комн. квартира
Россия, Оренбургская обл, Оренбург, ул. Дружбы,11/2

1 600 000 ₽
2-комн. квартира
Оренбургская обл, г Новотроицк, село Хабарное, ул Лямзина, д 14, кв 10

7 200 000 ₽
2-комн. квартира
Россия, Оренбургская обл, Оренбург, пр-кт. Победы,149/1

7 500 000 ₽
4-комн. квартира
Россия, Оренбургская обл, Орск, ул. Ялтинская,91

3 550 000 ₽
3-комн. квартира

2 750 000 ₽
2-комн. квартира
Оренбургская обл, г Новотроицк, ул Ситкина, д 13

7 490 000 ₽
Дом
Россия, Оренбургская обл, Оренбург, ул. Лесная,32

370 000 ₽
Комната
Россия, Оренбургская обл, Орск, Станиславского 71а

680 000 ₽
Сад

4 500 000 ₽
3-комн. квартира