АН АДРЕСА
Hohlova-adresa@yandex.ru
Скажите продавцу, что вы нашли объявление на 156.ru
1
/
3
8 700 000 ₽
11
Подгородняя Покровка
АН АДРЕСА
Семейная ипотека 6%
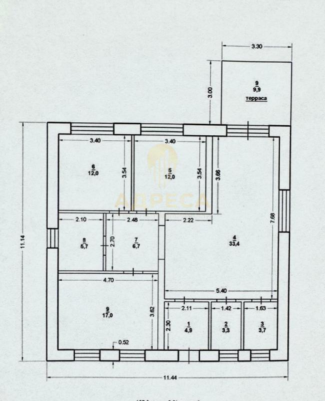
Ипотека под строительство Жилой дом 129 кв.м. Подгородняя Покровка Планировка продумана до мелочей.
-Кухня гостиная 33,4 кв.м. с выходом на террасу; -Два санузла, отдельная котельная; - Три изолированные комнаты 12 кв.м, 12 кв. м., 17 кв. м; О доме: - фундамент свайно-ростверковый; -крыша: металлочерепица; -материал стен: керамзитоблок; -терасса залита;- входная дверь с терморазрывом.Инфраструктура: - в шаговой доступности школа и детский сад; -магазины;-автошкола;-Оренбургский аграрный колледж; -Асфальтированные дороги; -Удобный выезд из поселка.Альтернативные направления: Ленина, Заречье, Соловьи, Марьино, Нежинка, Ростоши, Пригородный, Ивановка, Приуралье
ID объекта в нашей базе: 1579
Тип недвижимости
Адрес
Этажность
Площадь
Дом
Россия, Оренбургская обл, Подгородняя Покровка, ул. Российская,44
1
129
ID объявления
Обновлено
Создано
Действительно до
810187
2026-01-13 05:47:41
2026-01-13 05:47:41
2026-04-13 05:47:41

9 000 000 ₽
Дом

1 588 000 ₽
3-комн. квартира

2 550 000 ₽
1-комн. квартира
Россия, Оренбургская обл, Орск, пр-кт. Ленина,60

3 850 000 ₽
3-комн. квартира
2 800 000 ₽
2-комн. квартира
Оренбургская обл, г Гай, ул Войченко, д 20

6 900 000 ₽
3-комн. квартира
Россия, Оренбургская обл, Оренбург, ул. Рокоссовского,3

2 400 000 ₽
2-комн. квартира
Оренбургская обл, г Новотроицк, ул Свистунова, д 9А

8 800 000 ₽
2-комн. квартира

2 499 000 ₽
2-комн. квартира
Россия, Оренбургская обл, Оренбург, ул. 1 Мая,148

3 000 000 ₽
Дом

1 700 000 ₽
Дом
Россия, Оренбургская обл, Новопокровка, ул. Зеленая,8

2 150 000 ₽
2-комн. квартира
Оренбургская обл, г Новотроицк, ул Советская, д 25

1 200 000 ₽
1-комн. квартира
Оренбургская обл, г Новотроицк, ул Советская, д 57, кв 17
1 300 000 ₽
2-комн. квартира
Оренбургская обл, г Новотроицк

11 990 000 ₽
Дом
Россия, Оренбургская обл, Оренбург, с.Подгородняя Покровка, ул.Российская

1 930 000 ₽
2-комн. квартира

6 500 000 ₽
Дом
Россия, Оренбургская обл, Оренбург, Array
950 ₽
1-комн. квартира
Декабристов

2 080 000 ₽
2-комн. квартира
Оренбургская обл, г Новотроицк, Комсомольский пр-кт, д 38

4 200 000 ₽
3-комн. квартира
Оренбургская обл, г Новотроицк, ул Советская, д 121

2 690 000 ₽
3-комн. квартира

2 800 000 ₽
3-комн. квартира
Оренбургская обл, г Гай, ул Молодёжная, д 67
1 800 000 ₽
1-комн. квартира
Оренбургская обл, г Новотроицк, ул Советская, д 142

1 660 000 ₽
2-комн. квартира
Оренбургская обл, г Новотроицк, ул Марии Корецкой, д 21