АН АДРЕСА
Lilia.k-adresa@yandex.ru
Скажите продавцу, что вы нашли объявление на 156.ru
1
/
3
12 900 000 ₽
6
Южный Урал
АН АДРЕСА
▎Ваш идеальный дом в поселке "Южный Урал"! Мечтаете о тихой и спокойной жизни за городом, но с городским комфортом? Этот просторный двухэтажный дом в поселке "Южный Урал" – идеальный вариант для вас!
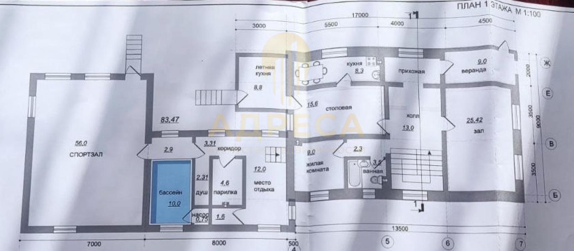
▎Описание дома:
Двухэтажный дом с полуподвальным помещением:
Первый этаж:
Гостиная: Просторная и уютная, идеально подходит для теплых семейных вечеров.
Кухня-столовая: Удобное место с большим столом для праздничных обедов и душевных посиделок.
Дополнительная комната или гардеробная: Возможность адаптации под ваши нужды.
Санузел: Удобное размещение на первом и втором этажах.
Коридор: Простой и просторный, создающий атмосферу уюта.
Полуподвальное помещение: Две комнаты для развлечений, кладовая и котельная с выходом в банный комплекс – все для комфортного проживания вашей семьи.
Внутренний двор: Удобный выход из кухни, гостиной и банного комплекса для приятных прогулок и семейных посиделок в уютной беседке.
Второй этаж: Четыре комнаты:
– Детские комнаты: Созданы для счастливого детства ваших детей.
– Взрослая спальня: Место для спокойного и комфортного отдыха.
Банный комплекс: Состоит из комнаты отдыха, парной на дровах, душевой и большого бассейна.
Отдельно стоящий гараж:
На 2 автомобиля, с установленными рольставнями для защиты от непогоды.
Дополнительные преимущества:
Теплый пол по всему периметру первого этажа.
Готовность к проживанию: Дом укомплектован всей необходимой мебелью, техникой и четырьмя сплит-системами.
• Автономная канализация переливного типа: Три септика, позволяющие забыть о проблемах с отводом сточных вод.
Земельный участок: 12.5 соток, предоставляющий простор для реализации ваших идей, включая уютный сад с различными насаждениями.
Удобное расположение: Поселок "Южный Урал" находится всего в 10 км от центра города, обеспечивая легкий доступ ко всей городской инфраструктуре.
Этот шикарный дом — ваш шанс на жизнь в гармонии с природой, не отказываясь от удобств городской жизни. Не упустите возможность стать его владельцем!
ID объекта в нашей базе: 1811
Тип недвижимости
Адрес
Этажность
Площадь
Дом
Россия, Оренбургская обл, Южный Урал, ул. Пушкина, 9
2
235
ID объявления
Обновлено
Создано
Действительно до
802854
2026-01-01 06:14:34
2026-01-01 06:14:34
2026-04-01 06:14:34

3 899 000 ₽
Дом
Россия, Оренбургская обл, Оренбург, г.Оренбург, Бургаз, 225

25 000 000 ₽
Дом
Россия, Оренбургская обл, Орск, проезд. Тарский,1001

2 300 000 ₽
Помещение
Оренбургская обл, г Орск, ул Железнодорожная, д 75

1 400 000 ₽
1-комн. квартира
Оренбургская обл, г Новотроицк, ул Советская, д 70

750 000 ₽
Дом
Россия, Оренбургская обл, Сырт, ул. Железнодорожная

5 500 000 ₽
Помещение
Гай

7 750 000 ₽
3-комн. квартира
Россия, Оренбургская обл, Оренбург, ул. Автомобилистов,15
2 580 000 ₽
3-комн. квартира
Оренбургская обл, г Новотроицк, ул Уральская, д 13

6 500 000 ₽
Дом
Россия, Оренбургская обл, Оренбург, Array

10 000 000 ₽
Дом
Оренбургская обл, г Гай, ул Садовая

2 150 000 ₽
2-комн. квартира
Оренбургская обл, г Новотроицк, ул Советская, д 45А

3 150 000 ₽
2-комн. квартира
Россия, Оренбургская обл, Орск, пр-кт. Ленина,22

14 000 000 ₽
Дом
Россия, Оренбургская обл, Подгородняя Покровка, ул. Переволоцкая,106

9 161 690 ₽
Россия, Оренбургская обл, Оренбург, 41 а

3 100 000 ₽
Комната
Оренбургская обл, г Новотроицк, ул Ломоносова, д 44

1 699 000 ₽
1-комн. квартира
Россия, Оренбургская обл, Оренбург, ул. 1 Мая,148

1 060 000 ₽
Дом
Россия, Оренбургская обл, Орловка, ул. Школьная,10

40 000 000 ₽
Помещение
Россия, Оренбургская обл, Орск, ул. Гарина,2

5 450 000 ₽
Дом
Россия, Оренбургская обл, Орск, В.Буканова 29

2 950 000 ₽
2-комн. квартира
Оренбургская обл, г Новотроицк, ул Комарова, д 9

2 850 000 ₽
3-комн. квартира
Оренбургская обл, г Новотроицк, ул Зеленая, д 57А

3 000 000 ₽
2-комн. квартира
Россия, Оренбургская обл, Орск, ул. Московская,17

2 200 000 ₽
3-комн. квартира
Оренбургская обл, г Новотроицк, ул Зеленая, д 43
200 000 ₽
Сад