АН АДРЕСА
Kotikova-adresa@yandex.ru
Скажите продавцу, что вы нашли объявление на 156.ru
1
/
3
6 799 000 ₽
20
Оренбург
АН АДРЕСА
!!! ДОМА ОТ ЗАСТРОЙЩИКА!!!ИПОТЕЧНАЯ СТАВКА 3-6%ЛЮБАЯ ФОРМА РАСЧЕТА( любой сертификат,материнский капитал,обычная ипотека, семейная ипотека, наличный расчет).В ПРОДАЖЕ ДОМА 130 М 6 СотЗАБОР по всему периметру участка!
поселок МАРЬИНО-НЕЗАТОПЛЯЕМАЯ ЗОНА!
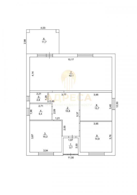
Общая площадь дома 130 мКухня-гостинная 42м с выходом на террасуСпальни-3Открытый большой холС/У+котельнаяТамбур закрытыйКачественная входная дверь с термо-разрывомСтены оштукатурены под обои,кeрaмзитo-блок , утеплитель 10, кирпич.Потолок подшит плитами ОSВ.Откосы, подоконники подготовлены.Радиаторы отопления во всех комнатах, теплый пол по всему периметру дома.Двухконтурный газовый котел.Скважина, септик -3 кольца.Фундaмeнт свaйнo лентoчный,глубина свай 2 м,шаг 1,5м, завoдской бeтoн!Крыша-Металлoчерепица с утеплением,отмостка.
Наша компания провела профессиональную юридическую проверку объекта недвижимости, гарантируя вам защиту от потенциальных рисков.
Сделка будет осуществлена с полной юридической прозрачностью, обеспечивая вас надежным и безопасным приобретением жилья.Офис продаж ул.Восточная 42/3Ваш персональный специалист Котикова Юлия
ID объекта в нашей базе: 1716
Тип недвижимости
Адрес
Этажность
Площадь
Дом
Россия, Оренбургская обл, Оренбург, ул. Северная
1
130
ID объявления
Обновлено
Создано
Действительно до
802209
2025-12-31 05:59:27
2025-12-31 05:59:27
2026-03-31 05:59:27

8 900 000 ₽
Помещение
Оренбургская обл, г Новотроицк, ул Советская, д 40

9 800 000 ₽
Дом
Россия, Оренбургская обл, Оренбург, Оренбургский р-н, с. Нежинка

2 280 000 ₽
2-комн. квартира
Оренбургская обл, г Новотроицк, ул Винокурова, д 10

1 400 000 ₽
1-комн. квартира
Оренбургская обл, г Новотроицк, ул Советская, д 76

5 200 000 ₽
3-комн. квартира
2 000 000 ₽
2-комн. квартира
Оренбургская обл, г Новотроицк, ул Советская
4 200 000 ₽
4-комн. квартира
Оренбургская обл, г Новотроицк, ул Советская, д 57

1 600 000 ₽
2-комн. квартира
Оренбургская обл, г Новотроицк, ул Советская, д 152

5 200 000 ₽
Дом
Оренбургская обл, г Новотроицк, ул Луговая
1 300 000 ₽
1-комн. квартира
Центр, Новотроицк
900 000 ₽
Сад

2 390 000 ₽
2-комн. квартира
4 500 000 ₽
Помещение

15 000 000 ₽
Помещение

3 500 000 ₽
4-комн. квартира
Россия, Оренбургская обл, Орск, ул. Васнецова,27А

3 150 000 ₽
4-комн. квартира

2 700 000 ₽
2-комн. квартира
Оренбургская обл, г Новотроицк, ул Комарова, д 4

3 100 000 ₽
4-комн. квартира
Россия, Оренбургская обл, Краснохолм, ул. Строителей 1

2 300 000 ₽
3-комн. квартира
Оренбургская обл, г Новотроицк, ул Советская, д 7

7 200 000 ₽
2-комн. квартира
Россия, Оренбургская обл, Оренбург, пр-кт. Победы,149/1

2 300 000 ₽
2-комн. квартира
Оренбургская обл, г Новотроицк, ул Советская, д 158

25 000 000 ₽
Россия, Оренбургская обл, Оренбург, п. Пригородный, улица Терешковой, д. 55

990 000 ₽
Дача
Россия, Оренбургская обл, Оренбург, СНТ Искра (около д. Аввакумово), 8, Калининский муниципальный округ, Тверская область

8 250 000 ₽
Дом
Россия, Оренбургская обл, Оренбург, СНТ Авиато- 3, ул. Десантная 43