АН АДРЕСА
rozyaeva-adresa@yandex.ru
Скажите продавцу, что вы нашли объявление на 156.ru
1
/
3
8 900 000 ₽
17
Оренбург
АН АДРЕСА
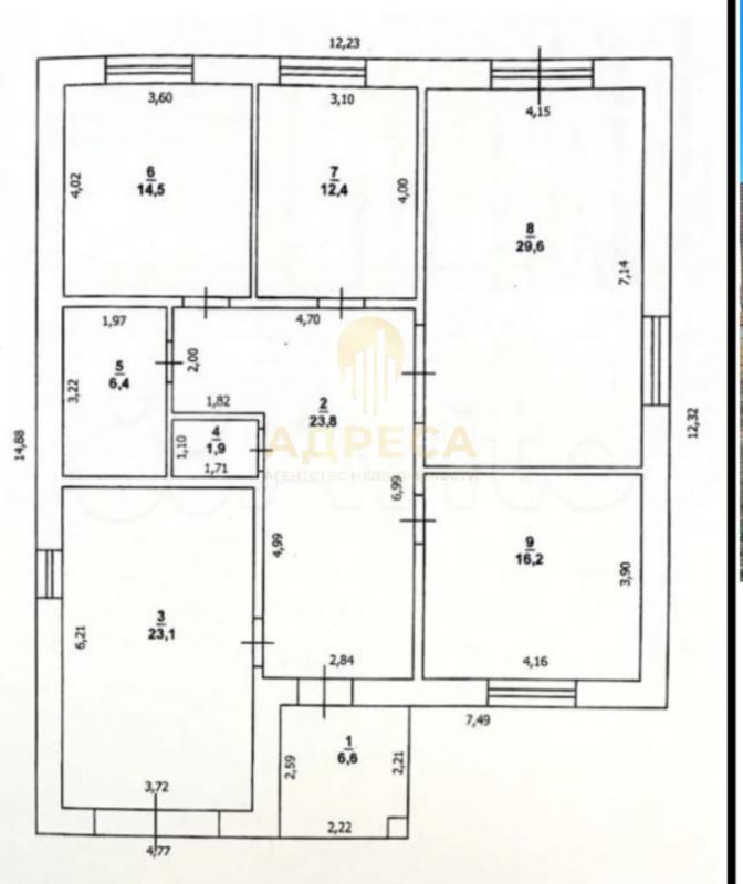
ТАУНХАУС !!! ПРОДАЮТСЯ ОБЕ ЧАСТИ ! Добротный дом ! Дом отдельно стоящий 335 кв.м. с уютным участком для чаепития и грядок. Можно и душой отдохнуть и не устать.Дом теплый, строили для себя по планировке как таунхаус идеально для большой семьи, друзей и просто хороших людей ! Каждая часть дома 165 кв.м, качественный ремонт из современных материалов, деревянная лестница, на полу плитка и кварц винил, продуманная проводка, идеальная планировка! Видеонаблюдение по периметру дома.1 этаж- кухня, (новый кухонный гарнитур остаётся) гостинная, сан узел , кладовая, 2 этаж 3 спальни, сан узел.3 этаж просторная спальня, мастерская, балкон, переход во вторую часть домацоколь комната хранения, котельная, переход во вторую часть дома.Во дворе гараж на две машины, дополнительные парковочные места перед домом. Дом расположен по середине участка перед домом выложено плиткой за домом огород с местом для отдыха! Дом в городе по цене квартиры с минимальным количеством соседей!Удачное местоположение дома, вдали от шумных дорог, но все рядом!Один взрослый собственник, быстрый выход на сделку. Можно купить дом целиком, или половину.Развитая инфраструктураРядом детские сады № 4, 140, 147 , школы № 8, 32, 52Автобусные остановки, пр. Гагарина, ул. Карагандинская. Легко добраться в любую точку города без пересадок.Национальная деревня, парк Гагарина - 10 мин пешкомСКК Оренбуржье - различные спортивные секции для детей, Спортивная школа олимпийского резерва №6 (тхеквондо, прыжки на батуте, тяжелая атлетика), тренажерный зал и занятия спортом для взрослых, концерты и различные мероприятияБиблиотека имени Некрасова- как для взрослых, так и для детейДетская поликлиника №3 в пяти минутах ходьбыПервая городская поликлиника в пешей доступностиКруглосуточный магазин Пятерочка и ТЦ Гагарин, Рынок Восточный Отделения ПСБ и СбербанкаАптеки, FiхРriсе и другие магазины
ID объекта в нашей базе: 1703
Тип недвижимости
Адрес
Этажность
Этаж
Площадь
5-комн. квартира
Россия, Оренбургская обл, Оренбург, ул. Бугурусланская,60
3
3
165
ID объявления
Обновлено
Создано
Действительно до
802201
2025-12-31 05:57:50
2025-12-31 05:57:50
2026-03-31 05:57:50

2 180 000 ₽
2-комн. квартира
Оренбургская обл, г Новотроицк, ул Советская, д 98

3 500 000 ₽
3-комн. квартира
Россия, Оренбургская обл, Орск, пер. Российский,3

2 500 000 ₽
Дом
Россия, Оренбургская обл, Татарская Каргала, ул. Набережная,14

2 300 000 ₽
3-комн. квартира
Оренбургская обл, г Новотроицк, ул Зеленая, д 71

6 390 000 ₽
Дом
Россия, Оренбургская обл, Оренбург, ул. Герцена,11

3 140 000 ₽
3-комн. квартира

1 000 000 ₽
1-комн. квартира
г Оренбург, ул Декабристов, д 1

6 899 000 ₽
Дом
Россия, Оренбургская обл, Кувандык, ул. Советская,140

7 500 000 ₽
Дом
Россия, Оренбургская обл, Оренбург, Array

1 570 000 ₽
2-комн. квартира
Оренбургская обл, г Новотроицк, ул Мичурина, д 18А

6 300 000 ₽
1-комн. квартира
Россия, Оренбургская обл, Оренбург, Чкалова 51/1

350 000 ₽
Земельный участок
Оренбургская обл, Гайский р-н, село Банное, ул Центральная, д 1

1 850 000 ₽
1-комн. квартира

12 000 000 ₽
Помещение
Россия, Оренбургская обл, Орск, Малишевского 82

2 850 000 ₽
2-комн. квартира

1 100 000 ₽
Комната
Россия, Оренбургская обл, Орск, Ул. Братская д. 52А

2 100 000 ₽
1-комн. квартира
Оренбургская обл, г Новотроицк, Студенческий пер, д 4
3 600 000 ₽
Помещение
Оренбургская обл, г Новотроицк, ул Советская, д 85

9 400 000 ₽
Дом
Россия, Оренбургская обл, Оренбург, ул. Спортивная,21

4 999 000 ₽
Дом
Россия, Оренбургская обл, Оренбург, г. Оренбург, п.Заречный, ул.Ярославская, 4/1

8 499 000 ₽
Дом
Россия, Оренбургская обл, Весенний, ул. Вишневая

5 700 000 ₽
Дом

2 700 000 ₽
3-комн. квартира
Оренбургская обл, г Новотроицк, ул Советская, д 108
300 000 ₽
Земельный участок
Россия, Оренбургская обл, Орск, Новоказачий