АН АДРЕСА
Lilia.k-adresa@yandex.ru
Скажите продавцу, что вы нашли объявление на 156.ru
1
/
3
3 850 000 ₽
27
Оренбург
АН АДРЕСА
ПРЕДЛАГАЕМ ВАШЕМУ ВНИМАНИЮ ПРОСТОРНУЮ И УЮТНУЮ ДВУХКОМНАТНУЮ КВАРТИРУ!
КВАРТИРА С НОВЫМ ОТЛИЧНЫМ РЕМОНТОМ, ЧТО ПОЗВОЛЯЕТ ЗАЕХАТЬ и ЖИТЬ!
О КВАРТИРЕ:
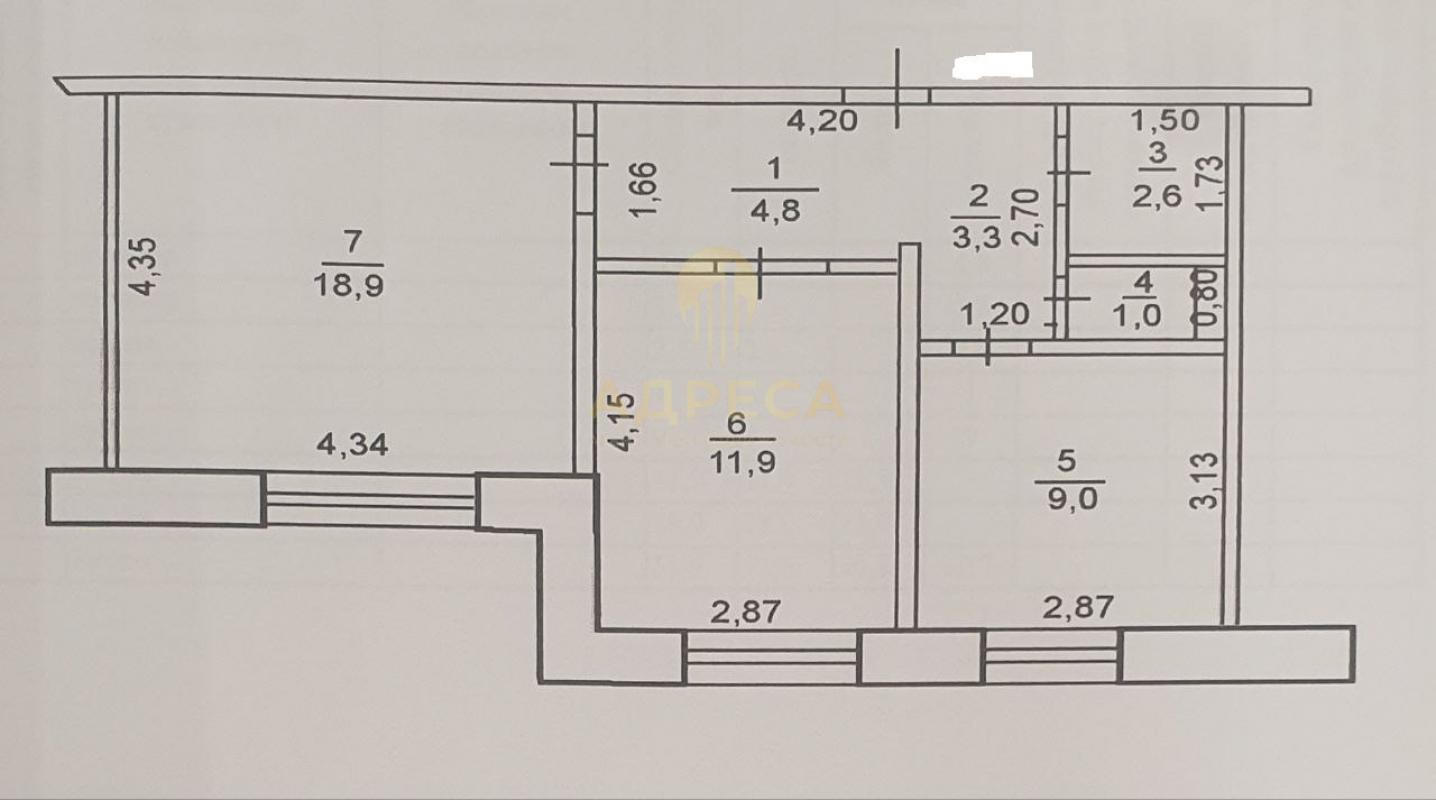
Общая площадь квартиры – 51.5 кв.м Очень хорошая планировка – квадратный просторный зал площадью 18.9 кв.м,, светлая спальня 11,9 кв.м., и уютная кухня 9 кв.м. В квартире выполнен качественный ремонт. Во всех комнатах пластиковые окна. С/У раздельный в кафеле. Качественные деревянные двери. Полы с подогревом! Из мебели остается вместительный угловой кухонный гарнитур. Сплит система. Коммуникации все центральные. Квартира очень теплая. Соседи очень хорошие и дружные.
ИНФРАСТРУКТУРА:
—д/с 106.
—СОШ №11
—Магазины Пятерочка, Магнит, Красное/белое, аптеки и др.;
Остановка общественного транспорта в шаговой доступности: маршруты: 78Н (62), 23.Рассмотрим все формы расчета: ипотека, сертификаты, наличный и безналичный расчет.
- Поможем купить в ипотеку! Узнавайте по телефону подробные условия.
Юридическое сопровождение сделки.
Если вам понравился этот вариант, но у вас ещё не продана своя недвижимость, предложите нам, возможно у нас прямо сейчас есть на неё покупатель.
ID объекта в нашей базе: 1394
Тип недвижимости
Адрес
Этажность
Этаж
Площадь
2-комн. квартира
Россия, Оренбургская обл, Оренбург, ул. Авиационная,20
5
1
51.5
ID объявления
Обновлено
Создано
Действительно до
802088
2025-12-31 05:33:51
2025-12-31 05:33:51
2026-03-31 05:33:51

2 489 000 ₽
2-комн. квартира
Оренбургская обл, г Новотроицк, ул Комарова, д 3

1 750 000 ₽
2-комн. квартира
Оренбургская обл, г Новотроицк, ул Пушкина, д 66А

2 800 000 ₽
1-комн. квартира
2 400 000 ₽
3-комн. квартира
Оренбургская обл, г Новотроицк, ул Уральская, д 6А

2 550 000 ₽
3-комн. квартира
Оренбургская обл, г Новотроицк, Студенческий пер, д 8
8 500 000 ₽
Земельный участок
Россия, Оренбургская обл, Оренбург, ул. Весенняя,3

1 200 000 ₽
1-комн. квартира
Оренбургская обл, г Новотроицк, пр-кт Металлургов, д 38

4 500 000 ₽
1-комн. квартира
Россия, Оренбургская обл, Оренбург, ул. Уральская,2/8

9 000 000 ₽
Дом
Россия, Оренбургская обл, Ленина, ул. Сосновая,13

договорная

165 000 ₽
Гараж
Оренбургская обл, г Новотроицк

4 610 000 ₽
1-комн. квартира
Россия, Оренбургская обл, Оренбург, пер. Слесарный

5 100 000 ₽
3-комн. квартира

600 000 ₽
Дом
Россия, Оренбургская обл, Чебеньки, ул. Степная

2 050 000 ₽
1-комн. квартира
Оренбургская обл, г Орск, ул Ю.Фучика, д 9

3 950 000 ₽
3-комн. квартира

6 500 000 ₽
Дом
Россия, Краснодарский край, Сочи, ул. Бакинская,14/1

6 150 000 ₽
Дом
Россия, Оренбургская обл, Благословенка, 34/1

5 200 000 ₽
3-комн. квартира

3 709 025 ₽
2-комн. квартира
Россия, Оренбургская обл, Нежинка, ул. Александровская,6

1 900 000 ₽
2-комн. квартира
Оренбургская обл, г Новотроицк, ул Железнодорожная, д 3
2 500 000 ₽
Помещение
Оренбургская обл, г Новотроицк, пр-кт Металлургов, д 17

4 800 000 ₽
3-комн. квартира

2 100 000 ₽
2-комн. квартира
Оренбургская обл, г Новотроицк, ул Марии Корецкой, д 19