АН АДРЕСА
Hohlova-adresa@yandex.ru
Скажите продавцу, что вы нашли объявление на 156.ru
1
/
3
8 700 000 ₽
15
Подгородняя Покровка
АН АДРЕСА
Семейная ипотека 6%
Ипотека под строительство Жилой дом 129 кв.м. Подгородняя Покровка Планировка продумана до мелочей.
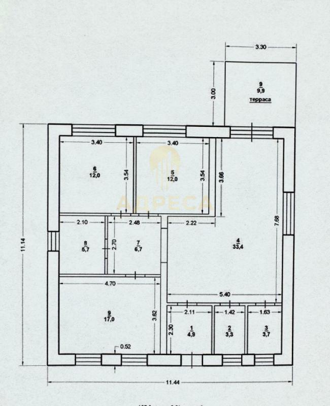
-Кухня гостиная 33,4 кв.м. с выходом на террасу; -Два санузла, отдельная котельная; - Три изолированные комнаты 12 кв.м, 12 кв. м., 17 кв. м; О доме: - фундамент свайно-ростверковый; -крыша: металлочерепица; -материал стен: керамзитоблок; -терасса залита;- входная дверь с терморазрывом.Инфраструктура: - в шаговой доступности школа и детский сад; -магазины;-автошкола;-Оренбургский аграрный колледж; -Асфальтированные дороги; -Удобный выезд из поселка.Альтернативные направления: Ленина, Заречье, Соловьи, Марьино, Нежинка, Ростоши, Пригородный, Ивановка, Приуралье
ID объекта в нашей базе: 1579
Тип недвижимости
Адрес
Этажность
Площадь
Дом
Россия, Оренбургская обл, Подгородняя Покровка, ул. Российская,44
1
129
ID объявления
Обновлено
Создано
Действительно до
801553
2025-12-30 05:50:09
2025-12-30 05:50:09
2026-03-30 05:50:09

2 700 000 ₽
3-комн. квартира
Оренбургская обл., г. Новотроицк, ул. Винокурова, д. 12

1 200 000 ₽
1-комн. квартира
Оренбургская обл, г Новотроицк, ул Советская, д 57, кв 17

13 699 000 ₽
Дом
Россия, Оренбургская обл, Ленина, ул. Каргалинская

3 550 000 ₽
3-комн. квартира
Оренбургская обл, г Новотроицк, Комсомольский пр-кт, д 48

4 300 000 ₽
Дом
Россия, Оренбургская обл, Красный Коммунар, 79А

100 ₽
2-комн. квартира
Оренбургская обл, г Гай, ул Войченко, д 7

2 300 000 ₽
2-комн. квартира
Оренбургская обл, г Новотроицк, ул Советская, д 104

4 650 000 ₽
3-комн. квартира
Россия, Оренбургская обл, Оренбург, ул. Космическая,7/1

2 180 000 ₽
2-комн. квартира
Оренбургская обл, г Новотроицк, ул Советская, д 98

5 150 000 ₽
Дом
Россия, Оренбургская обл, Оренбург, ул. Степана Разина,65

3 950 000 ₽
3-комн. квартира
3 600 000 ₽
Помещение
Оренбургская обл, г Новотроицк, ул Советская, д 85
договорная
3-комн. квартира
Оренбургская обл, г Новотроицк, ул Уметбаева, д 7

1 800 000 ₽
2-комн. квартира
Оренбургская обл, г Новотроицк, ул Советская, д 2

1 099 000 ₽
Дом
Россия, Оренбургская обл, Родничный Дол, ул. Набережная,1

2 300 000 ₽
3-комн. квартира
Оренбургская обл, г Новотроицк, ул Пушкина, д 46

1 550 000 ₽
1-комн. квартира
Оренбургская обл, г Новотроицк, ул Уральская, д 39

1 900 000 ₽
2-комн. квартира
Юных Ленинцев, 10

2 699 000 ₽
3-комн. квартира

2 100 000 ₽
2-комн. квартира
Оренбургская обл, г Гай, ул Молодёжная, д 6

1 700 000 ₽
3-комн. квартира
Оренбургская обл, г Новотроицк, ул Зеленая, д 63

2 000 000 ₽
2-комн. квартира
Оренбургская обл, г Новотроицк, ул Советская, д 132

4 300 000 ₽
3-комн. квартира
Оренбургская обл, г Новотроицк, Комсомольский пр-кт, д 48

850 000 ₽
Земельный участок
Россия, Оренбургская обл, Орск, ул. Водная,59