АН АДРЕСА
korneeva-adresa@yandex.ru
Скажите продавцу, что вы нашли объявление на 156.ru
1
/
3
7 300 000 ₽
23
Оренбург
АН АДРЕСА
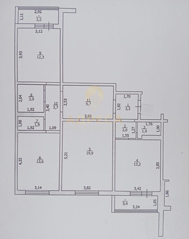
Продаётся просторная трёхкомнатная квартира на комфортном 9 этаже.Район с развитой инфраструктурой: магазины, рынок "Петровский", школа №8, №32, Пушкинский лицей, детский сад №4, №140. В пешей доступности культурный комплекс «Национальная деревня» и парк им. Ю.А. Гагарина.Идеальное предложение для семьи, которая ценит комфортное проживание.Ключевые параметры:· Общая площадь: 85,4 м².· Этаж: 9/16.· Комнаты: изолированные.Описание и преимущества:· Современный ремонт: Полы залиты и выровнены, стены идеально ровные, полностью заменена вся электрическая проводка.· Отделка: Ванная, санузел отделаны современным кафелем.· Комфорт и технологии: В ванной установлен «тёплый пол», в гостиной мощная сплит-система. Высокие потолки 2,9 метра.· Функциональность: Удобная кухня 14 м² с встроенной мебелью "Мария". Есть гардеробная комната со стиральной машинойИнфраструктура и двор:· Во дворе — зона для барбекю, современная детская и спортивная площадки, хоккейная коробка.· В шаговой доступности всё необходимое: аптека, почта, продуктовые магазины.· Круглосуточное видеонаблюдение (Уфанет) в подъездах и лифтах для вашей безопасности.Транспортная развязка:· Остановка общественного транспорта в 3х минутах ходьбы. Автобусы № 7, 20, 79Н, 53Н позволят добраться в любую точку города без проблем.· Рядом расположены улицы: Алтайская, Карагандинская, Пр. Гагарина, Лесозащитная.✅Если у Вас не продан объект недвижимости, но Вы хотите приобрести наш, мы готовы помочь Вам реализовать эту мечту! Наша компания всегда готова предложить Вам лучшие варианты решения, которые соответствуют Вашим потребностям!Звоните и записывайтесь на просмотр!!!
ID объекта в нашей базе: 1726
Тип недвижимости
Адрес
Этажность
Этаж
Площадь
3-комн. квартира
Россия, Оренбургская обл, Оренбург, ул. Мира,3/1
16
9
85.4
ID объявления
Обновлено
Создано
Действительно до
800444
2025-12-28 06:01:35
2025-12-28 06:01:35
2026-03-28 06:01:35

1 000 000 ₽
2-комн. квартира

7 999 000 ₽
Дом
Россия, Оренбургская обл, Оренбург, Ростоши-2, ул. 3 Линия

4 700 000 ₽
3-комн. квартира

14 000 000 ₽
Дом
Россия, Оренбургская обл, Подгородняя Покровка, ул. Переволоцкая,106

4 700 000 ₽
Дом
Оренбургская обл, г Новотроицк, ул 1 Мая

5 700 000 ₽
3-комн. квартира
Россия, Оренбургская обл, Орск, ул. Машиностроителей,9

800 000 ₽
Сад

550 000 ₽
Земельный участок
Россия, Оренбургская обл, Подгородняя Покровка, Array

3 250 000 ₽
2-комн. квартира
Оренбургская обл, г Новотроицк, ул Советская, д 9

4 500 000 ₽
3-комн. квартира
Оренбургская обл, г Новотроицк, ул Марии Корецкой, д 15А

4 610 000 ₽
1-комн. квартира
Россия, Оренбургская обл, Оренбург, пер. Слесарный,7

3 200 000 ₽
3-комн. квартира
Оренбургская обл, г Новотроицк, ул Советская, д 115

750 000 ₽
Земельный участок
Россия, Оренбургская обл, Казачий, ул. Горная, уч.8 стр.А
1 800 000 ₽
1-комн. квартира
Оренбургская обл, г Новотроицк, ул Советская, д 142

5 500 000 ₽
Дом
Россия, Оренбургская обл, Нежинка, СНТ Сказка, 12 Линия

5 500 000 ₽
2-комн. квартира
Оренбургская обл, г Новотроицк, ул Советская, д 85

1 300 000 ₽
2-комн. квартира
Оренбургская обл, г Новотроицк, ул Зеленая
800 000 ₽
2-комн. квартира
Оренбургская обл, Гайский р-н, поселок Репино, ул Школьная, д 5, кв 15

4 300 000 ₽
Дом
Россия, Оренбургская обл, Оренбург, Оренбургский р-н, Экспериментальный сельсовет, Коттеджный поселок в СНТ Южное, ул. Липовая
570 000 ₽
Комната
Оренбургская обл, г Новотроицк, село Хабарное

3 450 000 ₽
2-комн. квартира

1 400 000 ₽
1-комн. квартира
Оренбургская обл, г Новотроицк, ул Советская, д 76

2 200 000 ₽
2-комн. квартира
Оренбургская обл, г Новотроицк, ул Советская, д 65Б

1 350 000 ₽
2-комн. квартира
Оренбургская обл, г Новотроицк, ул Ломоносова, д 24