АН АДРЕСА
Issarova-adresa@yandex.ru
Скажите продавцу, что вы нашли объявление на 156.ru
1
/
3
5 000 000 ₽
8
Оренбург
АН АДРЕСА
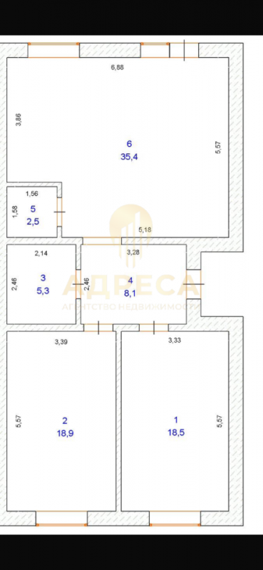
Продаётся дом дуплекс.Площадь 93кв.м ,стоимость 5000000Земельный участок 4-5 сотки.-Крыша металлочерепица-Стены-газоблок 30см-Фасад-кирпич.-Окна-пластиковые двухкамерные.-Дверь металическая с терморазрывом.Дом с предчистовой отделкой;-Система тёплый пол -Подключено эелектричество-Подключён газ-Вода (кважина 18м)-Счётчики установлены.Отличное местоположение, в черте городаВ шаговой доступности,школа,детский сад,магазины,аптеки.По показу звоните и пишите,покажу в удобное для вас время!!!
ID объекта в нашей базе: 1515
Тип недвижимости
Адрес
Этажность
Площадь
Дом
Россия, Оренбургская обл, Оренбург, ул. Ярославская
1
92
ID объявления
Обновлено
Создано
Действительно до
799132
2025-12-26 06:05:16
2025-12-26 06:05:16
2026-03-26 06:05:16

480 000 ₽
Земельный участок
Россия, Оренбургская обл, Орск, Пос. Вокзальный

680 000 ₽
Сад

5 200 000 ₽
3-комн. квартира

3 500 000 ₽
3-комн. квартира
Россия, Оренбургская обл, Орск, пер. Хрустальный,6
2 600 000 ₽
2-комн. квартира
Оренбургская обл, г Новотроицк, ул Советская, д 117

5 499 000 ₽
Дом
Россия, Оренбургская обл, Оренбург, с. Нежинка, СНТ "Маяк", 13 линия

350 000 ₽
Сад

2 750 000 ₽
3-комн. квартира
Россия, Оренбургская обл, Орск, ул. Ю.Фучика,11

5 500 000 ₽
Дом
Россия, Оренбургская обл, Сергиевка, ул. Центральная , 51

3 000 000 ₽
2-комн. квартира
Россия, Оренбургская обл, Орск, ул. Московская,17

6 500 000 ₽
Дом
Россия, Оренбургская обл, Оренбург, г.Оренбург,СНТ Фонтан,Виноградная 443

3 900 000 ₽
3-комн. квартира
Оренбургская обл, г Новотроицк, ул Уральская, д 34

2 450 000 ₽
2-комн. квартира
Оренбургская обл, г Новотроицк, ул Советская, д 128

2 200 000 ₽
2-комн. квартира
Россия, Оренбургская обл, Орск, ул. Ялтинская,93

2 700 000 ₽
2-комн. квартира
Оренбургская обл, г Новотроицк, ул Марии Корецкой, д 13

17 000 000 ₽
Дом

10 500 000 ₽
Помещение
Россия, Оренбургская обл, Оренбург, Тамарова 1/2

1 400 000 ₽
1-комн. квартира

2 100 000 ₽
2-комн. квартира
Оренбургская обл, г Новотроицк, ул Советская, д 47А

1 810 000 ₽
1-комн. квартира
Оренбургская обл, г Новотроицк, пр-кт Металлургов, д 8

990 000 ₽
Дом
Россия, Оренбургская обл, Оренбург, Переволоцкий р-н, с.Родничный Дол, ул.Центральная

6 390 000 ₽
Дом
Россия, Оренбургская обл, Оренбург, ул. Герцена,11

4 050 000 ₽
2-комн. квартира
Россия, Оренбургская обл, Оренбург, пр-кт. Братьев Коростелевых,68/1

1 560 000 ₽
1-комн. квартира
Оренбургская обл, г Новотроицк, ул Советская, д 102