АН АДРЕСА
Issarova-adresa@yandex.ru
Скажите продавцу, что вы нашли объявление на 156.ru
1
/
3
6 800 000 ₽
28
Оренбург
АН АДРЕСА
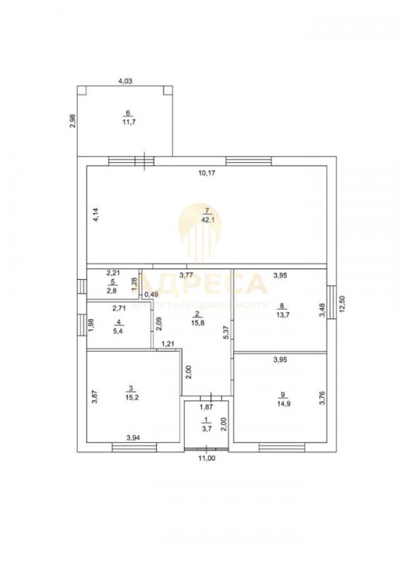
Сельская ипотека 3%Семейная ипотека 5,9%Продам дом, площадь 130кв.м на участке 6 соток.В посёлке Марьино(1-я линия)Шикарная планировка:.-Огромная кухня-гостиная с выходом на террасу.-Три спальни.-Два санузла.-Просторная прихожая.Дом сдаётся в предчистовой отделке.Качественная входная дверь с терморазрывом.Потолок подшит.Качественные окна.Тёплый пол по всему периметру дома.Крыша металлочерепица с утеплением.Ждём Вас на просмотр вашего будущего дома!!!Звоните прямо сейчас,чтобы узнать больше деталей и договориться о встрече.
ID объекта в нашей базе: 1724
Тип недвижимости
Адрес
Этажность
Площадь
Дом
Россия, Оренбургская обл, Оренбург, с.Благословенка,ул Северная
1
130
ID объявления
Обновлено
Создано
Действительно до
797767
2025-12-24 08:23:22
2025-12-24 08:23:22
2026-03-24 08:23:22

2 100 000 ₽
2-комн. квартира
Оренбургская обл, г Новотроицк, ул Советская, д 110

1 700 000 ₽
2-комн. квартира
Оренбургская обл, г Новотроицк, ул Мичурина, д 8

2 200 000 ₽
3-комн. квартира

договорная

3 000 000 ₽
2-комн. квартира
Россия, Оренбургская обл, Орск, ул. Шелухина,8

1 790 000 ₽
1-комн. квартира

10 990 000 ₽
Россия, Оренбургская обл, Орск, ул. Перспективная,3

3 500 000 ₽
3-комн. квартира
Россия, Оренбургская обл, Орск, ул. Олимпийская,30

1 350 000 ₽
1-комн. квартира
Оренбургская обл, г Новотроицк, ул Губина, д 14А

3 900 000 ₽
3-комн. квартира
Оренбургская обл, г Новотроицк, ул Уральская, д 34

4 500 000 ₽
Помещение
Оренбургская обл, Адамовский р-н, поселок Адамовка

15 000 000 ₽
Дом
Россия, Оренбургская обл, Оренбург, Земская 15

2 300 000 ₽
Гараж
Россия, Оренбургская обл, Оренбург, ул. Просторная,8

2 000 000 ₽
2-комн. квартира
Оренбургская обл, г Гай, ул Молодёжная, д 71А

2 550 000 ₽
1-комн. квартира
Россия, Оренбургская обл, Оренбург, Пролетарская 267/1

2 150 000 ₽
3-комн. квартира

4 500 000 ₽
1-комн. квартира
Россия, Оренбургская обл, Оренбург, ул. Уральская,2/8

111 111 ₽
Сад

4 000 000 ₽
3-комн. квартира
Оренбургская обл, г Гай, Октябрьский пер, д 4

2 700 000 ₽
2-комн. квартира
Оренбургская обл, г Новотроицк, ул Марии Корецкой, д 13

10 000 000 ₽
Помещение
Оренбургская обл, г Новотроицк, ул Советская, д 55

1 700 000 ₽
2-комн. квартира
Оренбургская обл, г Новотроицк, ул Зеленая, д 57А

3 000 000 ₽
1-комн. квартира

1 700 000 ₽
Дом
Оренбургская обл, г Новотроицк, ул Победы, д 13