АН АДРЕСА
Hohlova-adresa@yandex.ru
Скажите продавцу, что вы нашли объявление на 156.ru
1
/
3
8 700 000 ₽
18
Подгородняя Покровка
АН АДРЕСА
Семейная ипотека 6%
Ипотека под строительство Жилой дом 129 кв.м. Подгородняя Покровка Планировка продумана до мелочей.
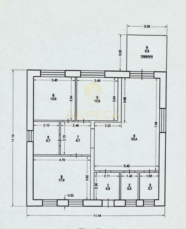
-Кухня гостиная 33,4 кв.м. с выходом на террасу; -Два санузла, отдельная котельная; - Три изолированные комнаты 12 кв.м, 12 кв. м., 17 кв. м; О доме: - фундамент свайно-ростверковый; -крыша: металлочерепица; -материал стен: керамзитоблок; -терасса залита;- входная дверь с терморазрывом.Инфраструктура: - в шаговой доступности школа и детский сад; -магазины;-автошкола;-Оренбургский аграрный колледж; -Асфальтированные дороги; -Удобный выезд из поселка.Альтернативные направления: Ленина, Заречье, Соловьи, Марьино, Нежинка, Ростоши, Пригородный, Ивановка, Приуралье
ID объекта в нашей базе: 1579
Тип недвижимости
Адрес
Этажность
Площадь
Дом
Россия, Оренбургская обл, Подгородняя Покровка, ул. Российская,44
1
129
ID объявления
Обновлено
Создано
Действительно до
797694
2025-12-24 07:41:23
2025-12-24 07:41:23
2026-03-24 07:41:23

6 000 000 ₽
3-комн. квартира
Россия, Оренбургская обл, Оренбург, ул. Юркина,2

1 620 000 ₽
2-комн. квартира
Оренбургская обл, г Новотроицк, ул Свистунова, д 17

990 000 ₽
Дача
Россия, Оренбургская обл, Оренбург, Оренбурский район, Благословенский сельсовет, СНТ Агропромовец, улица 3 Линия, участок 18

7 490 000 ₽
Дом
Россия, Оренбургская обл, Оренбург, ул. Лесная,32

3 800 000 ₽
3-комн. квартира
Россия, Оренбургская обл, Орск, ул. Спортивная,1

2 000 000 ₽
2-комн. квартира
Оренбургская обл, г Гай, ул Молодёжная, д 71А

2 500 000 ₽
2-комн. квартира
Оренбургская обл, г Новотроицк, ул Винокурова, д 12А

7 000 000 ₽
Помещение

10 500 000 ₽
Помещение
Россия, Оренбургская обл, Оренбург, Тамарова 1/2

1 250 000 ₽
1-комн. квартира
Оренбургская обл, г Новотроицк, ул Мира, д 24
2 966 040 ₽
1-комн. квартира
Россия, Оренбургская обл, Оренбург, ул. Юркина, д. 2

6 000 000 ₽
3-комн. квартира
Оренбургская обл, г Новотроицк, ул Советская, д 97

1 450 000 ₽
2-комн. квартира
Оренбургская обл, г Новотроицк, ул Жукова, д 9

9 161 690 ₽
Россия, Оренбургская обл, Оренбург, 41 а

4 300 000 ₽
Дом
Россия, Оренбургская обл, Оренбург, СНТ «Южное»

3 150 000 ₽
2-комн. квартира
Россия, Оренбургская обл, Орск, пр-кт. Ленина,22

1 200 000 ₽
1-комн. квартира
Оренбургская обл, г Новотроицк, ул Советская, д 57, кв 17

2 050 000 ₽
2-комн. квартира
Оренбургская обл, г Новотроицк, ул Советская, д 152

5 150 000 ₽
Дом
Россия, Оренбургская обл, Оренбург, ул. Степана Разина,65

4 300 000 ₽
Дом
Россия, Оренбургская обл, Оренбург, г. Оренбург, с. Пруды, ул. Береговая 25, к.2

1 660 000 ₽
2-комн. квартира
Оренбургская обл, г Новотроицк, ул Марии Корецкой, д 21

1 150 000 ₽
1-комн. квартира
Россия, Оренбургская обл, Орск, ул. Юлина,10

2 400 000 ₽
2-комн. квартира
Оренбургская обл, г Новотроицк, ул Строителей, д 6

6 146 000 ₽
Дом
Россия, Оренбургская обл, Оренбург, Array