АН АДРЕСА
Lilia.k-adresa@yandex.ru
Скажите продавцу, что вы нашли объявление на 156.ru
1
/
3
3 850 000 ₽
17
Оренбург
АН АДРЕСА
ПРЕДЛАГАЕМ ВАШЕМУ ВНИМАНИЮ ПРОСТОРНУЮ И УЮТНУЮ ДВУХКОМНАТНУЮ КВАРТИРУ!
КВАРТИРА С НОВЫМ ОТЛИЧНЫМ РЕМОНТОМ, ЧТО ПОЗВОЛЯЕТ ЗАЕХАТЬ и ЖИТЬ!
О КВАРТИРЕ:
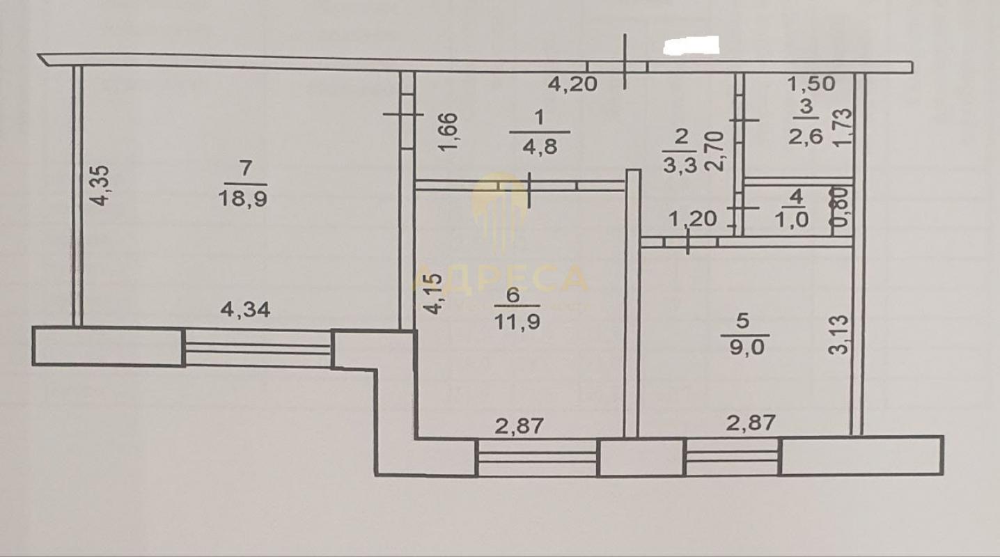
Общая площадь квартиры – 51.5 кв.м Очень хорошая планировка – квадратный просторный зал площадью 18.9 кв.м,, светлая спальня 11,9 кв.м., и уютная кухня 9 кв.м. В квартире выполнен качественный ремонт. Во всех комнатах пластиковые окна. С/У раздельный в кафеле. Качественные деревянные двери. Полы с подогревом! Из мебели остается вместительный угловой кухонный гарнитур. Сплит система. Коммуникации все центральные. Квартира очень теплая. Соседи очень хорошие и дружные.
ИНФРАСТРУКТУРА:
—д/с 106.
—СОШ №11
—Магазины Пятерочка, Магнит, Красное/белое, аптеки и др.;
Остановка общественного транспорта в шаговой доступности: маршруты: 78Н (62), 23.Рассмотрим все формы расчета: ипотека, сертификаты, наличный и безналичный расчет.
- Поможем купить в ипотеку! Узнавайте по телефону подробные условия.
Юридическое сопровождение сделки.
Если вам понравился этот вариант, но у вас ещё не продана своя недвижимость, предложите нам, возможно у нас прямо сейчас есть на неё покупатель.
ID объекта в нашей базе: 1394
Тип недвижимости
Адрес
Этажность
Этаж
Площадь
2-комн. квартира
Россия, Оренбургская обл, Оренбург, ул. Авиационная,20
5
1
51.5
ID объявления
Обновлено
Создано
Действительно до
797638
2025-12-24 06:30:22
2025-12-24 06:30:22
2026-03-24 06:30:22

4 100 000 ₽
3-комн. квартира

5 200 000 ₽
Дом
Россия, Оренбургская обл, Оренбург, г.Оренбург, СНТ Авиатор-2, ул. 1-я Линия, уч.430

5 300 000 ₽
Россия, Оренбургская обл, Оренбург, Оренбургский р-н, с.Нежинка, ул.Заречная

1 550 000 ₽
2-комн. квартира
Оренбургская обл, г Новотроицк, ул Железнодорожная, д 57

13 860 000 ₽
3-комн. квартира
Россия, Оренбургская обл, Оренбург, ул. Цвиллинга,68

5 999 000 ₽
Дом
Россия, Оренбургская обл, Оренбург, 40

3 000 000 ₽
3-комн. квартира
Оренбургская обл, г Новотроицк, ул Винокурова, д 4

3 000 000 ₽
1-комн. квартира

2 500 000 ₽
1-комн. квартира
Оренбургская обл, г Новотроицк, ул Юных Ленинцев, д 9

836 000 ₽
Комната
Россия, Оренбургская обл, Оренбург, проезд. Промысловый,21

2 350 000 ₽
3-комн. квартира
Оренбургская обл, г Новотроицк, ул Советская, д 142

2 500 000 ₽
3-комн. квартира
Оренбургская обл, г Гай, ул Ленина, д 24

3 650 000 ₽
4-комн. квартира
Оренбургская обл, г Новотроицк, пр-кт Металлургов, д 38

2 100 000 ₽
2-комн. квартира
Оренбургская обл, г Новотроицк, ул Советская, д 125

1 810 000 ₽
1-комн. квартира
Оренбургская обл, г Новотроицк, пр-кт Металлургов, д 8

2 500 000 ₽
3-комн. квартира
Оренбургская обл, г Новотроицк, ул Железнодорожная, д 71

1 150 000 ₽
1-комн. квартира

3 000 000 ₽
2-комн. квартира
Оренбургская обл, г Новотроицк, ул Пушкина, д 46А
100 000 ₽
Сад

1 500 000 ₽
2-комн. квартира
Оренбургская обл, г Новотроицк, ул Уральская, д 13

5 703 710 ₽
3-комн. квартира
Россия, Оренбургская обл, Нежинка, ул. Фестивальная,21/1

4 610 000 ₽
1-комн. квартира
Россия, Оренбургская обл, Оренбург, пер. Слесарный,7

1 650 000 ₽
2-комн. квартира
Оренбургская обл, г Новотроицк, ул Зеленая, д 37

1 500 000 ₽
2-комн. квартира
Оренбургская обл, г Новотроицк, пр-кт Металлургов, д 30