АН АДРЕСА
a.borisova-adresa@yandex.ru
Скажите продавцу, что вы нашли объявление на 156.ru
1
/
3
9 161 690 ₽
25
Оренбург
АН АДРЕСА
Документы готовы, быстрый выход на сделку!!!!ДоступностьСемейная ипотека 6 %, сельская ипотека 3 %
Наши дома подходят под субсидированные ипотечные программы, военной ипотекой, различными жилищными сертификатами и материнским капиталом. Все это делает покупку максимально удобной и комфортной для наших клиентов, а самое главное выгодной!
Материал стен: газоблоки
Терраса или веранда: покрыты керамогранитом
Лестница: металлический каркас
Санузел: на 1 и 2 этажах
Коммуникации: электричество, газ, отопление, канализация
Ремонт: улучшенная предчистовая отделка
Интернет и ТВ: Wi-Fi, телевидение
Парковка: парковочное место
Транспортная доступность: асфальтированная дорога, остановка общественного транспорта
Инфраструктура: магазин, аптека, детский сад, школа
Расстояние до центра города: 12 км
В подарок: территория участка огорожена забором, смонтированы въездные ворота под автомобиль и калитка с электромеханическим замком, уличное освещение, установлен почтовый ящик. Вокруг дома залита бетонная отмостка, бетонная дорожка и площадка под автомобиль, выполнено уличное освещение.
Внутренная отделка
стены оштукатурены по маякам, отшпатлеваны под обои
полы – утепленная армированная бетонная стяжка с последующим устройством наливного пола
установлена пластиковая подоконная доска, дверные и оконные откосы облагорожены
Качество
Наши дома построены из заводского газобетонного блока КОТТЕДЖ, а фасад облицован керамическим кирпичом. Установлены качественные ПВХ окна с двойным мультифункциональным стеклопакетом и надежная металлическая дверь с терморазрывом. В качестве кровельного покрытия выбрана двухслойная гибкая черепица Shinglas от компании ТЕХНОНИКОЛЬ, карниз подшит металлическими софитами, смонтирована водосточная система производства ТЕХНОНИКОЛЬ.
Инфраструктура
Поселок имеет развитую инфраструктуру, в шаговой доступности школа, детский сад, сетевые магазины, аптеки и ФАП. Поселок имеет хорошую транспортную доступность, ходит общественный транспорт. Сельская прописка и тарифы гарантируют вам экономию бюджета на обслуживание дома.
ОТ НАС: помощь в одобрении ипотеки ,полное юридическое сопровождение, помощь в продаже вашей недвижимости, работа с сертификатами.ПРОСМОТР В УДОБНОЕ ДЛЯ ВАС ВРЕМЯ, ПО ПРЕДВАРИТЕЛЬНОЙ ДОГОВОРЕННОСТИ!
ID объекта в нашей базе: 1537
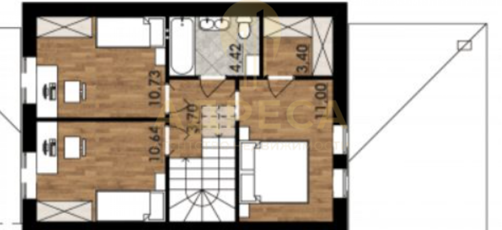
Адрес
Этажность
Площадь
Россия, Оренбургская обл, Оренбург, 41 а
2
102
ID объявления
Обновлено
Создано
Действительно до
796410
2025-12-22 05:44:55
2025-12-22 05:44:55
2026-03-22 05:44:55
2 600 000 ₽
2-комн. квартира
Оренбургская обл, г Новотроицк, ул Советская, д 117

1 990 000 ₽
2-комн. квартира
Оренбургская обл, г Новотроицк, ул Мира, д 12

3 899 000 ₽
Дом
Россия, Оренбургская обл, Оренбург, г.Оренбург, Бургаз, 225

4 580 000 ₽
1-комн. квартира
Россия, Оренбургская обл, Оренбург, пер. Слесарный

1 590 000 ₽
2-комн. квартира
Оренбургская обл, г Новотроицк, ул Железнодорожная, д 87

2 000 000 ₽
Сад

4 300 000 ₽
Дом
Россия, Оренбургская обл, Оренбург, Оренбургский р-н, Экспериментальный сельсовет, Коттеджный поселок в СНТ Южное, ул. Липовая

2 489 000 ₽
2-комн. квартира
Оренбургская обл, г Новотроицк, ул Комарова, д 3

2 100 000 ₽
3-комн. квартира
Оренбургская обл, г Новотроицк, ул Зеленая, д 43

3 299 999 ₽
Дом
Россия, Оренбургская обл, Красный Коммунар, ул. Первомайская,5

1 790 000 ₽
1-комн. квартира

6 000 000 ₽
Помещение

1 850 000 ₽
Дом
Россия, Оренбургская обл, Оренбург, ул. Фрунзе,40

4 650 000 ₽
1-комн. квартира
Россия, Оренбургская обл, Оренбург, пер. Слесарный,7

2 100 000 ₽
2-комн. квартира
Оренбургская обл, г Новотроицк, ул Советская, д 125

300 000 ₽
Земельный участок
Оренбургская обл, г Гай, ул Руденко, д 53

3 150 000 ₽
4-комн. квартира

4 799 000 ₽
Дом
Россия, Оренбургская обл, Оренбург, СНТ Авиатор-2, ул. 1-я линия

4 400 000 ₽
3-комн. квартира
Оренбургская обл, г Новотроицк, ул Советская, д 97

9 300 000 ₽
Дом
Россия, Оренбургская обл, Подгородняя Покровка, Российская Федерация, Оренбургская область, муниципальный район Оренбургский, сельское поселение Подгородне-Покровский сельсовет, село Подгородняя Покровка, улица Базовая, дом 6

4 580 000 ₽
1-комн. квартира
Россия, Оренбургская обл, Оренбург, пер.Слесарный 7

4 100 000 ₽
3-комн. квартира

1 650 000 ₽
Земельный участок
Россия, Оренбургская обл, Оренбург, СНТ "Заря", ул.Яблоневая, 29

6 100 000 ₽
Дом
Россия, Оренбургская обл, Зауральный, ул. Мирная,5