АН АДРЕСА
Hohlova-adresa@yandex.ru
Скажите продавцу, что вы нашли объявление на 156.ru
1
/
3
8 700 000 ₽
10
Подгородняя Покровка
АН АДРЕСА
Семейная ипотека 6%
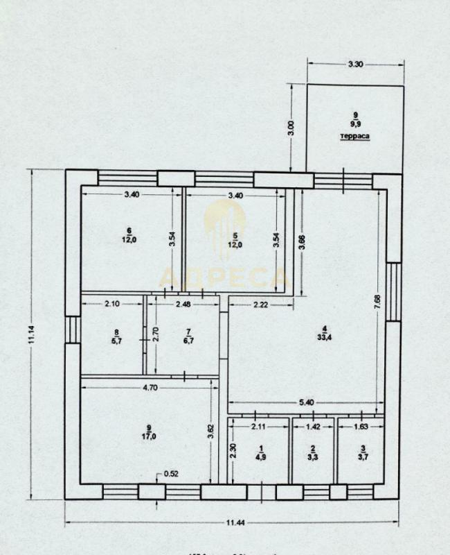
Ипотека под строительство Жилой дом 129 кв.м. Подгородняя Покровка Планировка продумана до мелочей.
-Кухня гостиная 33,4 кв.м. с выходом на террасу; -Два санузла, отдельная котельная; - Три изолированные комнаты 12 кв.м, 12 кв. м., 17 кв. м; О доме: - фундамент свайно-ростверковый; -крыша: металлочерепица; -материал стен: керамзитоблок; -терасса залита;- входная дверь с терморазрывом.Инфраструктура: - в шаговой доступности школа и детский сад; -магазины;-автошкола;-Оренбургский аграрный колледж; -Асфальтированные дороги; -Удобный выезд из поселка.Альтернативные направления: Ленина, Заречье, Соловьи, Марьино, Нежинка, Ростоши, Пригородный, Ивановка, Приуралье
ID объекта в нашей базе: 1579
Тип недвижимости
Адрес
Этажность
Площадь
Дом
Россия, Оренбургская обл, Подгородняя Покровка, ул. Российская,44
1
129
ID объявления
Обновлено
Создано
Действительно до
793145
2025-12-17 05:51:32
2025-12-17 05:51:32
2026-03-17 05:51:32

1 870 000 ₽
2-комн. квартира
Оренбургская обл, г Новотроицк, ул Зеленая, д 55а

1 099 000 ₽
Дом
Россия, Оренбургская обл, Родничный Дол, ул. Набережная,1

4 610 000 ₽
1-комн. квартира
Россия, Оренбургская обл, Оренбург, пер. Слесарный,7

550 000 ₽
Земельный участок
Россия, Оренбургская обл, Орск, пр-кт. Западный,61

2 050 000 ₽
2-комн. квартира
Оренбургская обл, г Новотроицк, ул Марии Корецкой, д 24

4 600 000 ₽
3-комн. квартира
Оренбургская обл, г Орск, ул Андреева, д 7

5 900 000 ₽
Дом

1 500 000 ₽
2-комн. квартира
Оренбургская обл, г Новотроицк, ул Уральская, д 13

1 900 000 ₽
2-комн. квартира
Юных Ленинцев, 10

2 500 000 ₽
2-комн. квартира
Оренбургская обл, г Гай, ул Спортивная, д 5

2 299 999 ₽
Дом
Россия, Оренбургская обл, Украинка, ул. Пролетарская,1Б

1 980 000 ₽
2-комн. квартира
Оренбургская обл, г Новотроицк, ул Ломоносова, д 24

5 200 000 ₽
Дом
Россия, Оренбургская обл, Оренбург, г.Оренбург, СНТ Авиатор-2, ул. 1-я Линия, уч.430

7 100 000 ₽
Дом
Россия, Оренбургская обл, Оренбург, Оренбургский район, пос. Приютово, ул Детская

2 489 000 ₽
2-комн. квартира
Оренбургская обл, г Новотроицк, ул Комарова, д 3

1 200 000 ₽
Комната
Россия, Оренбургская обл, Орск, Ул. Братская д. 52А

6 999 965 ₽
Дом
Россия, Оренбургская обл, Благословенка, пер. Аптекарский, null

9 500 000 ₽
Помещение

4 610 000 ₽
2-комн. квартира
Россия, Оренбургская обл, Оренбург, пер. Неплюева,2

1 250 000 ₽
Земельный участок

650 000 ₽
Комната
Россия, Оренбургская обл, Орск, 4 микрорайон дом 1

2 800 000 ₽
1-комн. квартира

4 500 000 ₽
3-комн. квартира
Оренбургская обл, г Новотроицк, ул Марии Корецкой, д 15А

1 600 000 ₽
1-комн. квартира
Оренбургская обл, г Новотроицк, ул Зеленая, д 24