АН АДРЕСА
a.borisova-adresa@yandex.ru
Скажите продавцу, что вы нашли объявление на 156.ru
1
/
3
9 161 690 ₽
8
Оренбург
АН АДРЕСА
Документы готовы, быстрый выход на сделку!!!!ДоступностьСемейная ипотека 6 %, сельская ипотека 3 %
Наши дома подходят под субсидированные ипотечные программы, военной ипотекой, различными жилищными сертификатами и материнским капиталом. Все это делает покупку максимально удобной и комфортной для наших клиентов, а самое главное выгодной!
Материал стен: газоблоки
Терраса или веранда: покрыты керамогранитом
Лестница: металлический каркас
Санузел: на 1 и 2 этажах
Коммуникации: электричество, газ, отопление, канализация
Ремонт: улучшенная предчистовая отделка
Интернет и ТВ: Wi-Fi, телевидение
Парковка: парковочное место
Транспортная доступность: асфальтированная дорога, остановка общественного транспорта
Инфраструктура: магазин, аптека, детский сад, школа
Расстояние до центра города: 12 км
В подарок: территория участка огорожена забором, смонтированы въездные ворота под автомобиль и калитка с электромеханическим замком, уличное освещение, установлен почтовый ящик. Вокруг дома залита бетонная отмостка, бетонная дорожка и площадка под автомобиль, выполнено уличное освещение.
Внутренная отделка
стены оштукатурены по маякам, отшпатлеваны под обои
полы – утепленная армированная бетонная стяжка с последующим устройством наливного пола
установлена пластиковая подоконная доска, дверные и оконные откосы облагорожены
Качество
Наши дома построены из заводского газобетонного блока КОТТЕДЖ, а фасад облицован керамическим кирпичом. Установлены качественные ПВХ окна с двойным мультифункциональным стеклопакетом и надежная металлическая дверь с терморазрывом. В качестве кровельного покрытия выбрана двухслойная гибкая черепица Shinglas от компании ТЕХНОНИКОЛЬ, карниз подшит металлическими софитами, смонтирована водосточная система производства ТЕХНОНИКОЛЬ.
Инфраструктура
Поселок имеет развитую инфраструктуру, в шаговой доступности школа, детский сад, сетевые магазины, аптеки и ФАП. Поселок имеет хорошую транспортную доступность, ходит общественный транспорт. Сельская прописка и тарифы гарантируют вам экономию бюджета на обслуживание дома.
ОТ НАС: помощь в одобрении ипотеки ,полное юридическое сопровождение, помощь в продаже вашей недвижимости, работа с сертификатами.ПРОСМОТР В УДОБНОЕ ДЛЯ ВАС ВРЕМЯ, ПО ПРЕДВАРИТЕЛЬНОЙ ДОГОВОРЕННОСТИ!
ID объекта в нашей базе: 1537
Адрес
Этажность
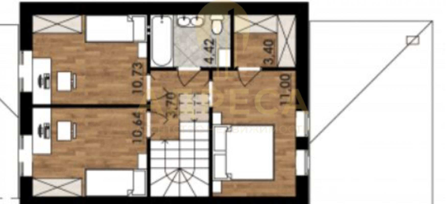
Площадь
Россия, Оренбургская обл, Оренбург, 41 а
2
102
ID объявления
Обновлено
Создано
Действительно до
793130
2025-12-17 05:47:34
2025-12-17 05:47:34
2026-03-17 05:47:34

1 750 000 ₽
2-комн. квартира
Оренбургская обл, г Гай, ул Пионерская, д 8, кв 6

2 100 000 ₽
2-комн. квартира
город Новотроицк, улица Советская 106

8 699 000 ₽
Дом
Россия, Оренбургская обл, Оренбург, ул. Чебеньковская,24

6 900 000 ₽
Дом
Оренбургская обл, г Новотроицк, село Хабарное, ул Молодежная

2 350 000 ₽
2-комн. квартира
Оренбургская обл, г Новотроицк, ул Марии Корецкой, д 24

350 000 ₽
Гараж

2 200 000 ₽
2-комн. квартира
Россия, Оренбургская обл, Орск, пер. Нежинский,3а
договорная
1-комн. квартира
Оренбургская обл, г Гай, мкр 8-й

1 400 000 ₽
1-комн. квартира
Оренбургская обл, г Новотроицк, ул Советская, д 102

5 000 000 ₽
Дом

4 200 000 ₽
3-комн. квартира
Оренбургская обл, г Новотроицк, ул Советская, д 121

2 500 000 ₽
4-комн. квартира
Оренбургская обл, г Гай, ул Челябинская, д 124

1 700 000 ₽
2-комн. квартира
Оренбургская обл, г Новотроицк, ул Зеленая, д 57А

5 999 000 ₽
3-комн. квартира
Россия, Оренбургская обл, Оренбург, ул. Дружбы,11/2

1 650 000 ₽
Дом
Россия, Оренбургская обл, Оренбург, ул. Береговая 6-я,9

2 200 000 ₽
Дом
Россия, Оренбургская обл, Орск, ул. Подгорная,37

1 800 000 ₽
1-комн. квартира
Россия, Оренбургская обл, Орск, пер. Нежинский,13

2 100 000 ₽
1-комн. квартира

1 600 000 ₽
1-комн. квартира
Оренбургская обл, г Новотроицк, ул Винокурова, д 12

30 000 000 ₽
Помещение

3 666 000 ₽
1-комн. квартира
Россия, Оренбургская обл, Оренбург, ул. Просторная

1 880 000 ₽
2-комн. квартира
Оренбургская обл, г Новотроицк, ул Марии Корецкой, д 17

12 500 000 ₽
Дом

8 900 000 ₽
Помещение