АН АДРЕСА
anufriev-adresa@yandex.ru
Скажите продавцу, что вы нашли объявление на 156.ru
1
/
3
7 870 000 ₽
9
Оренбург
АН АДРЕСА
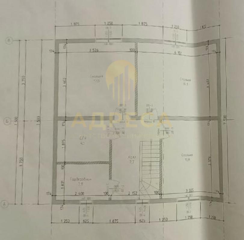
Продается дом в ЭЛИТНОЙ части поселка Кушкуль, по адресу: улица Земская 19.Площадь дома 104 м.кв.Площадь участка 10сот.Газоснабжение: центральное.Водоснабжение: скважина 14м, в доме (есть возможность подключения к центральному)Водоотведение: локальное 4кольца по 1,5м (есть возможность подключения к центральному)Материалы постройки: СИП-панели короед.Фундамент: сваи.Электрика вся по госту, доступ ко всем коробкам.Также максимально доступ ко всем коммуникациям водоотвода.Отопление газ.Состояние ремонта на фото, но лучше посмотреть в живую.Инфраструктура: Школа № 21,так-же имеются сетевые магазины.Возникли вопросы звоните, отвечу.Обременений нет.Просмотр по договоренности в удобное время.
✅ Предоставление консультаций по вопросам, связанным с покупкой недвижимости, в том числе с использованием кредитных средств, жилищных сертификатов, материнского (семейного) капитала.
✅ Помощь в формировании пакета документов (для каждого объекта индивидуально), необходимых для оформления сделки купли-продажи.
✅ Подбор индивидуальной программы кредитования, согласование в банках ипотечной заявки и объекта, на наиболее выгодных для заемщика условиях.
✅ ЭКСКЛЮЗИВНО: ипотека без справок и подтверждения дохода; одобрение ипотеки при отсутствии первоначального взноса (трейд-ин); доступна опция понижения ставки по ипотеке, применение скидки от нашего агентства; проведение сделки дистанционно.
✅ Наш офис ул. Восточная 42/3 АН АДРЕСА
ID объекта в нашей базе: 1114
Тип недвижимости
Адрес
Этажность
Площадь
Дом
Россия, Оренбургская обл, Оренбург, Земская 19
2
104
ID объявления
Обновлено
Создано
Действительно до
789674
2025-12-12 05:25:20
2025-12-12 05:25:20
2026-03-12 05:25:20

370 000 ₽
Комната
Россия, Оренбургская обл, Орск, Станиславского 71а

1 050 000 ₽
1-комн. квартира
Оренбургская обл, г Новотроицк, ул Советская, д 57

1 300 000 ₽
1-комн. квартира
Оренбургская обл, г Новотроицк, ул Железнодорожная, д 65

2 350 000 ₽
2-комн. квартира
Оренбургская обл, г Новотроицк, ул Марии Корецкой, д 24
1 500 000 ₽
2-комн. квартира
Оренбургская обл, г Новотроицк, ул Железнодорожная, д 57

1 ₽
Помещение

5 ₽
Сад

1 750 000 ₽
2-комн. квартира
Россия, Оренбургская обл, Орск, ул. Орская,8

1 200 000 ₽
1-комн. квартира
Оренбургская обл, г Новотроицк, ул Комарова, д 4
300 000 ₽
Земельный участок
Россия, Оренбургская обл, Орск, Новоказачий

1 800 000 ₽
1-комн. квартира
Оренбургская обл, г Орск, ул Давыдова, д 1, кв 34

1 550 000 ₽
1-комн. квартира
Оренбургская обл, г Новотроицк, ул Уральская, д 39

1 350 000 ₽
Дом
Россия, Оренбургская обл, Оренбург, посёлок Подмаячный, улица Квартал № 20, 139

1 600 000 ₽
1-комн. квартира
Оренбургская обл, г Новотроицк, ул Винокурова, д 12

2 850 000 ₽
3-комн. квартира
Оренбургская обл, г Новотроицк, ул Уральская, д 24

3 600 000 ₽
3-комн. квартира
Оренбургская обл, г Новотроицк, ул Уральская, д 26

10 300 000 ₽
Дом
Россия, Оренбургская обл, Оренбург, п. Весенний, ул. Агатовая, д. 10
900 000 ₽
Сад
2 680 000 ₽
2-комн. квартира
Оренбургская обл, г Новотроицк, ул Ситкина, д 13

14 900 000 ₽
Дом

1 870 000 ₽
2-комн. квартира
Оренбургская обл, г Новотроицк, ул Зеленая, д 55а

1 800 000 ₽
1-комн. квартира
Россия, Оренбургская обл, Оренбург, ул. Карагандинская,52

2 299 999 ₽
Дом
Россия, Оренбургская обл, Украинка, ул. Пролетарская,1Б

1 600 000 ₽
2-комн. квартира
Оренбургская обл, г Гай, ул Советская, д 12А