АН АДРЕСА
Hohlova-adresa@yandex.ru
Скажите продавцу, что вы нашли объявление на 156.ru
1
/
3
8 700 000 ₽
6
Подгородняя Покровка
АН АДРЕСА
Семейная ипотека 6%
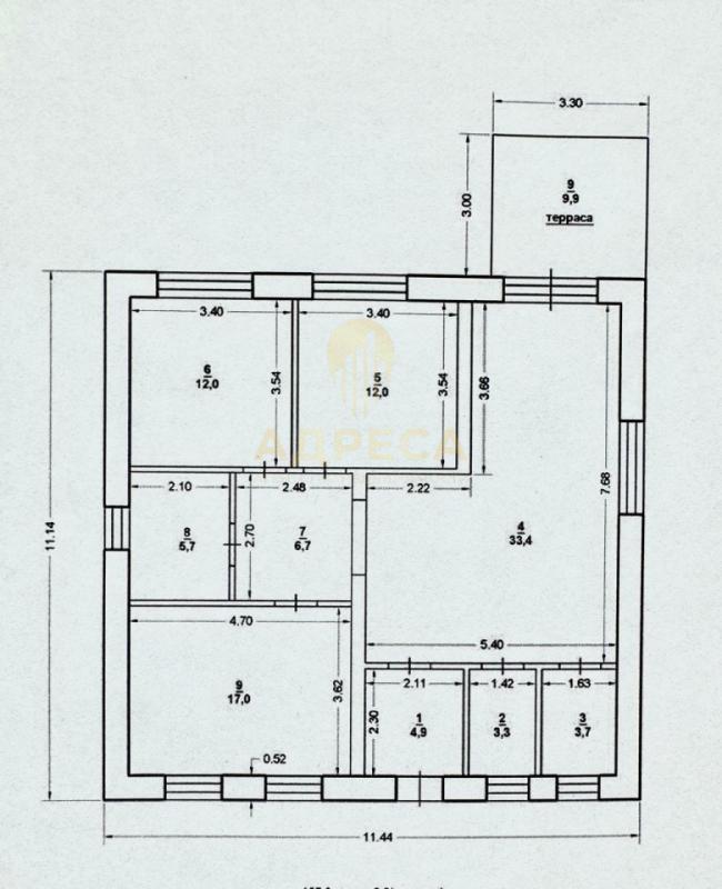
Ипотека под строительство Жилой дом 129 кв.м. Подгородняя Покровка Планировка продумана до мелочей.
-Кухня гостиная 33,4 кв.м. с выходом на террасу; -Два санузла, отдельная котельная; - Три изолированные комнаты 12 кв.м, 12 кв. м., 17 кв. м; О доме: - фундамент свайно-ростверковый; -крыша: металлочерепица; -материал стен: керамзитоблок; -терасса залита;- входная дверь с терморазрывом.Инфраструктура: - в шаговой доступности школа и детский сад; -магазины;-автошкола;-Оренбургский аграрный колледж; -Асфальтированные дороги; -Удобный выезд из поселка.Альтернативные направления: Ленина, Заречье, Соловьи, Марьино, Нежинка, Ростоши, Пригородный, Ивановка, Приуралье
ID объекта в нашей базе: 1579
Тип недвижимости
Адрес
Этажность
Площадь
Дом
Россия, Оренбургская обл, Подгородняя Покровка, ул. Российская,44
1
129
ID объявления
Обновлено
Создано
Действительно до
788474
2025-12-10 05:53:20
2025-12-10 05:53:20
2026-03-10 05:53:20
170 000 ₽
Комната
Оренбургская обл, г Новотроицк, ул Мира, д 17

6 990 000 ₽
2-комн. квартира
Россия, Оренбургская обл, Оренбург, ул. Поляничко,12

2 100 000 ₽
1-комн. квартира

1 580 000 ₽
1-комн. квартира
Оренбургская обл, г Новотроицк, ул Орская, д 15

3 650 000 ₽
3-комн. квартира
Россия, Оренбургская обл, Орск, ул. Новосибирская,18

2 050 000 ₽
3-комн. квартира

2 630 000 ₽
2-комн. квартира
Оренбургская обл, г Новотроицк, ул Уральская, д 32

3 100 000 ₽
4-комн. квартира
Россия, Оренбургская обл, Краснохолм, ул. Строителей 1

1 800 000 ₽
2-комн. квартира
Оренбургская обл, г Новотроицк, ул Гагарина, д 5А

5 950 000 ₽
Дом
Россия, Оренбургская обл, Оренбург, 12

165 000 ₽
Гараж
Оренбургская обл, г Новотроицк

3 990 000 ₽
1-комн. квартира
Россия, Оренбургская обл, Оренбург, ул. Народная,36

2 850 000 ₽
3-комн. квартира
Оренбургская обл, г Новотроицк, ул Уральская, д 24

1 850 000 ₽
2-комн. квартира
Россия, Оренбургская обл, Сакмара, ул. Степная,4

1 600 000 ₽
2-комн. квартира
Оренбургская обл, г Новотроицк, ул Суворова, д 7

9 000 000 ₽
Дом

5 000 000 ₽
Дом
Россия, Оренбургская обл, Оренбург, ул. Ярославская

1 700 000 ₽
2-комн. квартира
Оренбургская обл, г Новотроицк, ул Библиотечная, д 2А

1 875 000 ₽
2-комн. квартира
Оренбургская обл, г Новотроицк, ул Библиотечная, д 2А
11 000 000 ₽
Земельный участок
Оренбургская обл, г Новотроицк, ул Советская

6 999 965 ₽
Дом
Россия, Оренбургская обл, Благословенка, пер. Аптекарский, null

1 000 000 ₽
Земельный участок
1 ₽
1-комн. квартира
Оренбургская обл, г Новотроицк, ул Зеленая, д 17

4 800 000 ₽
3-комн. квартира