АН АДРЕСА
a.borisova-adresa@yandex.ru
Скажите продавцу, что вы нашли объявление на 156.ru
1
/
3
9 161 690 ₽
18
Оренбург
АН АДРЕСА
Документы готовы, быстрый выход на сделку!!!!ДоступностьСемейная ипотека 6 %, сельская ипотека 3 %
Наши дома подходят под субсидированные ипотечные программы, военной ипотекой, различными жилищными сертификатами и материнским капиталом. Все это делает покупку максимально удобной и комфортной для наших клиентов, а самое главное выгодной!
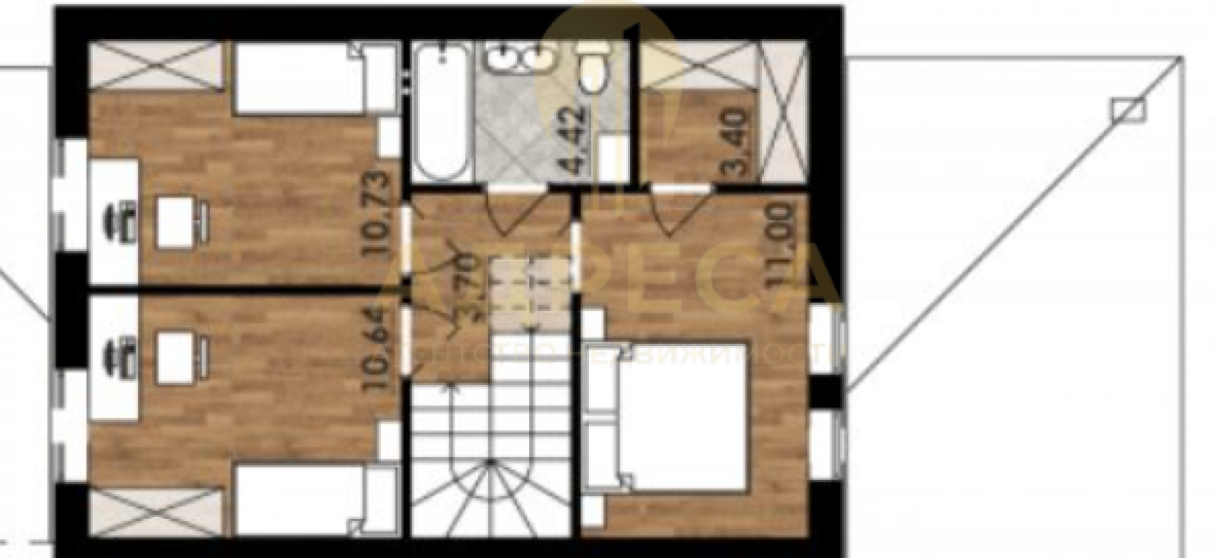
Материал стен: газоблоки
Терраса или веранда: покрыты керамогранитом
Лестница: металлический каркас
Санузел: на 1 и 2 этажах
Коммуникации: электричество, газ, отопление, канализация
Ремонт: улучшенная предчистовая отделка
Интернет и ТВ: Wi-Fi, телевидение
Парковка: парковочное место
Транспортная доступность: асфальтированная дорога, остановка общественного транспорта
Инфраструктура: магазин, аптека, детский сад, школа
Расстояние до центра города: 12 км
В подарок: территория участка огорожена забором, смонтированы въездные ворота под автомобиль и калитка с электромеханическим замком, уличное освещение, установлен почтовый ящик. Вокруг дома залита бетонная отмостка, бетонная дорожка и площадка под автомобиль, выполнено уличное освещение.
Внутренная отделка
стены оштукатурены по маякам, отшпатлеваны под обои
полы – утепленная армированная бетонная стяжка с последующим устройством наливного пола
установлена пластиковая подоконная доска, дверные и оконные откосы облагорожены
Качество
Наши дома построены из заводского газобетонного блока КОТТЕДЖ, а фасад облицован керамическим кирпичом. Установлены качественные ПВХ окна с двойным мультифункциональным стеклопакетом и надежная металлическая дверь с терморазрывом. В качестве кровельного покрытия выбрана двухслойная гибкая черепица Shinglas от компании ТЕХНОНИКОЛЬ, карниз подшит металлическими софитами, смонтирована водосточная система производства ТЕХНОНИКОЛЬ.
Инфраструктура
Поселок имеет развитую инфраструктуру, в шаговой доступности школа, детский сад, сетевые магазины, аптеки и ФАП. Поселок имеет хорошую транспортную доступность, ходит общественный транспорт. Сельская прописка и тарифы гарантируют вам экономию бюджета на обслуживание дома.
ОТ НАС: помощь в одобрении ипотеки ,полное юридическое сопровождение, помощь в продаже вашей недвижимости, работа с сертификатами.ПРОСМОТР В УДОБНОЕ ДЛЯ ВАС ВРЕМЯ, ПО ПРЕДВАРИТЕЛЬНОЙ ДОГОВОРЕННОСТИ!
ID объекта в нашей базе: 1537
Адрес
Этажность
Площадь
Россия, Оренбургская обл, Оренбург, 41 а
2
102
ID объявления
Обновлено
Создано
Действительно до
788459
2025-12-10 05:49:28
2025-12-10 05:49:28
2026-03-10 05:49:28

750 000 ₽
Земельный участок
Россия, Оренбургская обл, Казачий, ул. Горная, уч.8 стр.А

2 990 000 ₽
2-комн. квартира
Оренбургская обл, г Гай, ул Ленина, д 56

580 000 ₽
Сад

3 500 000 ₽
3-комн. квартира
Оренбургская обл, г Новотроицк, ул Юных Ленинцев, д 9

2 649 000 ₽
1-комн. квартира
Россия, Оренбургская обл, Оренбург, ул. Лабужского,10
2 000 000 ₽
2-комн. квартира
Оренбургская обл, г Орск

6 150 000 ₽
Дом
Россия, Оренбургская обл, Оренбург, Подгородняя Покровка, ул. Яблоневая, д 300

4 600 000 ₽
1-комн. квартира
Россия, Оренбургская обл, Оренбург, ул. Карпова,3/1

3 000 000 ₽
Дом

2 470 000 ₽
3-комн. квартира
Оренбургская обл, г Новотроицк, ул Юных Ленинцев, д 14

1 600 000 ₽
2-комн. квартира
Оренбургская обл, г Новотроицк, ул Суворова, д 7

2 600 000 ₽
2-комн. квартира

2 750 000 ₽
Дом
Россия, Оренбургская обл, Сакмара, ул. Луговая,3

1 150 000 ₽
1-комн. квартира
Оренбургская обл, г Гай, ул Октябрьская, д 58

1 050 000 ₽
1-комн. квартира
Оренбургская обл, г Новотроицк, ул Губина, д 10

3 699 000 ₽
Дом
Россия, Оренбургская обл, Оренбург, Оренбургская обл., г.Оренбург, мкр. поселок Кушкуль, ул.Цветочная , дом 11А

950 000 ₽
1-комн. квартира
Оренбургская обл, г Новотроицк, ул Фрунзе, д 22

4 000 000 ₽
3-комн. квартира

1 940 000 ₽
1-комн. квартира
Россия, Оренбургская обл, Орск, ул. Давыдова,3

5 499 000 ₽
Дом
Россия, Оренбургская обл, Оренбург, с. Нежинка, СНТ "Маяк", 13 линия

1 560 000 ₽
1-комн. квартира
Оренбургская обл, г Новотроицк, ул Советская, д 102

1 600 000 ₽
2-комн. квартира
Оренбургская обл, г Гай, ул Советская, д 12А

9 300 000 ₽
Дом
Россия, Оренбургская обл, Подгородняя Покровка, Российская Федерация, Оренбургская область, муниципальный район Оренбургский, сельское поселение Подгородне-Покровский сельсовет, село Подгородняя Покровка, улица Базовая, дом 6

1 560 000 ₽
2-комн. квартира
Оренбургская обл, г Новотроицк, ул Железнодорожная, д 59А