АН АДРЕСА
a.borisova-adresa@yandex.ru
Скажите продавцу, что вы нашли объявление на 156.ru
1
/
3
9 161 690 ₽
14
Оренбург
АН АДРЕСА
Документы готовы, быстрый выход на сделку!!!!ДоступностьСемейная ипотека 6 %, сельская ипотека 3 %
Наши дома подходят под субсидированные ипотечные программы, военной ипотекой, различными жилищными сертификатами и материнским капиталом. Все это делает покупку максимально удобной и комфортной для наших клиентов, а самое главное выгодной!
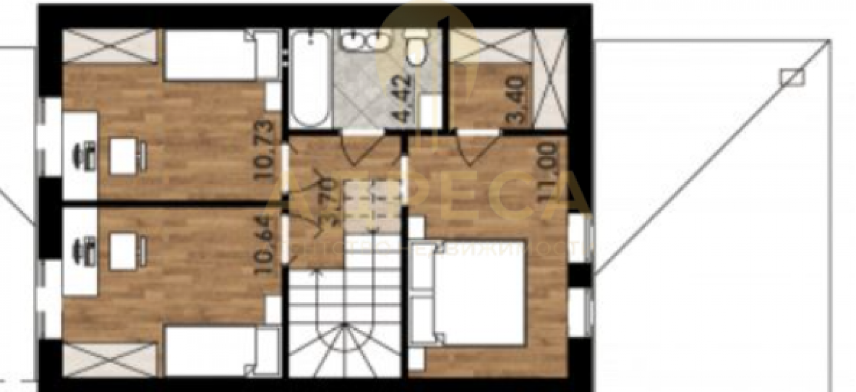
Материал стен: газоблоки
Терраса или веранда: покрыты керамогранитом
Лестница: металлический каркас
Санузел: на 1 и 2 этажах
Коммуникации: электричество, газ, отопление, канализация
Ремонт: улучшенная предчистовая отделка
Интернет и ТВ: Wi-Fi, телевидение
Парковка: парковочное место
Транспортная доступность: асфальтированная дорога, остановка общественного транспорта
Инфраструктура: магазин, аптека, детский сад, школа
Расстояние до центра города: 12 км
В подарок: территория участка огорожена забором, смонтированы въездные ворота под автомобиль и калитка с электромеханическим замком, уличное освещение, установлен почтовый ящик. Вокруг дома залита бетонная отмостка, бетонная дорожка и площадка под автомобиль, выполнено уличное освещение.
Внутренная отделка
стены оштукатурены по маякам, отшпатлеваны под обои
полы – утепленная армированная бетонная стяжка с последующим устройством наливного пола
установлена пластиковая подоконная доска, дверные и оконные откосы облагорожены
Качество
Наши дома построены из заводского газобетонного блока КОТТЕДЖ, а фасад облицован керамическим кирпичом. Установлены качественные ПВХ окна с двойным мультифункциональным стеклопакетом и надежная металлическая дверь с терморазрывом. В качестве кровельного покрытия выбрана двухслойная гибкая черепица Shinglas от компании ТЕХНОНИКОЛЬ, карниз подшит металлическими софитами, смонтирована водосточная система производства ТЕХНОНИКОЛЬ.
Инфраструктура
Поселок имеет развитую инфраструктуру, в шаговой доступности школа, детский сад, сетевые магазины, аптеки и ФАП. Поселок имеет хорошую транспортную доступность, ходит общественный транспорт. Сельская прописка и тарифы гарантируют вам экономию бюджета на обслуживание дома.
ОТ НАС: помощь в одобрении ипотеки ,полное юридическое сопровождение, помощь в продаже вашей недвижимости, работа с сертификатами.ПРОСМОТР В УДОБНОЕ ДЛЯ ВАС ВРЕМЯ, ПО ПРЕДВАРИТЕЛЬНОЙ ДОГОВОРЕННОСТИ!
ID объекта в нашей базе: 1537
Адрес
Этажность
Площадь
Россия, Оренбургская обл, Оренбург, 41 а
2
102
ID объявления
Обновлено
Создано
Действительно до
787757
2025-12-09 05:48:39
2025-12-09 05:48:39
2026-03-09 05:48:39

250 000 ₽
Дом
Россия, Оренбургская обл, Оренбург, ул. 13 Линия,105

3 100 000 ₽
3-комн. квартира
1 280 000 ₽
1-комн. квартира
Оренбургская обл, г Новотроицк, ул Советская, д 74
1 600 000 ₽
2-комн. квартира
Оренбургская обл, г Новотроицк, Химиков пер, д 4
1 900 000 ₽
1-комн. квартира
Оренбургская обл, г Новотроицк, ул Уральская, д 32

6 000 000 ₽
3-комн. квартира
Россия, Оренбургская обл, Оренбург, ул. Юркина,2

1 140 000 ₽
Земельный участок
Россия, Оренбургская обл, Орск, ул. В.Сарычева,7

20 000 000 ₽
Дом
Россия, Оренбургская обл, Приютово, ул. Полевая

5 199 000 ₽
Дом
Россия, Оренбургская обл, Оренбург, Экспериментальный сельсовет, СНТ "Южное", ул. Ясеневая

1 350 000 ₽
1-комн. квартира
Оренбургская обл, г Новотроицк, ул Советская, д 116

2 650 000 ₽
3-комн. квартира
2 500 000 ₽
3-комн. квартира
Оренбургская обл, г Новотроицк, ул Винокурова, д 12

2 200 000 ₽
Дом
Россия, Оренбургская обл, Орск, пер. 1-й Узкий

3 465 000 ₽
1-комн. квартира
Россия, Оренбургская обл, Орск, ул. Краматорская,48

4 200 000 ₽
3-комн. квартира
Россия, Оренбургская обл, Орск, пер. Театральный,1

6 200 000 ₽
Дом
Россия, Оренбургская обл, Оренбург, ул. Луговая

2 300 000 ₽
Помещение
Оренбургская обл, г Орск, ул Железнодорожная, д 75

1 200 000 ₽
Комната
Россия, Оренбургская обл, Оренбург, ул. Элеваторная,9

3 700 000 ₽
3-комн. квартира

15 000 000 ₽
Дом
Россия, Оренбургская обл, Оренбург, Земская 15

4 699 000 ₽
3-комн. квартира
Россия, Оренбургская обл, Оренбург, ул. Дружбы,3/4

3 100 000 ₽
Дом
Новотроицк Рудницкого

3 000 000 ₽
Помещение
Россия, Оренбургская обл, Орск, ул. Шелухина,13

2 000 000 ₽
1-комн. квартира
Россия, Оренбургская обл, Орск, проезд. Металлургов,15