АН АДРЕСА
Hohlova-adresa@yandex.ru
Скажите продавцу, что вы нашли объявление на 156.ru
1
/
3
8 700 000 ₽
6
Подгородняя Покровка
АН АДРЕСА
Семейная ипотека 6%
Ипотека под строительство Жилой дом 129 кв.м. Подгородняя Покровка Планировка продумана до мелочей.
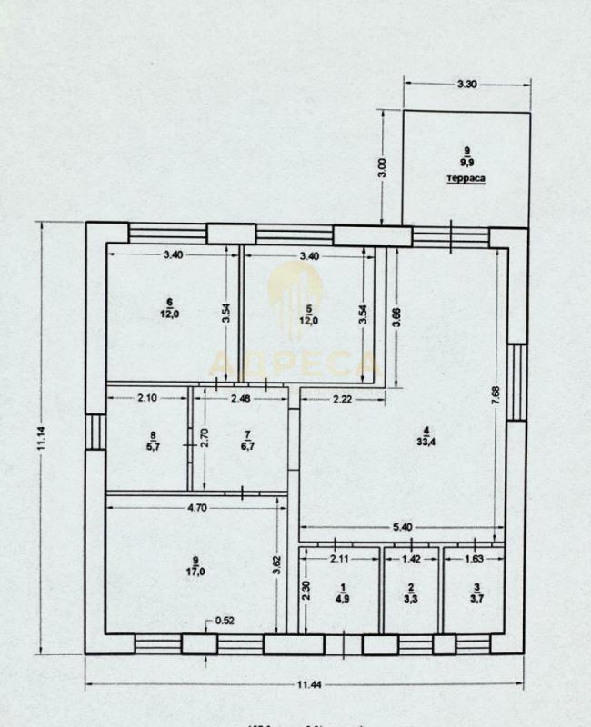
-Кухня гостиная 33,4 кв.м. с выходом на террасу; -Два санузла, отдельная котельная; - Три изолированные комнаты 12 кв.м, 12 кв. м., 17 кв. м; О доме: - фундамент свайно-ростверковый; -крыша: металлочерепица; -материал стен: керамзитоблок; -терасса залита;- входная дверь с терморазрывом.Инфраструктура: - в шаговой доступности школа и детский сад; -магазины;-автошкола;-Оренбургский аграрный колледж; -Асфальтированные дороги; -Удобный выезд из поселка.Альтернативные направления: Ленина, Заречье, Соловьи, Марьино, Нежинка, Ростоши, Пригородный, Ивановка, Приуралье
ID объекта в нашей базе: 1579
Тип недвижимости
Адрес
Этажность
Площадь
Дом
Россия, Оренбургская обл, Подгородняя Покровка, ул. Российская,44
1
129
ID объявления
Обновлено
Создано
Действительно до
786435
2025-12-07 05:52:29
2025-12-07 05:52:29
2026-03-07 05:52:29

8 500 000 ₽
Дом
Россия, Оренбургская обл, Ивановка, ул. Новороссийская, 19

1 950 000 ₽
2-комн. квартира
г Гай, ул Ленина, 42А
9 000 000 ₽
1-комн. квартира
г Москва, ул Декабристов
300 000 ₽
Земельный участок
Оренбургская обл, г Новотроицк, село Хабарное

2 700 000 ₽
2-комн. квартира
Россия, Оренбургская обл, Орск, пр-кт. Ленина,90

5 450 000 ₽
Дом
Россия, Оренбургская обл, Орск, В.Буканова 29

5 600 000 ₽
2-комн. квартира
Россия, Оренбургская обл, Орск, ул. Краматорская,48

4 300 000 ₽
Дом
Россия, Оренбургская обл, Оренбург, Оренбургский р-н, Экспериментальный сельсовет, Коттеджный поселок в СНТ Южное, ул. Липовая

5 000 000 ₽
Дом
Россия, Оренбургская обл, Оренбург, ул. Ярославская

3 600 000 ₽
3-комн. квартира
Оренбургская обл, г Новотроицк, ул Мира, д 4

2 000 000 ₽
2-комн. квартира
город Новотроицк ул. Железнодорожная дом 69

2 500 000 ₽
2-комн. квартира

11 990 000 ₽
Дом
Россия, Оренбургская обл, Оренбург, с.Подгородняя Покровка, ул.Российская

3 400 000 ₽
3-комн. квартира
Россия, Оренбургская обл, Орск, ул. Братская,56 А

5 000 000 ₽
3-комн. квартира

2 450 000 ₽
2-комн. квартира

2 700 000 ₽
Дом
Россия, Оренбургская обл, Ударник, Орская д 5

1 350 000 ₽
1-комн. квартира
Оренбургская обл, г Новотроицк, ул Зеленая, д 59

800 000 ₽
Сад

1 050 000 ₽
1-комн. квартира
Оренбургская обл, г Новотроицк, ул Губина, д 10

2 300 000 ₽
2-комн. квартира
Оренбургская обл, г Новотроицк, ул Советская, д 158

1 490 000 ₽
2-комн. квартира
Оренбургская обл, г Новотроицк, ул Суворова, д 7

7 500 000 ₽
Дом
Россия, Оренбургская обл, Оренбург, Array

12 000 000 ₽
3-комн. квартира
Россия, Оренбургская обл, Оренбург, ул. Цвиллинга,68