АН АДРЕСА
Hohlova-adresa@yandex.ru
Скажите продавцу, что вы нашли объявление на 156.ru
1
/
3
8 700 000 ₽
6
Подгородняя Покровка
АН АДРЕСА
Семейная ипотека 6%
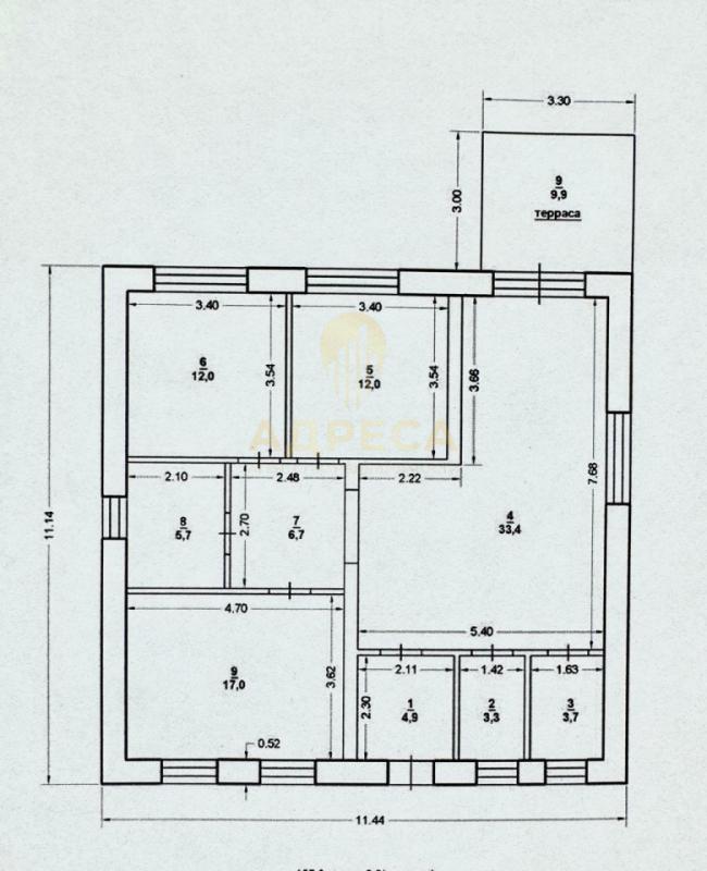
Ипотека под строительство Жилой дом 129 кв.м. Подгородняя Покровка Планировка продумана до мелочей.
-Кухня гостиная 33,4 кв.м. с выходом на террасу; -Два санузла, отдельная котельная; - Три изолированные комнаты 12 кв.м, 12 кв. м., 17 кв. м; О доме: - фундамент свайно-ростверковый; -крыша: металлочерепица; -материал стен: керамзитоблок; -терасса залита;- входная дверь с терморазрывом.Инфраструктура: - в шаговой доступности школа и детский сад; -магазины;-автошкола;-Оренбургский аграрный колледж; -Асфальтированные дороги; -Удобный выезд из поселка.Альтернативные направления: Ленина, Заречье, Соловьи, Марьино, Нежинка, Ростоши, Пригородный, Ивановка, Приуралье
ID объекта в нашей базе: 1579
Тип недвижимости
Адрес
Этажность
Площадь
Дом
Россия, Оренбургская обл, Подгородняя Покровка, ул. Российская,44
1
129
ID объявления
Обновлено
Создано
Действительно до
785740
2025-12-06 05:52:08
2025-12-06 05:52:08
2026-03-06 05:52:08

1 400 000 ₽
1-комн. квартира
Оренбургская обл, г Новотроицк, ул Советская, д 76

2 650 000 ₽
3-комн. квартира

12 360 000 ₽
Дом
Оренбургская обл, г Новотроицк, село Хабарное, ул Садовая, влд 34

2 200 000 ₽
2-комн. квартира
Россия, Оренбургская обл, Орск, пер. Зеленый,6 а

3 500 000 ₽
3-комн. квартира

2 500 000 ₽
Дом
Россия, Оренбургская обл, Орск, ул. Рахманинова,22
1 599 000 ₽
Земельный участок
Россия, Оренбургская обл, Зауральный, ул. Мирная,2

1 550 000 ₽
1-комн. квартира

8 300 000 ₽
Дом
Россия, Оренбургская обл, Оренбург, 21

1 300 000 ₽
Сад

1 320 000 ₽
Земельный участок

2 900 000 ₽
3-комн. квартира
Оренбургская обл, г Новотроицк, ул Советская, д 124

2 650 000 ₽
2-комн. квартира
Оренбургская обл, г Гай, пр-кт Победы, д 7

3 250 000 ₽
2-комн. квартира
Оренбургская обл, г Новотроицк, ул Советская, д 9

4 299 000 ₽
1-комн. квартира
Россия, Оренбургская обл, Оренбург, ул. Брестская,9

1 350 000 ₽
Дом
Россия, Оренбургская обл, Оренбург, посёлок Подмаячный, улица Квартал № 20, 139

4 650 000 ₽
1-комн. квартира
Россия, Оренбургская обл, Оренбург, пер. Слесарный,7

1 500 000 ₽
2-комн. квартира
Оренбургская обл, г Новотроицк, ул Гагарина, д 16

2 790 000 ₽
3-комн. квартира
Россия, Оренбургская обл, Оренбург, ул. Братьев Башиловых,8

5 000 000 ₽
3-комн. квартира

2 950 000 ₽
2-комн. квартира
Оренбургская обл, г Новотроицк, ул Строителей, д 6

4 700 000 ₽
Дом
Оренбургская обл, г Новотроицк, ул 1 Мая

9 900 000 ₽
Дом
Россия, Оренбургская обл, Оренбург, Дамбовая, 9
1 900 000 ₽
1-комн. квартира
Оренбургская обл, г Новотроицк, ул Советская, д 150