АН АДРЕСА
a.borisova-adresa@yandex.ru
Скажите продавцу, что вы нашли объявление на 156.ru
1
/
3
9 161 690 ₽
8
Оренбург
АН АДРЕСА
Документы готовы, быстрый выход на сделку!!!!ДоступностьСемейная ипотека 6 %, сельская ипотека 3 %
Наши дома подходят под субсидированные ипотечные программы, военной ипотекой, различными жилищными сертификатами и материнским капиталом. Все это делает покупку максимально удобной и комфортной для наших клиентов, а самое главное выгодной!
Материал стен: газоблоки
Терраса или веранда: покрыты керамогранитом
Лестница: металлический каркас
Санузел: на 1 и 2 этажах
Коммуникации: электричество, газ, отопление, канализация
Ремонт: улучшенная предчистовая отделка
Интернет и ТВ: Wi-Fi, телевидение
Парковка: парковочное место
Транспортная доступность: асфальтированная дорога, остановка общественного транспорта
Инфраструктура: магазин, аптека, детский сад, школа
Расстояние до центра города: 12 км
В подарок: территория участка огорожена забором, смонтированы въездные ворота под автомобиль и калитка с электромеханическим замком, уличное освещение, установлен почтовый ящик. Вокруг дома залита бетонная отмостка, бетонная дорожка и площадка под автомобиль, выполнено уличное освещение.
Внутренная отделка
стены оштукатурены по маякам, отшпатлеваны под обои
полы – утепленная армированная бетонная стяжка с последующим устройством наливного пола
установлена пластиковая подоконная доска, дверные и оконные откосы облагорожены
Качество
Наши дома построены из заводского газобетонного блока КОТТЕДЖ, а фасад облицован керамическим кирпичом. Установлены качественные ПВХ окна с двойным мультифункциональным стеклопакетом и надежная металлическая дверь с терморазрывом. В качестве кровельного покрытия выбрана двухслойная гибкая черепица Shinglas от компании ТЕХНОНИКОЛЬ, карниз подшит металлическими софитами, смонтирована водосточная система производства ТЕХНОНИКОЛЬ.
Инфраструктура
Поселок имеет развитую инфраструктуру, в шаговой доступности школа, детский сад, сетевые магазины, аптеки и ФАП. Поселок имеет хорошую транспортную доступность, ходит общественный транспорт. Сельская прописка и тарифы гарантируют вам экономию бюджета на обслуживание дома.
ОТ НАС: помощь в одобрении ипотеки ,полное юридическое сопровождение, помощь в продаже вашей недвижимости, работа с сертификатами.ПРОСМОТР В УДОБНОЕ ДЛЯ ВАС ВРЕМЯ, ПО ПРЕДВАРИТЕЛЬНОЙ ДОГОВОРЕННОСТИ!
ID объекта в нашей базе: 1537
Адрес
Этажность
Площадь
Россия, Оренбургская обл, Оренбург, 41 а
2
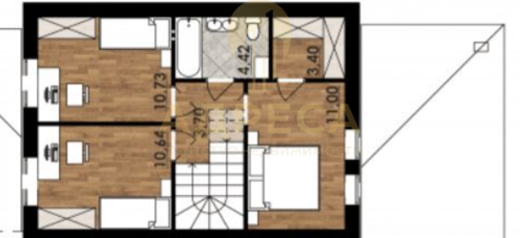
102
ID объявления
Обновлено
Создано
Действительно до
785725
2025-12-06 05:48:26
2025-12-06 05:48:26
2026-03-06 05:48:26

1 550 000 ₽
1-комн. квартира

3 300 000 ₽
3-комн. квартира
Оренбургская обл, г Новотроицк, пер 8 Марта, д 4

4 300 000 ₽
Помещение
Оренбургская обл, г Новотроицк, ул Советская, д 150
1 700 000 ₽
3-комн. квартира
г.Гай ,ул Советская 11

3 800 000 ₽
Дом
Россия, Оренбургская обл, Оренбург, г.Оренбург, СНТ "Бургаз", дом 225

3 650 000 ₽
3-комн. квартира
Россия, Оренбургская обл, Орск, ул. Новосибирская,18

2 500 000 ₽
3-комн. квартира
Оренбургская обл, г Новотроицк, ул Мира, д 3

2 080 000 ₽
2-комн. квартира
Оренбургская обл, г Новотроицк, ул Советская, д 63Б

600 000 ₽
Земельный участок
Россия, Оренбургская обл, Орск, ул. Каспийская ул. Тихорецкая участок 61

1 810 000 ₽
1-комн. квартира
Оренбургская обл, г Новотроицк, пр-кт Металлургов, д 8

2 500 000 ₽
2-комн. квартира
Ул Пушкино/Льва Толстого/25/9

1 630 000 ₽
1-комн. квартира
советская 121

175 000 ₽
Дом
Россия, Оренбургская обл, Красноуральск, ул. Севастопольская, 21

4 000 000 ₽
3-комн. квартира
Россия, Оренбургская обл, Оренбург, проезд. Коммунаров,24

2 150 000 ₽
2-комн. квартира
Оренбургская обл, г Новотроицк, ул Уральская, д 38

3 000 000 ₽
2-комн. квартира
Оренбургская обл, г Новотроицк, ул Пушкина, д 46А

3 500 000 ₽
4-комн. квартира
Россия, Оренбургская обл, Орск, ул. Васнецова,27А

750 000 ₽
Дом
Россия, Оренбургская обл, Татищево, ул. Советская,28

7 500 000 ₽
4-комн. квартира
Россия, Оренбургская обл, Орск, ул. Ялтинская,91

3 400 000 ₽
Дом
Оренбургская обл, г Новотроицк, ул Грибоедова

2 600 000 ₽
4-комн. квартира
Оренбургская обл, г Новотроицк, ул Юных Ленинцев

договорная

2 600 000 ₽
3-комн. квартира

4 650 000 ₽
1-комн. квартира
Россия, Оренбургская обл, Оренбург, пер. Слесарный.7